Log In/Sign up
Your email has been sent.
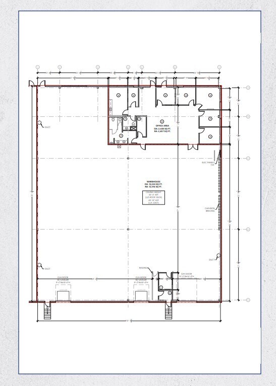
Building E 10720 25th St NE 14,773 sq ft of Industrial Space Available in Calgary, AB T3N 0A4



HIGHLIGHTS
- Located to the North of the Calgary International Airport, between Deerfoot Trail and Stoney Trail NE, it presents a great opportunity to many users!
- Existing warehouse ventilation, make-up air specifications to be confirmed
- Ample double row parking
FEATURES
Eaves Height
28 ft
Column Spacing
37 ft x 43 ft
Drive-in Bays
2
Dock-level Loading Doors
28
Levellers
26
Standard Parking Spaces
80
ALL AVAILABLE SPACE(1)
Display Rent as
- SPACE
- SIZE
- TERM
- RATE
- USE
- CONDITION
- AVAILABLE
The Park caters well to small and mid-bay distribution type businesses.
- Includes 2,457 sq ft of dedicated office space
- Secure Storage
- Available in Aug 2025!
- End-cap unit with functional and great office area
- Central Air and Heating
- Natural Light
- Natural light
| Space | Size | Term | Rate | Space Use | Condition | Available |
| 1st Floor - 141 | 14,773 sq ft | Negotiable | Upon Application Upon Application Upon Application Upon Application | Industrial | Full Fit-Out | Now |
1st Floor - 141
| Size |
| 14,773 sq ft |
| Term |
| Negotiable |
| Rate |
| Upon Application Upon Application Upon Application Upon Application |
| Space Use |
| Industrial |
| Condition |
| Full Fit-Out |
| Available |
| Now |
1 of 1
VIDEOS
MATTERPORT 3D EXTERIOR
MATTERPORT 3D TOUR
PHOTOS
STREET VIEW
STREET
MAP
1st Floor - 141
| Size | 14,773 sq ft |
| Term | Negotiable |
| Rate | Upon Application |
| Space Use | Industrial |
| Condition | Full Fit-Out |
| Available | Now |
The Park caters well to small and mid-bay distribution type businesses.
- Includes 2,457 sq ft of dedicated office space
- Central Air and Heating
- Secure Storage
- Natural Light
- Available in Aug 2025!
- Natural light
- End-cap unit with functional and great office area
PROPERTY OVERVIEW
CBRE Calgary is pleased to present the opportunity to lease a key industrial asset in an evolving Alberta market. Airport Business Park sets the standard for connectivity within Northeast Calgary, providing unparalleled access to Calgary’s major and central arterial thoroughfares.
WAREHOUSE FACILITY FACTS
Property Size
96,123 sq ft
Total Plot Size
5.39 ac
Year Built
2007
Construction
Metal
Sprinkler System
ESFR
Lighting
Fluorescent
Power Supply
Amps: 200 Volts: 600
Use Class
S-CRI - Special Purpose — City and Regional Infrastructure District
SELECT TENANTS
- FLOOR
- TENANT NAME
- INDUSTRY
- 1st
- Advance Lumber & Pallet
- -
- 1st
- CSM Interiors
- Construction
- 1st
- East Penn Canada
- Manufacturing
- 1st
- Onway Transport Inc.
- -
- 1st
- Rosenberger Site Solutions
- Professional, Scientific, and Technical Services
- 1st
- Vereburn Medical Supply
- Wholesaler
1 of 7
VIDEOS
MATTERPORT 3D EXTERIOR
MATTERPORT 3D TOUR
PHOTOS
STREET VIEW
STREET
MAP
Presented by
Building E | 10720 25th St NE
Already a member? Log In
Hmm, there seems to have been an error sending your message. Please try again.
Thanks! Your message was sent.



