Your email has been sent.
ALL AVAILABLE SPACES(2)
Display Rent as
- SPACE
- SIZE
- TERM
- RATE
- USE
- CONDITION
- AVAILABLE
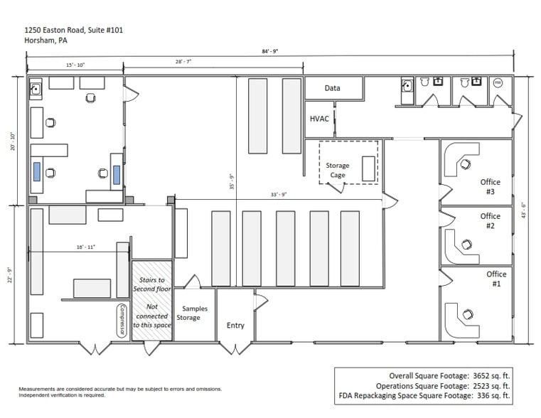
This space is currently configured for a pharmaceutical use which includes a receptionist area; three private offices; a large area demised into a work/storage area with two adjoining conference room/work area sized rooms; two bath facilities and a coffee area.
- Listed rent plus proportional share of utilities
- Mostly Open Floor Plan Layout
- 3 Private Offices
- 1 Workstation
- Space is in Excellent Condition
- After Hours HVAC Available
- Partially Fit-Out as Research and Development Space
- Fits 10 - 15 People
- 2 Conference Rooms
- Finished Ceilings: 8 ft
- Can be combined with additional space(s) for up to 7,304 sq ft of adjacent space
This nicely finished space is currently configured with a reception area, large +/-1,000 sf open area, 8 private offices, conference room, kitchen and two rest rooms. A floor plan is included herein.
- Listed rent plus proportional share of utilities
- Mostly Open Floor Plan Layout
- 8 Private Offices
- 15 Workstations
- Space is in Excellent Condition
- Central Air and Heating
- Natural Light
- Open-Plan
- Partially Fit-Out as Standard Office
- Fits 10 - 30 People
- 1 Conference Room
- Finished Ceilings: 8 ft
- Can be combined with additional space(s) for up to 7,304 sq ft of adjacent space
- Reception Area
- After Hours HVAC Available
| Space | Size | Term | Rate | Space Use | Condition | Available |
| 1st Floor, Ste 101 S | 3,652 sq ft | 3-10 Years | £10.09 /sq ft pa £0.84 /sq ft pcm £36,867 pa £3,072 pcm | Office | Partial Fit-Out | Now |
| 2nd Floor, Ste 201 S | 3,652 sq ft | 3-10 Years | £8.97 /sq ft pa £0.75 /sq ft pcm £32,743 pa £2,729 pcm | Office | Partial Fit-Out | 30 Days |
1st Floor, Ste 101 S
| Size |
| 3,652 sq ft |
| Term |
| 3-10 Years |
| Rate |
| £10.09 /sq ft pa £0.84 /sq ft pcm £36,867 pa £3,072 pcm |
| Space Use |
| Office |
| Condition |
| Partial Fit-Out |
| Available |
| Now |
2nd Floor, Ste 201 S
| Size |
| 3,652 sq ft |
| Term |
| 3-10 Years |
| Rate |
| £8.97 /sq ft pa £0.75 /sq ft pcm £32,743 pa £2,729 pcm |
| Space Use |
| Office |
| Condition |
| Partial Fit-Out |
| Available |
| 30 Days |
1st Floor, Ste 101 S
| Size | 3,652 sq ft |
| Term | 3-10 Years |
| Rate | £10.09 /sq ft pa |
| Space Use | Office |
| Condition | Partial Fit-Out |
| Available | Now |
This space is currently configured for a pharmaceutical use which includes a receptionist area; three private offices; a large area demised into a work/storage area with two adjoining conference room/work area sized rooms; two bath facilities and a coffee area.
- Listed rent plus proportional share of utilities
- Partially Fit-Out as Research and Development Space
- Mostly Open Floor Plan Layout
- Fits 10 - 15 People
- 3 Private Offices
- 2 Conference Rooms
- 1 Workstation
- Finished Ceilings: 8 ft
- Space is in Excellent Condition
- Can be combined with additional space(s) for up to 7,304 sq ft of adjacent space
- After Hours HVAC Available
2nd Floor, Ste 201 S
| Size | 3,652 sq ft |
| Term | 3-10 Years |
| Rate | £8.97 /sq ft pa |
| Space Use | Office |
| Condition | Partial Fit-Out |
| Available | 30 Days |
This nicely finished space is currently configured with a reception area, large +/-1,000 sf open area, 8 private offices, conference room, kitchen and two rest rooms. A floor plan is included herein.
- Listed rent plus proportional share of utilities
- Partially Fit-Out as Standard Office
- Mostly Open Floor Plan Layout
- Fits 10 - 30 People
- 8 Private Offices
- 1 Conference Room
- 15 Workstations
- Finished Ceilings: 8 ft
- Space is in Excellent Condition
- Can be combined with additional space(s) for up to 7,304 sq ft of adjacent space
- Central Air and Heating
- Reception Area
- Natural Light
- After Hours HVAC Available
- Open-Plan
PROPERTY OVERVIEW
Conveniently located on Rt. 611 within a few miles of the Willow Grove exit of the PA Turnpike as well as a wide variety of retail and retail services. 1250 Easton Rd is a 46,000 SF building consisting of 30,000 SF of office and retail space in the front on 2 levels and 16,000 SF of warehouse space behind it. Dunkin Donuts and Renaissance Tile are located on the property. The property is near a large variety of retail and retail services.
PROPERTY FACTS
Presented by
1250 Easton Rd
Hmm, there seems to have been an error sending your message. Please try again.
Thanks! Your message was sent.





