Your email has been sent.
PARK HIGHLIGHTS
- These Class A, new construction professional office and medical suites offer quality modern features and a prime location just off Highway 380.
- Healthcare businesses will benefit from proximity to Baylor Scott & White Medical Center, Medical City Frisco, and Methodist Celina Medical Center.
- Employees love working in this lush, park-like setting and the location’s convenient access to the area’s top-rated golf courses.
- Placed within a vibrant 25 building office park, tenants can leverage incredible synergy with a variety of high-quality neighboring businesses.
- Fully finished suites provide turnkey spaces with high ceilings, recessed lighting, plank flooring, windowed reception desks, and more.
- Businesses can utilize building signage to capture strong traffic from nearby arteries such as the Dallas North Tollway, Preston Road, and Hwy 380.
PARK FACTS
ALL AVAILABLE SPACES(3)
Display Rent as
- SPACE
- SIZE
- TERM
- RATE
- USE
- CONDITION
- AVAILABLE
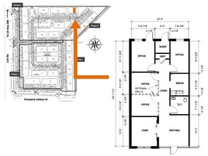
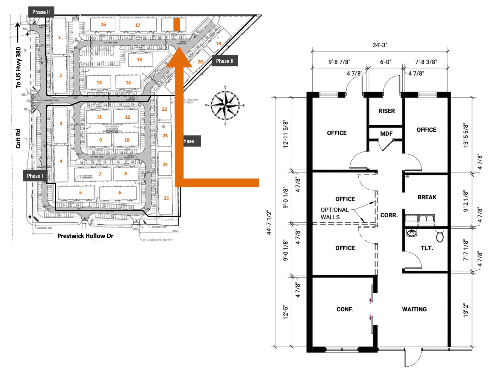
This single professional office suite at Crescent Parc features an efficient floor plan that includes reception, kitchen, restroom, 4-5 offices (depending on plan), and a conference room. Other features include all steel construction, vaulted ceilings in the entry, enhanced energy efficient glass, and a secondary entrance / exit at the rear of the building. Contact us today for a tour.
- Lease rate does not include utilities, property expenses or building services
- Fits 3 - 9 People
- 1 Conference Room
- Space is in Excellent Condition
- Central Air and Heating
- Private Restrooms
- High Ceilings
- Wooden Floors
- Cat-6
- Fully Fit-Out as Standard Office
- 4 Private Offices
- Finished Ceilings: 10 ft - 14 ft
- Plug & Play
- Reception Area
- Fully Carpeted
- After Hours HVAC Available
- Building Signage
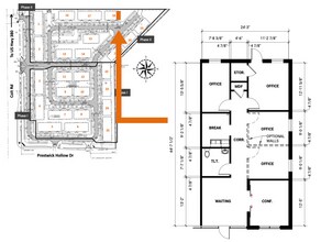
This corner, single professional office suite at Crescent Parc features an efficient floor plan that includes reception, kitchen, restroom, 4-5 offices (depending on plan), and a conference room. Other features include all steel construction, vaulted ceilings in the entry, enhanced energy efficient glass, and a secondary entrance / exit at the rear of the building. Contact us today for a tour.
- Lease rate does not include utilities, property expenses or building services
- Fits 4 - 10 People
- 1 Conference Room
- Space is in Excellent Condition
- Central Air and Heating
- Private Restrooms
- Corner Space
- Natural Light
- Wooden Floors
- Wheelchair Accessible
- Cat-6
- Fully Fit-Out as Standard Office
- 4 Private Offices
- Finished Ceilings: 10 ft - 14 ft
- Plug & Play
- Reception Area
- Fully Carpeted
- High Ceilings
- After Hours HVAC Available
- Smoke Detector
- Building Signage
| Space | Size | Term | Rate | Space Use | Condition | Available |
| 1st Floor, Ste 1803 | 1,123 sq ft | 3-10 Years | £25.43 /sq ft pa £2.12 /sq ft pcm £28,561 pa £2,380 pcm | Office | Full Fit-Out | Now |
| 1st Floor, Ste 1804 | 1,202 sq ft | 3-10 Years | £25.43 /sq ft pa £2.12 /sq ft pcm £30,570 pa £2,548 pcm | Office | Full Fit-Out | Now |
1400 N Coit Rd - 1st Floor - Ste 1803
1400 N Coit Rd - 1st Floor - Ste 1804
- SPACE
- SIZE
- TERM
- RATE
- USE
- CONDITION
- AVAILABLE
Crescent Parc offers upscale, fully finished, *NEW* Office Suites. Located on Coit Road in McKinney, this single professional office suite at Crescent Parc features an efficient floor plan that includes reception, kitchen, restroom, 4-5 offices (depending on plan), and a conference room. Other features include all steel construction, vaulted ceilings in the entry, enhanced energy efficient glass, and a secondary entrance on the rear of the building. Contact us today for a tour.
- Lease rate does not include utilities, property expenses or building services
- Fits 4 - 10 People
- 1 Conference Room
- Central Air and Heating
- Private Restrooms
- Corner Space
- Recessed Lighting
- After Hours HVAC Available
- Smoke Detector
- $34 - $36 + NNN for Lease
- Fully Fit-Out as Standard Office
- 4 Private Offices
- Space is in Excellent Condition
- Reception Area
- Fully Carpeted
- High Ceilings
- Natural Light
- Wooden Floors
- Wheelchair Accessible
- Corner office suite
| Space | Size | Term | Rate | Space Use | Condition | Available |
| 1st Floor, Ste 2004 | 1,202 sq ft | 3 Years | £25.43 /sq ft pa £2.12 /sq ft pcm £30,570 pa £2,548 pcm | Office | Full Fit-Out | Now |
1400 N Coit Rd - 1st Floor - Ste 2004
1400 N Coit Rd - 1st Floor - Ste 1803
| Size | 1,123 sq ft |
| Term | 3-10 Years |
| Rate | £25.43 /sq ft pa |
| Space Use | Office |
| Condition | Full Fit-Out |
| Available | Now |
This single professional office suite at Crescent Parc features an efficient floor plan that includes reception, kitchen, restroom, 4-5 offices (depending on plan), and a conference room. Other features include all steel construction, vaulted ceilings in the entry, enhanced energy efficient glass, and a secondary entrance / exit at the rear of the building. Contact us today for a tour.
- Lease rate does not include utilities, property expenses or building services
- Fully Fit-Out as Standard Office
- Fits 3 - 9 People
- 4 Private Offices
- 1 Conference Room
- Finished Ceilings: 10 ft - 14 ft
- Space is in Excellent Condition
- Plug & Play
- Central Air and Heating
- Reception Area
- Private Restrooms
- Fully Carpeted
- High Ceilings
- After Hours HVAC Available
- Wooden Floors
- Building Signage
- Cat-6
1400 N Coit Rd - 1st Floor - Ste 1804
| Size | 1,202 sq ft |
| Term | 3-10 Years |
| Rate | £25.43 /sq ft pa |
| Space Use | Office |
| Condition | Full Fit-Out |
| Available | Now |
This corner, single professional office suite at Crescent Parc features an efficient floor plan that includes reception, kitchen, restroom, 4-5 offices (depending on plan), and a conference room. Other features include all steel construction, vaulted ceilings in the entry, enhanced energy efficient glass, and a secondary entrance / exit at the rear of the building. Contact us today for a tour.
- Lease rate does not include utilities, property expenses or building services
- Fully Fit-Out as Standard Office
- Fits 4 - 10 People
- 4 Private Offices
- 1 Conference Room
- Finished Ceilings: 10 ft - 14 ft
- Space is in Excellent Condition
- Plug & Play
- Central Air and Heating
- Reception Area
- Private Restrooms
- Fully Carpeted
- Corner Space
- High Ceilings
- Natural Light
- After Hours HVAC Available
- Wooden Floors
- Smoke Detector
- Wheelchair Accessible
- Building Signage
- Cat-6
1400 N Coit Rd - 1st Floor - Ste 2004
| Size | 1,202 sq ft |
| Term | 3 Years |
| Rate | £25.43 /sq ft pa |
| Space Use | Office |
| Condition | Full Fit-Out |
| Available | Now |
Crescent Parc offers upscale, fully finished, *NEW* Office Suites. Located on Coit Road in McKinney, this single professional office suite at Crescent Parc features an efficient floor plan that includes reception, kitchen, restroom, 4-5 offices (depending on plan), and a conference room. Other features include all steel construction, vaulted ceilings in the entry, enhanced energy efficient glass, and a secondary entrance on the rear of the building. Contact us today for a tour.
- Lease rate does not include utilities, property expenses or building services
- Fully Fit-Out as Standard Office
- Fits 4 - 10 People
- 4 Private Offices
- 1 Conference Room
- Space is in Excellent Condition
- Central Air and Heating
- Reception Area
- Private Restrooms
- Fully Carpeted
- Corner Space
- High Ceilings
- Recessed Lighting
- Natural Light
- After Hours HVAC Available
- Wooden Floors
- Smoke Detector
- Wheelchair Accessible
- $34 - $36 + NNN for Lease
- Corner office suite
MATTERPORT 3D TOURS
PARK OVERVIEW
Crescent Parc provides new construction professional office and medical space across 25 Class A buildings off Highway 380 in McKinney, Texas. This prime location is perfect for professional and healthcare office businesses, with proximity to Dallas North Tollway, Preston Road, and Highway 380, allowing service to an expanded client base across the North Frisco, Prosper, Celina, and McKinney markets. The buildings were constructed in 2024 in a lush, park-like setting with expertly maintained landscaping, abundant on-site parking, and convenient access points along Coit Road and Prestwick Hollow Drive. The spaces include bright lobbies with high ceilings, recessed lighting, plank flooring, windowed reception stations, and ADA-compliant restrooms. Crescent Parc tenants can also leverage prominent building and monument signage to capture elevated traffic to the region, with more than 24,000 daily vehicles passing by on Coit Road and over 60,000 vehicles passing by on Highway 380. Crescent Parc sees heightened exposure thanks to its proximity to a number of traffic-driving retailers and major employers. Potential clients are drawn to the area within five minutes of the property by household-name brands such as Walmart Supercenter, Ulta, CVS, Planet Fitness, AutoZone Auto Parts, Jersey Mike’s Subs, Wingstop, Dutch Bros Coffee, and Whataburger. Additionally, the lot directly adjacent to Crescent Parc is the planned site of a new H-E-B grocery store. A large segment of the area’s daily commuter population works within 15 minutes of Crescent Parc, traveling to top employers such as Globe Life and Raytheon Apex. Other significant draws to the area include the Gates of Prosper, the new PGA headquarters, and several large high schools. Positioned near the top hospitals of the Northern DFW, Crescent Parc offers unparalleled synergy to healthcare businesses. More than 340 beds are located within 10 to 15 minutes of the property at Texas Health Neighborhood Care, the Baylor Scott & White Medical Center, Medical City Frisco, and the Methodist Celina Medical Center. This presents an opportunity to collaborate with dozens of nearby healthcare industry tenants, including many within Crescent Parc. Medical businesses at Crescent Parc are supported by a rapidly expanding demographic profile of potential clients within just 5 miles of the property. The population of more than 205,000 has grown by 17.5% since 2020, with forecasts expecting robust continued growth. Area residents earn an impressive average household income, surpassing $171,000, driving elevated consumer spending of more than $2.9 billion in 2024. Empower a growing healthcare or office business with fully finished professional suites within a booming DFW medical hub at Crescent Parc.
- 24 Hour Access
- Signage
- Tenant Controlled HVAC
- Accent Lighting
- Fiber Optic Internet
PARK BROCHURE
NEARBY AMENITIES
RESTAURANTS |
|||
|---|---|---|---|
| Jersey Mike's Subs | - | - | 12 min walk |
| Nothing Bundt Cakes | - | - | 12 min walk |
| Einstein Bros Bagels | Bagels | $ | 13 min walk |
| Baskin-Robbins | - | - | 14 min walk |
| Panda Express | - | - | 14 min walk |
| Joy Thai Kitchen | - | - | 15 min walk |
RETAIL |
||
|---|---|---|
| Pet Supplies Plus | Pet Shop/Supplies | 7 min walk |
| CVS Pharmacy | Pharmacy | 11 min walk |
HOTELS |
|
|---|---|
| Omni |
510 rooms
10 min drive
|
| Fairfield Inn |
105 rooms
11 min drive
|
| Hampton by Hilton |
79 rooms
13 min drive
|
| Courtyard |
148 rooms
13 min drive
|
LETTING TEAM
Joe Martinez, President
Joe is married to Maria and has two sons, Austin and Grant. He enjoys all things outdoors and spending time with his family is a top priority. Skiing, hunting, and traveling are just a few things that Joe cherishes.
Joe received his undergraduate degree at University of Texas at Arlington and pursued advanced MBA studies at Southern Methodist University focusing in marketing.
While Joe enjoys nothing more than bringing winning deals together for his clients, he is focused on relationships, as those have been the cornerstone of his and Legacy Commercial Realty’s success.
Tito Martinez, Vice President
Tito graduated from Texas Christian University from the Neely School of Business with a Degree in Entrepreneurship and Innovation and brings today’s technology and resources to his role which expands the reach and scope of the specialized services that LCR is known for.
Tito has grown up in this business and is eager to serve and fight to secure the right relationships and terms that will result in winning transactions for all involved.
Tito is an avid sportsman and likes to spend time with his family and friends in a multitude of outdoor and fitness endeavors including hunting, skiing, weightlifting and golf. Tito’s secret weapon is his knowledge of the Culinary Arts! He is an amazing cook and loves to prepare homemade healthy meals.
Presented by
Crescent Parc Phase II | McKinney, TX 75071
Hmm, there seems to have been an error sending your message. Please try again.
Thanks! Your message was sent.













