Your email has been sent.
1412 Ocean Dr 3,380 sq ft of Retail Space Available in Miami Beach, FL 33139



HIGHLIGHTS
- Prime Ocean Drive frontage in the heart of Miami Beach
- Outdoor Seating
- High pedestrian flow
- Great Branding Identity Property
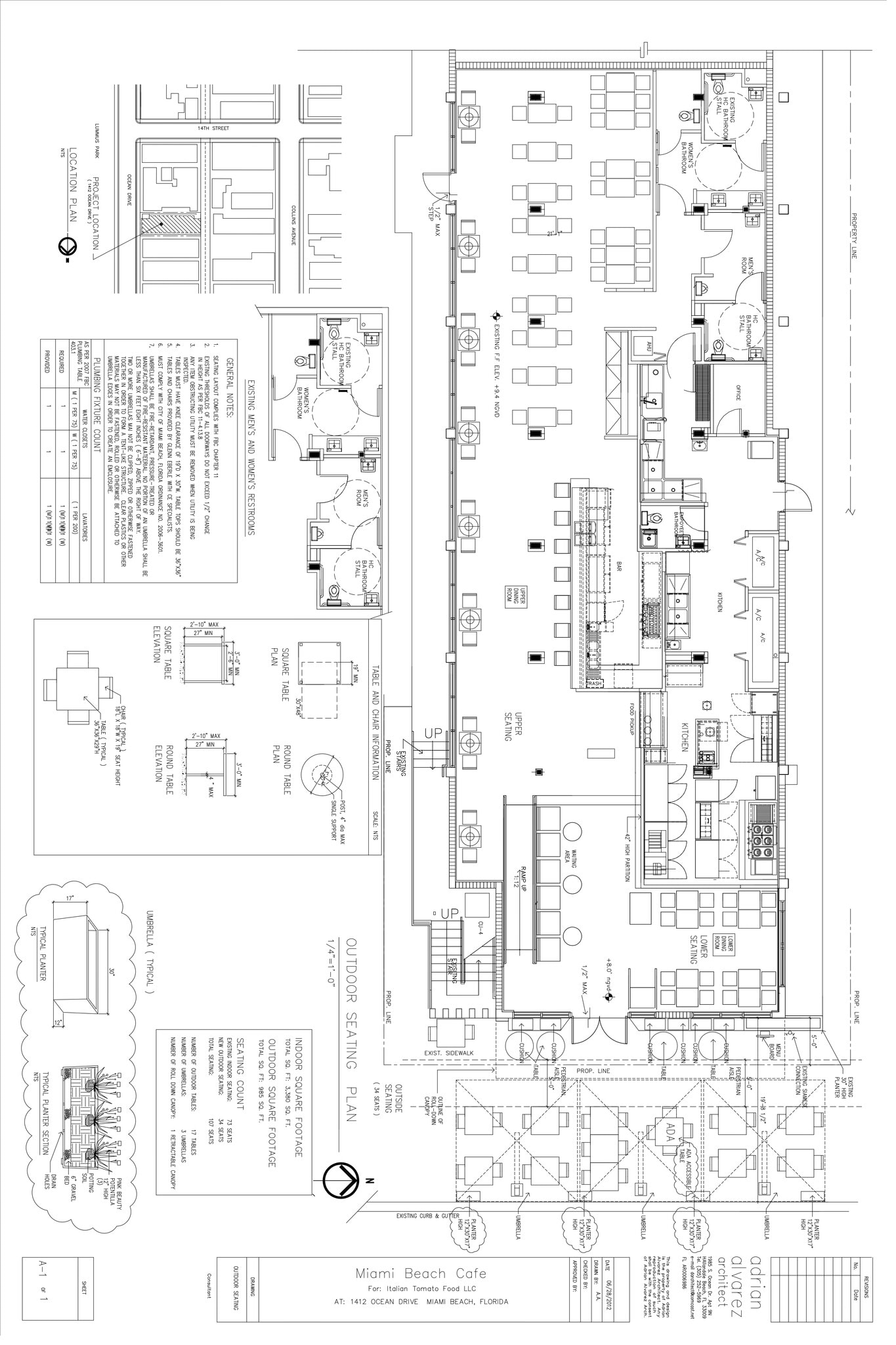
SPACE AVAILABILITY (1)
Display Rent as
- SPACE
- SIZE
- TERM
- RATE
- TYPE
| Space | Size | Term | Rate | Type | ||
| 1st Floor | 3,380 sq ft | Negotiable | £119.57 /sq ft pa £9.96 /sq ft pcm £404,130 pa £33,678 pcm | Triple Net |
1st Floor
- Lease rate does not include utilities, property expenses or building services
- Prime Ocean Drive Location
- High Foot Traffic
- Outdoor Seating Available
Rent Types
The rent amount and type that the tenant (lessee) will be responsible to pay to the landlord (lessor) throughout the lease term is negotiated prior to both parties signing a lease agreement. The rent type will vary depending upon the services provided. For example, triple net (NNN) rents are typically lower than full service rents due to additional expenses the tenant is required to pay in addition to the base rent. Contact the listing agent for a full understanding of any associated costs or additional expenses for each rent type.
1. Full Service: A rent that includes normal building standard services as provided by the landlord within a base year rental.
2. Double Net (NN): Tenant pays for only two of the building expenses; the landlord and tenant determine the specific expenses prior to signing the lease agreement.
3. Triple Net (NNN): A lease in which the tenant is responsible for all expenses associated with their proportional share of occupancy of the building.
4. Modified Gross: Modified Gross is a general type of lease rate where typically the tenant will be responsible for their proportional share of one or more of the expenses. The landlord will pay the remaining expenses. See the below list of common Modified Gross rent structures: 4. Plus All Utilities: A type of Modified Gross Lease where the tenant is responsible for their proportional share of utilities in addition to the rent. 4. Plus Cleaning: A type of Modified Gross Lease where the tenant is responsible for their proportional share of cleaning in addition to the rent. 4. Plus Electric: A type of Modified Gross Lease where the tenant is responsible for their proportional share of the electrical cost in addition to the rent. 4. Plus Electric & Cleaning: A type of Modified Gross Lease where the tenant is responsible for their proportional share of the electrical and cleaning cost in addition to the rent. 4. Plus Utilities and Char: A type of Modified Gross Lease where the tenant is responsible for their proportional share of the utilities and cleaning cost in addition to the rent. 4. Industrial Gross: A type of Modified Gross lease where the tenant pays one or more of the expenses in addition to the rent. The landlord and tenant determine these prior to signing the lease agreement.
5. Tenant Electric: The landlord pays for all services and the tenant is responsible for their usage of lights and electrical outlets in the space they occupy.
6. Negotiable or Upon Request: Used when the leasing contact does not provide the rent or service type.
7. TBD: To be determined; used for buildings for which no rent or service type is known, commonly utilized when the buildings are not yet built.
PROPERTY FACTS
| Total Space Available | 3,380 sq ft | Net Internal Area (NIA) | 3,380 sq ft |
| Property Type | Retail | Year Built | 1952 |
| Property Subtype | Restaurant |
| Total Space Available | 3,380 sq ft |
| Property Type | Retail |
| Property Subtype | Restaurant |
| Net Internal Area (NIA) | 3,380 sq ft |
| Year Built | 1952 |
ABOUT THE PROPERTY
Prime Restaurant Space on Iconic Ocean Drive – Miami Beach Located at 1412 Ocean Drive, this fully built-out restaurant space offers an unparalleled opportunity in the heart of Miami Beach's most vibrant dining and entertainment district. Surrounded by luxury hotels, boutique shops, and steps from the beach, this location boasts high foot traffic and year-round visibility. With outdoor seating and oceanfront views, the space is ideal for creating a dynamic dining experience that attracts both tourists and locals. This turnkey space is equipped with kitchen infrastructure, making it perfect for a restaurant or café concept. Please note that quiet operations are essential, as the space is located directly beneath a residential apartment. This makes it particularly suitable for concepts that prioritize a more relaxed, low-noise dining atmosphere.
NEARBY MAJOR RETAILERS
Presented by
Big Time Realty
1412 Ocean Dr
Hmm, there seems to have been an error sending your message. Please try again.
Thanks! Your message was sent.


