Your email has been sent.
Concord Center 2100 3rd Ave N 2,445 - 41,916 sq ft of 4-Star Space Available in Birmingham, AL 35203



HIGHLIGHTS
- Attached parking deck
- On-site maintenance
- Connected to Downtown YMCA
- 24-hour security
- Cadence Bank branch
- New, modern architecture
ALL AVAILABLE SPACES(7)
Display Rent as
- SPACE
- SIZE
- TERM
- RATE
- USE
- CONDITION
- AVAILABLE
- Rate includes utilities, building services and property expenses
- High-density office layout
- Fully Fit-Out as Standard Office
- Space is in Excellent Condition
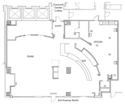
Move-In Ready Retail Space! 3,720-SF former restaurant space equipped with full commercial kitchen connections, a washing station, serving area / bar, and a large dining room. Located on the ground floor of Concord Center, there is direct access from main lobby of Concord Center off Richard Arrington Jr. Blvd, as well as direct entry from 3rd Avenue North. There is an attached parking deck, street parking, and nearby public parking lots/decks provide convenient parking options for patrons.
- Rate includes utilities, building services and property expenses
- Space is in Excellent Condition
- Direct entry from 3rd Avenue North
- Full commercial kitchen connections in place
- Fully Fit-Out as a Restaurant or Café Space
- 3,720 SF on ground floor
- Direct access from main lobby of Concord Center
- Move-In Ready Retail Space
• Class A building • Full service • On-site Management • Security • Surin restaurant located in building • Building is connected to YMCA • First and second generation space
- Rate includes utilities, building services and property expenses
- Central Air Conditioning
- Partially Fit-Out as Standard Office
- 5,461 square feet of office space for lease
Class A building • Full service • On-site Management • Security • Surin restaurant located in building • Building is connected to YMCA • First and second generation space
- Rate includes utilities, building services and property expenses
- Central Air Conditioning
- Partially Fit-Out as Standard Office
- 2,445 square feet of office space for lease
Class A building • Full service • On-site Management • Security • Surin restaurant located in building • Building is connected to YMCA
- Rate includes utilities, building services and property expenses
- Central Air Conditioning
- Partially Fit-Out as Standard Office
- First and second generation space
Class A building • Full service • On-site Management • Security • Surin restaurant located in building • Building is connected to YMCA
- Rate includes utilities, building services and property expenses
- Central Air Conditioning
- Partially Fit-Out as Standard Office
- 4,217 square feet of office space for lease
Class A building • Full service • On-site Management • Security • Surin restaurant located in building • Building is connected to YMCA
- Rate includes utilities, building services and property expenses
- Central Air Conditioning
- Partially Fit-Out as Standard Office
- 18,454 square feet of office spave available
| Space | Size | Term | Rate | Space Use | Condition | Available |
| 1st Floor, Ste 100 | 3,770 sq ft | Negotiable | £18.70 /sq ft pa £1.56 /sq ft pcm £70,502 pa £5,875 pcm | Office | Full Fit-Out | Now |
| 1st Floor, Ste Restaurant | 3,720 sq ft | Negotiable | £17.58 /sq ft pa £1.46 /sq ft pcm £65,393 pa £5,449 pcm | Retail | Full Fit-Out | Now |
| 4th Floor, Ste 430 | 5,461 sq ft | 5 Years | £17.58 /sq ft pa £1.46 /sq ft pcm £95,997 pa £8,000 pcm | Office | Partial Fit-Out | Now |
| 4th Floor, Ste 440 | 2,445 sq ft | 5 Years | £17.58 /sq ft pa £1.46 /sq ft pcm £42,980 pa £3,582 pcm | Office | Partial Fit-Out | Now |
| 7th Floor, Ste 720 | 3,849 sq ft | 5 Years | £18.70 /sq ft pa £1.56 /sq ft pcm £71,979 pa £5,998 pcm | Office | Partial Fit-Out | Now |
| 8th Floor, Ste 800 | 4,217 sq ft | Negotiable | £18.70 /sq ft pa £1.56 /sq ft pcm £78,861 pa £6,572 pcm | Office | Partial Fit-Out | Now |
| 9th Floor, Ste 900 | 18,454 sq ft | Negotiable | £18.70 /sq ft pa £1.56 /sq ft pcm £345,104 pa £28,759 pcm | Office | Partial Fit-Out | Now |
1st Floor, Ste 100
| Size |
| 3,770 sq ft |
| Term |
| Negotiable |
| Rate |
| £18.70 /sq ft pa £1.56 /sq ft pcm £70,502 pa £5,875 pcm |
| Space Use |
| Office |
| Condition |
| Full Fit-Out |
| Available |
| Now |
1st Floor, Ste Restaurant
| Size |
| 3,720 sq ft |
| Term |
| Negotiable |
| Rate |
| £17.58 /sq ft pa £1.46 /sq ft pcm £65,393 pa £5,449 pcm |
| Space Use |
| Retail |
| Condition |
| Full Fit-Out |
| Available |
| Now |
4th Floor, Ste 430
| Size |
| 5,461 sq ft |
| Term |
| 5 Years |
| Rate |
| £17.58 /sq ft pa £1.46 /sq ft pcm £95,997 pa £8,000 pcm |
| Space Use |
| Office |
| Condition |
| Partial Fit-Out |
| Available |
| Now |
4th Floor, Ste 440
| Size |
| 2,445 sq ft |
| Term |
| 5 Years |
| Rate |
| £17.58 /sq ft pa £1.46 /sq ft pcm £42,980 pa £3,582 pcm |
| Space Use |
| Office |
| Condition |
| Partial Fit-Out |
| Available |
| Now |
7th Floor, Ste 720
| Size |
| 3,849 sq ft |
| Term |
| 5 Years |
| Rate |
| £18.70 /sq ft pa £1.56 /sq ft pcm £71,979 pa £5,998 pcm |
| Space Use |
| Office |
| Condition |
| Partial Fit-Out |
| Available |
| Now |
8th Floor, Ste 800
| Size |
| 4,217 sq ft |
| Term |
| Negotiable |
| Rate |
| £18.70 /sq ft pa £1.56 /sq ft pcm £78,861 pa £6,572 pcm |
| Space Use |
| Office |
| Condition |
| Partial Fit-Out |
| Available |
| Now |
9th Floor, Ste 900
| Size |
| 18,454 sq ft |
| Term |
| Negotiable |
| Rate |
| £18.70 /sq ft pa £1.56 /sq ft pcm £345,104 pa £28,759 pcm |
| Space Use |
| Office |
| Condition |
| Partial Fit-Out |
| Available |
| Now |
1st Floor, Ste 100
| Size | 3,770 sq ft |
| Term | Negotiable |
| Rate | £18.70 /sq ft pa |
| Space Use | Office |
| Condition | Full Fit-Out |
| Available | Now |
- Rate includes utilities, building services and property expenses
- Fully Fit-Out as Standard Office
- High-density office layout
- Space is in Excellent Condition
1st Floor, Ste Restaurant
| Size | 3,720 sq ft |
| Term | Negotiable |
| Rate | £17.58 /sq ft pa |
| Space Use | Retail |
| Condition | Full Fit-Out |
| Available | Now |
Move-In Ready Retail Space! 3,720-SF former restaurant space equipped with full commercial kitchen connections, a washing station, serving area / bar, and a large dining room. Located on the ground floor of Concord Center, there is direct access from main lobby of Concord Center off Richard Arrington Jr. Blvd, as well as direct entry from 3rd Avenue North. There is an attached parking deck, street parking, and nearby public parking lots/decks provide convenient parking options for patrons.
- Rate includes utilities, building services and property expenses
- Fully Fit-Out as a Restaurant or Café Space
- Space is in Excellent Condition
- 3,720 SF on ground floor
- Direct entry from 3rd Avenue North
- Direct access from main lobby of Concord Center
- Full commercial kitchen connections in place
- Move-In Ready Retail Space
4th Floor, Ste 430
| Size | 5,461 sq ft |
| Term | 5 Years |
| Rate | £17.58 /sq ft pa |
| Space Use | Office |
| Condition | Partial Fit-Out |
| Available | Now |
• Class A building • Full service • On-site Management • Security • Surin restaurant located in building • Building is connected to YMCA • First and second generation space
- Rate includes utilities, building services and property expenses
- Partially Fit-Out as Standard Office
- Central Air Conditioning
- 5,461 square feet of office space for lease
4th Floor, Ste 440
| Size | 2,445 sq ft |
| Term | 5 Years |
| Rate | £17.58 /sq ft pa |
| Space Use | Office |
| Condition | Partial Fit-Out |
| Available | Now |
Class A building • Full service • On-site Management • Security • Surin restaurant located in building • Building is connected to YMCA • First and second generation space
- Rate includes utilities, building services and property expenses
- Partially Fit-Out as Standard Office
- Central Air Conditioning
- 2,445 square feet of office space for lease
7th Floor, Ste 720
| Size | 3,849 sq ft |
| Term | 5 Years |
| Rate | £18.70 /sq ft pa |
| Space Use | Office |
| Condition | Partial Fit-Out |
| Available | Now |
Class A building • Full service • On-site Management • Security • Surin restaurant located in building • Building is connected to YMCA
- Rate includes utilities, building services and property expenses
- Partially Fit-Out as Standard Office
- Central Air Conditioning
- First and second generation space
8th Floor, Ste 800
| Size | 4,217 sq ft |
| Term | Negotiable |
| Rate | £18.70 /sq ft pa |
| Space Use | Office |
| Condition | Partial Fit-Out |
| Available | Now |
Class A building • Full service • On-site Management • Security • Surin restaurant located in building • Building is connected to YMCA
- Rate includes utilities, building services and property expenses
- Partially Fit-Out as Standard Office
- Central Air Conditioning
- 4,217 square feet of office space for lease
9th Floor, Ste 900
| Size | 18,454 sq ft |
| Term | Negotiable |
| Rate | £18.70 /sq ft pa |
| Space Use | Office |
| Condition | Partial Fit-Out |
| Available | Now |
Class A building • Full service • On-site Management • Security • Surin restaurant located in building • Building is connected to YMCA
- Rate includes utilities, building services and property expenses
- Partially Fit-Out as Standard Office
- Central Air Conditioning
- 18,454 square feet of office spave available
PROPERTY OVERVIEW
Concord Center is a premier, Class A office building located within the heart of Birmingham’s CBD. Built in 2002 on the site of Birmingham’s first high-rise, Concord Center pays tribute to the 1888 Jefferson County Courthouse with iconic twin steel and glass pyramids. As one of the newest constructed Class A office buildings in Birmingham’s CBD, the property provides tenants with a convenient, on-site banking option, direct access to the Downtown YMCA, more than thirty restaurants within walking distance, ample public parking lots and decks, and close proximity to government entities.
- Property Manager on Site
- Security System
- Air Conditioning
PROPERTY FACTS
Presented by
Concord Center | 2100 3rd Ave N
Hmm, there seems to have been an error sending your message. Please try again.
Thanks! Your message was sent.



