Your email has been sent.
HIGHLIGHTS
- Nearby transportation options include the J, W, 1 and 3 subways trains along with the Staten Island Ferry.
- Tenants quality for Lower Manhattan Incentive Program
- Suites offer panoramic city and river views.
- New high-speed elevators with marble cabs.
ALL AVAILABLE SPACES(19)
Display Rent as
- SPACE
- SIZE
- TERM
- RATE
- USE
- CONDITION
- AVAILABLE
Shell condition retail space available now.
- Located in-line with other retail
- Display Window
- Space is in Excellent Condition
- Available now for built out and move in.
Partioned office space available for move in.
- Fully Fit-Out as Standard Office
- Fits 5 - 16 People
- Space is in Excellent Condition
- Mostly Open Floor Plan Layout
- Partitioned Offices
- Available now for move-in.
Space has connecting stairs with the second floor and must be leased together. Can also be combined with third floor by interconnecting stairs, connecting floors one, two and three.
- Fully Fit-Out as Standard Office
- Fits 8 - 23 People
- Can be combined with additional space(s) for up to 21,874 sq ft of adjacent space
- Available now for move-in.
- Mostly Open Floor Plan Layout
- Space is in Excellent Condition
- Open-Plan
- Interconnecting staircase to 2nd and 3rd floors.
Space has connecting stairs with the first floor and third and must be leased together. Can also be combined with third floor. Interconnecting stairway combining all three.
- Mostly Open Floor Plan Layout
- Can be combined with additional space(s) for up to 21,874 sq ft of adjacent space
- 2nd floor has uniquely high ceilings
- Space In Need of Renovation
- High Ceilings
- Interconnecting staircase to 1st and 3rd floors.
Interconnecting stairway combining with first and second floor if desired to rent together.
- Mostly Open Floor Plan Layout
- Can be combined with additional space(s) for up to 21,874 sq ft of adjacent space
- Space is in Excellent Condition
- Interconnecting staircase to 2nd and 1st floors.
Open plan office space available now.
- Open Floor Plan Layout
- Can be combined with additional space(s) for up to 28,556 sq ft of adjacent space
- Open floor plan office on 5th floor.
- Space In Need of Renovation
- Open-Plan
Open plan office space available now.
- Open Floor Plan Layout
- Can be combined with additional space(s) for up to 28,556 sq ft of adjacent space
- Open floor plan office on 5th floor.
- Space In Need of Renovation
- Open-Plan
Cannot be combined with 10th and 11th floor-No interconnecting stairway.
- Fully Fit-Out as Standard Office
- Fits 24 - 75 People
- Can be combined with additional space(s) for up to 18,726 sq ft of adjacent space
- Mostly Open Floor Plan Layout
- Space is in Excellent Condition
- Cannot be combined with 10th or 11th floors.
Cannot be combined with 9th and 11th floor-No interconnecting stairway.
- Fully Fit-Out as Standard Office
- Fits 24 - 75 People
- Can be combined with additional space(s) for up to 18,726 sq ft of adjacent space
- Open-Plan
- Mostly Open Floor Plan Layout
- Space is in Excellent Condition
- Natural Light
- Cannot be combined with 9th and 11th floors
Private office space available now.
- Fully Fit-Out as Standard Office
- Fits 12 - 36 People
- High-density office layout
- 11th floor office space.
Private office space available now.
- Fully Fit-Out as Standard Office
- Fits 13 - 39 People
- Private office space available now.
- High-density office layout
- Central Air Conditioning
Private office space available now.
- Fully Fit-Out as Standard Office
- Fits 9 - 28 People
- Private office space available now.
- High-density office layout
- Central Air Conditioning
- Fully Fit-Out as Standard Office
- Fits 5 - 15 People
- Mostly Open Floor Plan Layout
Private office space available now. Floor plan available upon request. Broadway views
- Listed rate may not include certain utilities, building services and property expenses
- Open Floor Plan Layout
- Central Air Conditioning
- Fully Fit-Out as Standard Office
- Fits 8 - 25 People
- Available now for move in
Private office space available now.
- Fully Fit-Out as Standard Office
- Fits 6 - 17 People
- Available now for move in
- High-density office layout
- Central Air Conditioning
Private office space available now.
- Fully Fit-Out as Standard Office
- Fits 13 - 41 People
- Can be combined with additional space(s) for up to 18,178 sq ft of adjacent space
- High-density office layout
- Partitioned Offices
- Available now for move in.
Mostly partitioned private office space available now.
- Fully Fit-Out as Standard Office
- Fits 13 - 41 People
- Space is in Excellent Condition
- Suite of offices available for move in.
- High-density office layout
- Partitioned Offices
- Can be combined with additional space(s) for up to 18,178 sq ft of adjacent space
The 29th floor must be rented with the 30th floor. The two floors share an interconnecting stairway giving the office space a total of 8,166 sf at the top of the building. The space has a modern look with an abundance of natural light and is in very good condition.
- Fully Fit-Out as Standard Office
- Fits 11 - 33 People
- Can be combined with additional space(s) for up to 18,178 sq ft of adjacent space
- The 29th floor must be rented with the 30th floor.
- Mostly Open Floor Plan Layout
- Space is in Excellent Condition
- Natural Light
The 30th floor must be rented with the 29th floor. The two floors share an interconnecting stairway giving the office space a total of 8,166 sf at the top of the building. The space has a modern look with an abundance of natural light and is in very good condition.
- Fully Fit-Out as Standard Office
- Fits 11 - 33 People
- Can be combined with additional space(s) for up to 18,178 sq ft of adjacent space
- The 29th floor must be rented with the 30th floor.
- Mostly Open Floor Plan Layout
- Space is in Excellent Condition
- Central Air Conditioning
| Space | Size | Term | Rate | Space Use | Condition | Available |
| Ground | 1,000 sq ft | Negotiable | Upon Application Upon Application Upon Application Upon Application | Retail | Shell And Core | Now |
| Ground, Ste 100 | 1,900 sq ft | Negotiable | Upon Application Upon Application Upon Application Upon Application | Office | Full Fit-Out | Now |
| 1st Floor | 2,848 sq ft | Negotiable | Upon Application Upon Application Upon Application Upon Application | Office | Full Fit-Out | Now |
| 2nd Floor | 14,044 sq ft | Negotiable | Upon Application Upon Application Upon Application Upon Application | Office | Shell And Core | Now |
| 3rd Floor, Ste 300 | 4,982 sq ft | Negotiable | Upon Application Upon Application Upon Application Upon Application | Office | Shell And Core | Now |
| 5th Floor | 14,278 sq ft | Negotiable | Upon Application Upon Application Upon Application Upon Application | Office | Shell And Core | Now |
| 6th Floor | 14,278 sq ft | Negotiable | Upon Application Upon Application Upon Application Upon Application | Office | Shell And Core | Now |
| 9th Floor | 9,363 sq ft | Negotiable | Upon Application Upon Application Upon Application Upon Application | Office | Full Fit-Out | Now |
| 10th Floor | 9,363 sq ft | Negotiable | Upon Application Upon Application Upon Application Upon Application | Office | Full Fit-Out | Now |
| 11th Floor, Ste 1100 | 4,494 sq ft | Negotiable | Upon Application Upon Application Upon Application Upon Application | Office | Full Fit-Out | Now |
| 11th Floor, Ste 1110 | 4,869 sq ft | Negotiable | Upon Application Upon Application Upon Application Upon Application | Office | Full Fit-Out | Now |
| 14th Floor, Ste 1402 | 3,460 sq ft | Negotiable | Upon Application Upon Application Upon Application Upon Application | Office | Full Fit-Out | Now |
| 16th Floor, Ste 1612 | 1,815 sq ft | Negotiable | Upon Application Upon Application Upon Application Upon Application | Office | Full Fit-Out | Now |
| 22nd Floor, Ste 2210 | 3,047 sq ft | Negotiable | Upon Application Upon Application Upon Application Upon Application | Office | Full Fit-Out | Now |
| 23rd Floor, Ste 2310 | 2,077 sq ft | Negotiable | Upon Application Upon Application Upon Application Upon Application | Office | Full Fit-Out | Now |
| 27th Floor | 5,006 sq ft | Negotiable | Upon Application Upon Application Upon Application Upon Application | Office | Full Fit-Out | Now |
| 28th Floor | 5,006 sq ft | Negotiable | Upon Application Upon Application Upon Application Upon Application | Office | Full Fit-Out | Now |
| 29th Floor | 4,083 sq ft | Negotiable | Upon Application Upon Application Upon Application Upon Application | Office | Full Fit-Out | Now |
| 30th Floor | 4,083 sq ft | Negotiable | Upon Application Upon Application Upon Application Upon Application | Office | Full Fit-Out | Now |
Ground
| Size |
| 1,000 sq ft |
| Term |
| Negotiable |
| Rate |
| Upon Application Upon Application Upon Application Upon Application |
| Space Use |
| Retail |
| Condition |
| Shell And Core |
| Available |
| Now |
Ground, Ste 100
| Size |
| 1,900 sq ft |
| Term |
| Negotiable |
| Rate |
| Upon Application Upon Application Upon Application Upon Application |
| Space Use |
| Office |
| Condition |
| Full Fit-Out |
| Available |
| Now |
1st Floor
| Size |
| 2,848 sq ft |
| Term |
| Negotiable |
| Rate |
| Upon Application Upon Application Upon Application Upon Application |
| Space Use |
| Office |
| Condition |
| Full Fit-Out |
| Available |
| Now |
2nd Floor
| Size |
| 14,044 sq ft |
| Term |
| Negotiable |
| Rate |
| Upon Application Upon Application Upon Application Upon Application |
| Space Use |
| Office |
| Condition |
| Shell And Core |
| Available |
| Now |
3rd Floor, Ste 300
| Size |
| 4,982 sq ft |
| Term |
| Negotiable |
| Rate |
| Upon Application Upon Application Upon Application Upon Application |
| Space Use |
| Office |
| Condition |
| Shell And Core |
| Available |
| Now |
5th Floor
| Size |
| 14,278 sq ft |
| Term |
| Negotiable |
| Rate |
| Upon Application Upon Application Upon Application Upon Application |
| Space Use |
| Office |
| Condition |
| Shell And Core |
| Available |
| Now |
6th Floor
| Size |
| 14,278 sq ft |
| Term |
| Negotiable |
| Rate |
| Upon Application Upon Application Upon Application Upon Application |
| Space Use |
| Office |
| Condition |
| Shell And Core |
| Available |
| Now |
9th Floor
| Size |
| 9,363 sq ft |
| Term |
| Negotiable |
| Rate |
| Upon Application Upon Application Upon Application Upon Application |
| Space Use |
| Office |
| Condition |
| Full Fit-Out |
| Available |
| Now |
10th Floor
| Size |
| 9,363 sq ft |
| Term |
| Negotiable |
| Rate |
| Upon Application Upon Application Upon Application Upon Application |
| Space Use |
| Office |
| Condition |
| Full Fit-Out |
| Available |
| Now |
11th Floor, Ste 1100
| Size |
| 4,494 sq ft |
| Term |
| Negotiable |
| Rate |
| Upon Application Upon Application Upon Application Upon Application |
| Space Use |
| Office |
| Condition |
| Full Fit-Out |
| Available |
| Now |
11th Floor, Ste 1110
| Size |
| 4,869 sq ft |
| Term |
| Negotiable |
| Rate |
| Upon Application Upon Application Upon Application Upon Application |
| Space Use |
| Office |
| Condition |
| Full Fit-Out |
| Available |
| Now |
14th Floor, Ste 1402
| Size |
| 3,460 sq ft |
| Term |
| Negotiable |
| Rate |
| Upon Application Upon Application Upon Application Upon Application |
| Space Use |
| Office |
| Condition |
| Full Fit-Out |
| Available |
| Now |
16th Floor, Ste 1612
| Size |
| 1,815 sq ft |
| Term |
| Negotiable |
| Rate |
| Upon Application Upon Application Upon Application Upon Application |
| Space Use |
| Office |
| Condition |
| Full Fit-Out |
| Available |
| Now |
22nd Floor, Ste 2210
| Size |
| 3,047 sq ft |
| Term |
| Negotiable |
| Rate |
| Upon Application Upon Application Upon Application Upon Application |
| Space Use |
| Office |
| Condition |
| Full Fit-Out |
| Available |
| Now |
23rd Floor, Ste 2310
| Size |
| 2,077 sq ft |
| Term |
| Negotiable |
| Rate |
| Upon Application Upon Application Upon Application Upon Application |
| Space Use |
| Office |
| Condition |
| Full Fit-Out |
| Available |
| Now |
27th Floor
| Size |
| 5,006 sq ft |
| Term |
| Negotiable |
| Rate |
| Upon Application Upon Application Upon Application Upon Application |
| Space Use |
| Office |
| Condition |
| Full Fit-Out |
| Available |
| Now |
28th Floor
| Size |
| 5,006 sq ft |
| Term |
| Negotiable |
| Rate |
| Upon Application Upon Application Upon Application Upon Application |
| Space Use |
| Office |
| Condition |
| Full Fit-Out |
| Available |
| Now |
29th Floor
| Size |
| 4,083 sq ft |
| Term |
| Negotiable |
| Rate |
| Upon Application Upon Application Upon Application Upon Application |
| Space Use |
| Office |
| Condition |
| Full Fit-Out |
| Available |
| Now |
30th Floor
| Size |
| 4,083 sq ft |
| Term |
| Negotiable |
| Rate |
| Upon Application Upon Application Upon Application Upon Application |
| Space Use |
| Office |
| Condition |
| Full Fit-Out |
| Available |
| Now |
Ground
| Size | 1,000 sq ft |
| Term | Negotiable |
| Rate | Upon Application |
| Space Use | Retail |
| Condition | Shell And Core |
| Available | Now |
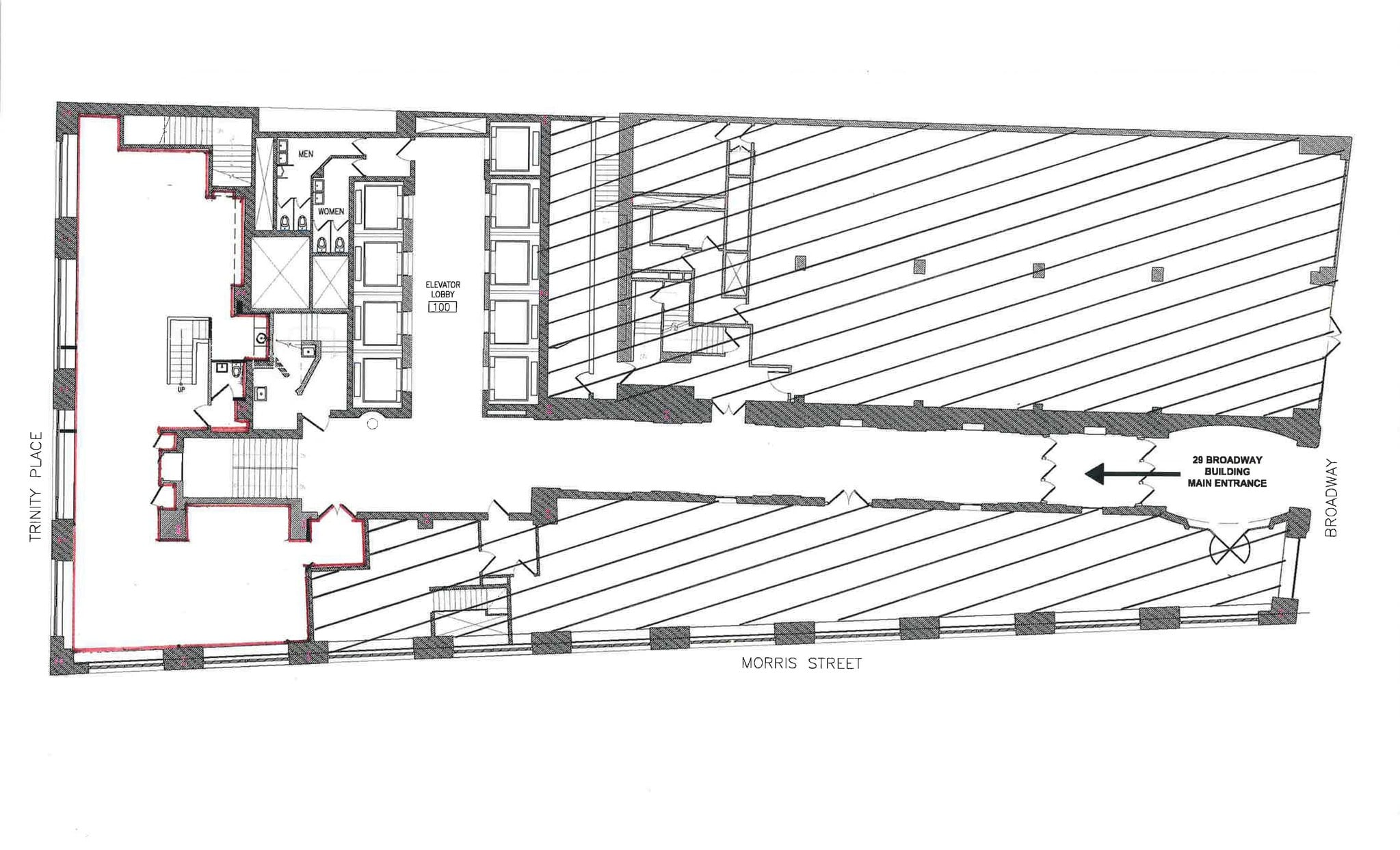
Shell condition retail space available now.
- Located in-line with other retail
- Space is in Excellent Condition
- Display Window
- Available now for built out and move in.
Ground, Ste 100
| Size | 1,900 sq ft |
| Term | Negotiable |
| Rate | Upon Application |
| Space Use | Office |
| Condition | Full Fit-Out |
| Available | Now |
Partioned office space available for move in.
- Fully Fit-Out as Standard Office
- Mostly Open Floor Plan Layout
- Fits 5 - 16 People
- Partitioned Offices
- Space is in Excellent Condition
- Available now for move-in.
1st Floor
| Size | 2,848 sq ft |
| Term | Negotiable |
| Rate | Upon Application |
| Space Use | Office |
| Condition | Full Fit-Out |
| Available | Now |
Space has connecting stairs with the second floor and must be leased together. Can also be combined with third floor by interconnecting stairs, connecting floors one, two and three.
- Fully Fit-Out as Standard Office
- Mostly Open Floor Plan Layout
- Fits 8 - 23 People
- Space is in Excellent Condition
- Can be combined with additional space(s) for up to 21,874 sq ft of adjacent space
- Open-Plan
- Available now for move-in.
- Interconnecting staircase to 2nd and 3rd floors.
2nd Floor
| Size | 14,044 sq ft |
| Term | Negotiable |
| Rate | Upon Application |
| Space Use | Office |
| Condition | Shell And Core |
| Available | Now |
Space has connecting stairs with the first floor and third and must be leased together. Can also be combined with third floor. Interconnecting stairway combining all three.
- Mostly Open Floor Plan Layout
- Space In Need of Renovation
- Can be combined with additional space(s) for up to 21,874 sq ft of adjacent space
- High Ceilings
- 2nd floor has uniquely high ceilings
- Interconnecting staircase to 1st and 3rd floors.
3rd Floor, Ste 300
| Size | 4,982 sq ft |
| Term | Negotiable |
| Rate | Upon Application |
| Space Use | Office |
| Condition | Shell And Core |
| Available | Now |
Interconnecting stairway combining with first and second floor if desired to rent together.
- Mostly Open Floor Plan Layout
- Space is in Excellent Condition
- Can be combined with additional space(s) for up to 21,874 sq ft of adjacent space
- Interconnecting staircase to 2nd and 1st floors.
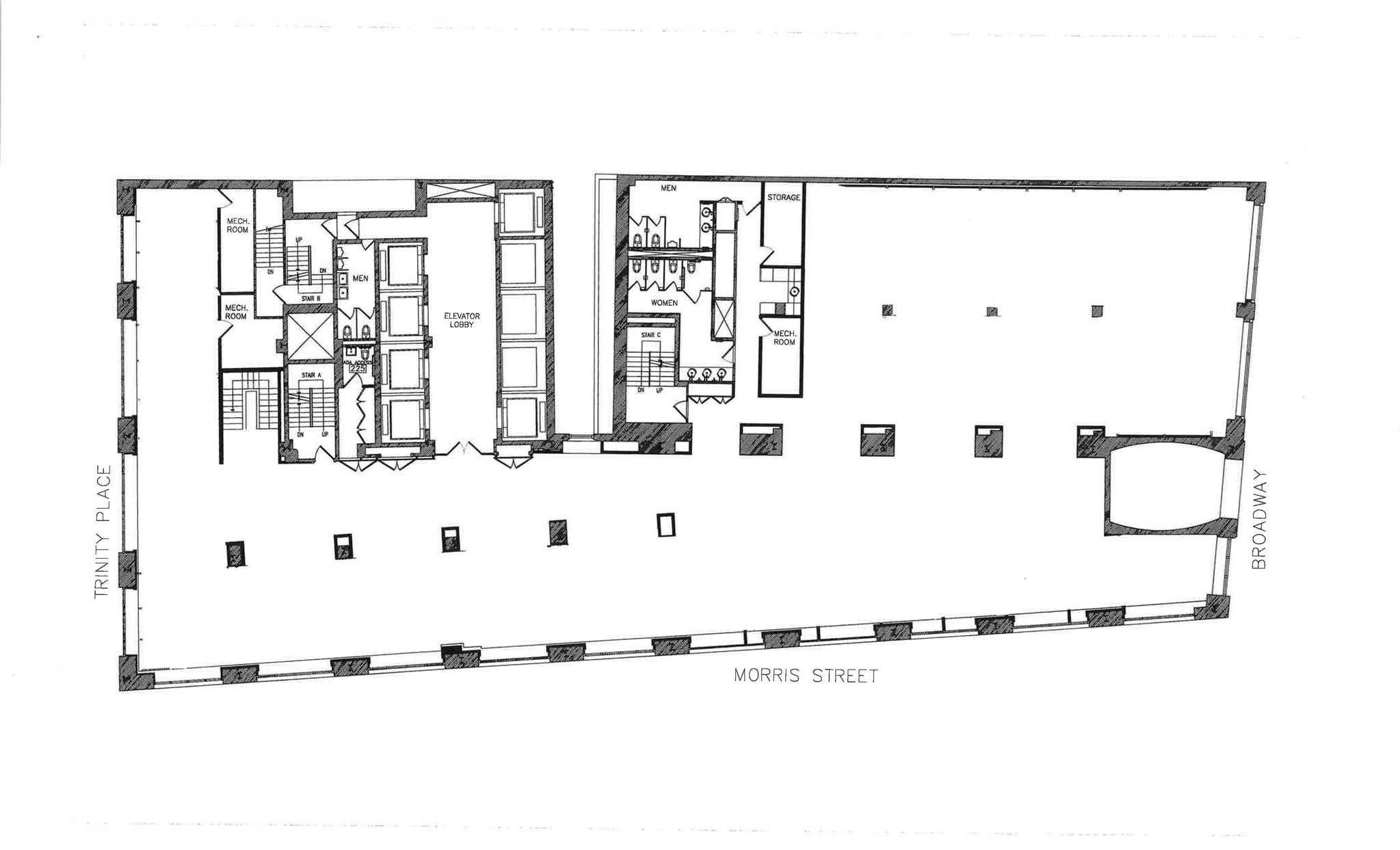
5th Floor
| Size | 14,278 sq ft |
| Term | Negotiable |
| Rate | Upon Application |
| Space Use | Office |
| Condition | Shell And Core |
| Available | Now |
Open plan office space available now.
- Open Floor Plan Layout
- Space In Need of Renovation
- Can be combined with additional space(s) for up to 28,556 sq ft of adjacent space
- Open-Plan
- Open floor plan office on 5th floor.
6th Floor
| Size | 14,278 sq ft |
| Term | Negotiable |
| Rate | Upon Application |
| Space Use | Office |
| Condition | Shell And Core |
| Available | Now |
Open plan office space available now.
- Open Floor Plan Layout
- Space In Need of Renovation
- Can be combined with additional space(s) for up to 28,556 sq ft of adjacent space
- Open-Plan
- Open floor plan office on 5th floor.
9th Floor
| Size | 9,363 sq ft |
| Term | Negotiable |
| Rate | Upon Application |
| Space Use | Office |
| Condition | Full Fit-Out |
| Available | Now |
Cannot be combined with 10th and 11th floor-No interconnecting stairway.
- Fully Fit-Out as Standard Office
- Mostly Open Floor Plan Layout
- Fits 24 - 75 People
- Space is in Excellent Condition
- Can be combined with additional space(s) for up to 18,726 sq ft of adjacent space
- Cannot be combined with 10th or 11th floors.
10th Floor
| Size | 9,363 sq ft |
| Term | Negotiable |
| Rate | Upon Application |
| Space Use | Office |
| Condition | Full Fit-Out |
| Available | Now |
Cannot be combined with 9th and 11th floor-No interconnecting stairway.
- Fully Fit-Out as Standard Office
- Mostly Open Floor Plan Layout
- Fits 24 - 75 People
- Space is in Excellent Condition
- Can be combined with additional space(s) for up to 18,726 sq ft of adjacent space
- Natural Light
- Open-Plan
- Cannot be combined with 9th and 11th floors
11th Floor, Ste 1100
| Size | 4,494 sq ft |
| Term | Negotiable |
| Rate | Upon Application |
| Space Use | Office |
| Condition | Full Fit-Out |
| Available | Now |
Private office space available now.
- Fully Fit-Out as Standard Office
- High-density office layout
- Fits 12 - 36 People
- 11th floor office space.
11th Floor, Ste 1110
| Size | 4,869 sq ft |
| Term | Negotiable |
| Rate | Upon Application |
| Space Use | Office |
| Condition | Full Fit-Out |
| Available | Now |
Private office space available now.
- Fully Fit-Out as Standard Office
- High-density office layout
- Fits 13 - 39 People
- Central Air Conditioning
- Private office space available now.
14th Floor, Ste 1402
| Size | 3,460 sq ft |
| Term | Negotiable |
| Rate | Upon Application |
| Space Use | Office |
| Condition | Full Fit-Out |
| Available | Now |
Private office space available now.
- Fully Fit-Out as Standard Office
- High-density office layout
- Fits 9 - 28 People
- Central Air Conditioning
- Private office space available now.
16th Floor, Ste 1612
| Size | 1,815 sq ft |
| Term | Negotiable |
| Rate | Upon Application |
| Space Use | Office |
| Condition | Full Fit-Out |
| Available | Now |
- Fully Fit-Out as Standard Office
- Mostly Open Floor Plan Layout
- Fits 5 - 15 People
22nd Floor, Ste 2210
| Size | 3,047 sq ft |
| Term | Negotiable |
| Rate | Upon Application |
| Space Use | Office |
| Condition | Full Fit-Out |
| Available | Now |
Private office space available now. Floor plan available upon request. Broadway views
- Listed rate may not include certain utilities, building services and property expenses
- Fully Fit-Out as Standard Office
- Open Floor Plan Layout
- Fits 8 - 25 People
- Central Air Conditioning
- Available now for move in
23rd Floor, Ste 2310
| Size | 2,077 sq ft |
| Term | Negotiable |
| Rate | Upon Application |
| Space Use | Office |
| Condition | Full Fit-Out |
| Available | Now |
Private office space available now.
- Fully Fit-Out as Standard Office
- High-density office layout
- Fits 6 - 17 People
- Central Air Conditioning
- Available now for move in
27th Floor
| Size | 5,006 sq ft |
| Term | Negotiable |
| Rate | Upon Application |
| Space Use | Office |
| Condition | Full Fit-Out |
| Available | Now |
Private office space available now.
- Fully Fit-Out as Standard Office
- High-density office layout
- Fits 13 - 41 People
- Partitioned Offices
- Can be combined with additional space(s) for up to 18,178 sq ft of adjacent space
- Available now for move in.
28th Floor
| Size | 5,006 sq ft |
| Term | Negotiable |
| Rate | Upon Application |
| Space Use | Office |
| Condition | Full Fit-Out |
| Available | Now |
Mostly partitioned private office space available now.
- Fully Fit-Out as Standard Office
- High-density office layout
- Fits 13 - 41 People
- Partitioned Offices
- Space is in Excellent Condition
- Can be combined with additional space(s) for up to 18,178 sq ft of adjacent space
- Suite of offices available for move in.
29th Floor
| Size | 4,083 sq ft |
| Term | Negotiable |
| Rate | Upon Application |
| Space Use | Office |
| Condition | Full Fit-Out |
| Available | Now |
The 29th floor must be rented with the 30th floor. The two floors share an interconnecting stairway giving the office space a total of 8,166 sf at the top of the building. The space has a modern look with an abundance of natural light and is in very good condition.
- Fully Fit-Out as Standard Office
- Mostly Open Floor Plan Layout
- Fits 11 - 33 People
- Space is in Excellent Condition
- Can be combined with additional space(s) for up to 18,178 sq ft of adjacent space
- Natural Light
- The 29th floor must be rented with the 30th floor.
30th Floor
| Size | 4,083 sq ft |
| Term | Negotiable |
| Rate | Upon Application |
| Space Use | Office |
| Condition | Full Fit-Out |
| Available | Now |
The 30th floor must be rented with the 29th floor. The two floors share an interconnecting stairway giving the office space a total of 8,166 sf at the top of the building. The space has a modern look with an abundance of natural light and is in very good condition.
- Fully Fit-Out as Standard Office
- Mostly Open Floor Plan Layout
- Fits 11 - 33 People
- Space is in Excellent Condition
- Can be combined with additional space(s) for up to 18,178 sq ft of adjacent space
- Central Air Conditioning
- The 29th floor must be rented with the 30th floor.
PROPERTY OVERVIEW
Directly across from the Bowling Green “Charging Bull” Statue in the heart of lower Manhattan’s Financial District stands 29 Broadway, an Art Deco Icon and ultra-modern office tower with 21st Century technology. The Financial District has been transformed into a 24-hour, 7-day-a-week destination. The neighborhood boasts top restaurants and shopping, and is fast becoming a commercial and residential hotspot. This Art Deco gem completed in 1931 was designed by Sloan & Robertson, architects of many legendary New York City office buildings, such as The Graybar Building, The Chanin Building, The Pershing Square Building, as well as The Century and The Majestic. The Art Deco lobby execution features vast Cippolino marble walls – slate green, gray and white with an aluminum leaf ceiling and Sienese travertine D Bal Max review floors. A masterpiece of Art Deco Modernism, 29 Broadway is a main attraction on Art Deco historical walking tours in Manhattan and is often referenced as one of New York City’s timeless commercial structural monuments.
- 24 Hour Access
- Atrium
- Banking
- Controlled Access
- Public Transport
- Property Manager on Site
- Security System
- Energy Star Labelled
- Air Conditioning
PROPERTY FACTS
Presented by
29 Broadway
Hmm, there seems to have been an error sending your message. Please try again.
Thanks! Your message was sent.
















