Your email has been sent.
PARK HIGHLIGHTS
- 1,200 - 12,000 SF industrial flex units available in a full building. Multiple units can be combined.
- 22' Ceiling & 14' Bay Doors. High ceilings available for additional mezzanine.
- Located in Denton County jurisdiction. No city zoning.
- Leases are industrial gross and NNN expenses are not charged
- Additional overflow parking within the business park.
PARK FACTS
FEATURES AND AMENITIES
- Mezzanine
- Signage
- Tenant Controlled HVAC
- Air Conditioning
Display Rent as
- SPACE
- SIZE
- TERM
- RATE
- USE
- CONDITION
- AVAILABLE
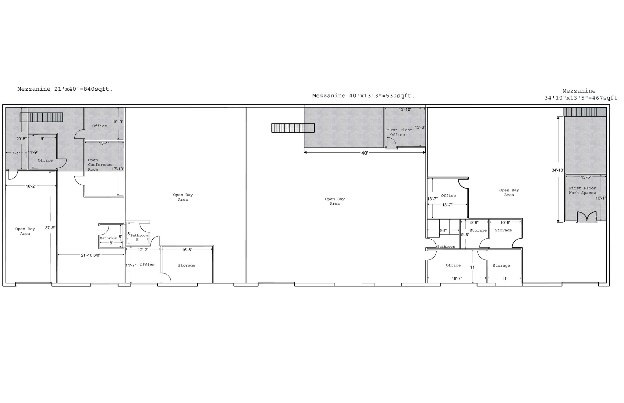
3,240 Total SF Unit (2,400 SF Ground Floor + 840 SF Steel Mezzanine) This endcap flex unit blends modern office finishes with practical warehouse functionality. With premium design details, a front-of-park location, and flexible space configurations, it is perfectly suited for businesses seeking a professional image with functional workspace. Unit Highlights Business Park Owner’s Former Office – The nicest unit in the park, thoughtfully designed and upgraded with premium finishes. Beautiful Office & Conference Layout – Modern glass-walled conference room (214 SF), multiple offices, and flexible workspaces. Functional Bay Area – Roll-up door access with excellent separation of office and warehouse (643 SF) areas via cedar plank accent wall with brick features. Versatile Steel Mezzanine (840 SF) – Ideal for storage, additional offices, or a second conference area. High-End Finishes Throughout – Vinyl hardwood plank flooring, cedar plank accent wall, brick features, and full kitchenette. Electric: Phase 3 Power
- Fits 9 - 26 People
- Includes 473 sq ft of dedicated office space
- 3,240 SF unit (2,400 SF + 840 SF Mezzanine)
- Lease is industrial gross and does not include NNN
- Full HVAC throughout unit
- Space is in Excellent Condition
- 1 Level Access Door
- Nicest unit in the park
- Phase 3 Power
| Space | Size | Term | Rate | Space Use | Condition | Available |
| 1st Floor, Ste 9A | 3,240 sq ft | Negotiable | Upon Application Upon Application Upon Application Upon Application | Office | Full Fit-Out | Now |
308 E FM 1830 - 1st Floor - Ste 9A
- SPACE
- SIZE
- TERM
- RATE
- USE
- CONDITION
- AVAILABLE
2,000 Total SF Unit with one bathroom on two offices (12' x 12') Phase 3 power 22' high ceiling One 14' roll up door Full HVAC throughout unit Lease is industrial gross and does not include CAM's or NNN. Water and septic is paid for by business park.
- Includes 288 sq ft of dedicated office space
- 2 Level Access Doors
- High Ceilings
- Full HVAC throughout unit
- Phase 3 Power
- Space is in Excellent Condition
- Central Air and Heating
- 2000 SF unit with one bathroom & two offices
- Lease is industrial gross and does not include NNN
2,000 Total SF Unit with one bathroom on two offices (12' x 12') Phase 3 power 22' high ceiling One 14' roll up door Full HVAC throughout unit Lease is industrial gross and does not include CAM's or NNN. Water and septic is paid for by business park.
- Includes 288 sq ft of dedicated office space
- Space is in Excellent Condition
- Full HVAC throughout unit
- Phase 3 Power
- 2 Level Access Doors
- 2000 SF unit with one bathroom & two offices
- Lease is industrial gross and does not include NNN
2,400 Total SF Unit with one bathroom and office near the front of the business park (building 5) Phase 3 power 22' high ceiling One 14' roll up door Full HVAC throughout unit Lease is industrial gross and does not include CAM's or NNN. Water and septic is paid for by business park.
- Space is in Excellent Condition
- Central Air and Heating
- 2400 SF end cap unit with one bathroom and office
- Lease is industrial gross and does not include NNN
- 2 Level Access Doors
- High Ceilings
- Full HVAC throughout unit
- Phase 3 Power
2,400 Total SF Unit with one bathroom and office near the front of the business park (building 5) Phase 3 power 22' high ceiling One 14' roll up door Full HVAC throughout unit Lease is industrial gross and does not include CAM's or NNN. Water and septic is paid for by business park.
- 2 Level Access Doors
- 2400 SF end cap unit with one bathroom and office
- Lease is industrial gross and does not include NNN
- Space is in Excellent Condition
- Full HVAC throughout unit
- Phase 3 Power
4,800 Total SF Unit with two bathrooms Phase 3 power 22' high ceiling Three 14' roll up doors Unit is located near the front of the business park near the entrance with close access to additional parking Lease is industrial gross and does not include CAM's or NNN. Water and septic is paid for by business park.
- Space is in Excellent Condition
- Central Air and Heating
- 9600 SF unit with two mezzanines
- Lease is industrial gross and does not include NNN
- 2 Level Access Doors
- High Ceilings
- Full HVAC throughout unit
- Phase 3 Power
4,800 Total SF Unit with two bathrooms Phase 3 power 22' high ceiling Three 14' roll up doors Unit is located near the front of the business park near the entrance with close access to additional parking Lease is industrial gross and does not include CAM's or NNN. Water and septic is paid for by business park.
- 2 Level Access Doors
- 2400 SF unit with two bathrooms
- Lease is industrial gross and does not include NNN
- Unit is located near the front of business park
- Space is in Excellent Condition
- Full HVAC throughout unit
- Phase 3 Power
3,240 Total SF Unit (2,400 SF Ground Floor + 840 SF Steel Mezzanine) This endcap flex unit blends modern office finishes with practical warehouse functionality. With premium design details, a front-of-park location, and flexible space configurations, it is perfectly suited for businesses seeking a professional image with functional workspace. Unit Highlights Business Park Owner’s Former Office – The nicest unit in the park, thoughtfully designed and upgraded with premium finishes. Beautiful Office & Conference Layout – Modern glass-walled conference room (214 SF), multiple offices, and flexible workspaces. Functional Bay Area – Roll-up door access with excellent separation of office and warehouse (643 SF) areas via cedar plank accent wall with brick features. Versatile Steel Mezzanine (840 SF) – Ideal for storage, additional offices, or a second conference area. High-End Finishes Throughout – Vinyl hardwood plank flooring, cedar plank accent wall, brick features, and full kitchenette. Electric: Phase 3 Power
- Includes 473 sq ft of dedicated office space
- 1 Level Access Door
- High Ceilings
- Nicest unit in the park
- Phase 3 Power
- Space is in Excellent Condition
- Central Air and Heating
- 3,240 SF unit (2,400 SF + 840 SF Mezzanine)
- Lease is industrial gross and does not include NNN
- Full HVAC throughout unit
3,240 Total SF Unit (2,400 SF Ground Floor + 840 SF Steel Mezzanine) This endcap flex unit blends modern office finishes with practical warehouse functionality. With premium design details, a front-of-park location, and flexible space configurations, it is perfectly suited for businesses seeking a professional image with functional workspace. Unit Highlights Business Park Owner’s Former Office – The nicest unit in the park, thoughtfully designed and upgraded with premium finishes. Beautiful Office & Conference Layout – Modern glass-walled conference room (214 SF), multiple offices, and flexible workspaces. Functional Bay Area – Roll-up door access with excellent separation of office and warehouse (643 SF) areas via cedar plank accent wall with brick features. Versatile Steel Mezzanine (840 SF) – Ideal for storage, additional offices, or a second conference area. High-End Finishes Throughout – Vinyl hardwood plank flooring, cedar plank accent wall, brick features, and full kitchenette. Electric: Phase 3 Power
- Fits 9 - 26 People
- Includes 473 sq ft of dedicated office space
- 3,240 SF unit (2,400 SF + 840 SF Mezzanine)
- Lease is industrial gross and does not include NNN
- Full HVAC throughout unit
- Space is in Excellent Condition
- 1 Level Access Door
- Nicest unit in the park
- Phase 3 Power
3,240 Total SF Unit (2,400 SF Ground Floor + 840 SF Steel Mezzanine) This endcap flex unit blends modern office finishes with practical warehouse functionality. With premium design details, a front-of-park location, and flexible space configurations, it is perfectly suited for businesses seeking a professional image with functional workspace. Unit Highlights Business Park Owner’s Former Office – The nicest unit in the park, thoughtfully designed and upgraded with premium finishes. Beautiful Office & Conference Layout – Modern glass-walled conference room (214 SF), multiple offices, and flexible workspaces. Functional Bay Area – Roll-up door access with excellent separation of office and warehouse (643 SF) areas via cedar plank accent wall with brick features. Versatile Steel Mezzanine (840 SF) – Ideal for storage, additional offices, or a second conference area. High-End Finishes Throughout – Vinyl hardwood plank flooring, cedar plank accent wall, brick features, and full kitchenette. Electric: Phase 3 Power
- Includes 473 sq ft of dedicated office space
- Space is in Excellent Condition
- Nicest unit in the park
- Phase 3 Power
- 1 Level Access Door
- 3,240 SF unit (2,400 SF + 840 SF Mezzanine)
- Lease is industrial gross and does not include NNN
- Full HVAC throughout unit
10,638 Total SF (9600 SF + 1,038 Mezzanine Space) Completely finished out unit with two mezzanines with multiple offices and storage space Phase 3 power 22' high ceiling Four 14' roll up doors Unit is located near the front of the business park near the entrance with close access to additional parking Lease is industrial gross and does not include CAM's or NNN. Water and septic is paid for by business park.
- Listed rate may not include certain utilities, building services and property expenses
- 4 Level Access Doors
- High Ceilings
- Full HVAC throughout unit
- Phase 3 Power
- Space is in Excellent Condition
- Central Air and Heating
- 9600 SF unit with two mezzanines
- Lease is industrial gross and does not include NNN
10,638 Total SF (9600 SF + 1,038 Mezzanine Space) Completely finished out unit with two mezzanines with multiple offices and storage space Phase 3 power 22' high ceiling Four 14' roll up doors Unit is located near the front of the business park near the entrance with close access to additional parking Lease is industrial gross and does not include CAM's or NNN. Water and septic is paid for by business park.
- Listed rate may not include certain utilities, building services and property expenses
- Space is in Excellent Condition
- 9600 SF unit with two mezzanines
- Lease is industrial gross and does not include NNN
- 4 Level Access Doors
- Central Air Conditioning
- Full HVAC throughout unit
- Phase 3 Power
| Space | Size | Term | Rate | Space Use | Condition | Available |
| 1st Floor - 19B | 2,000 sq ft | Negotiable | Upon Application Upon Application Upon Application Upon Application | Light Industrial | Full Fit-Out | 01/01/2026 |
| 1st Floor - 19B | 2,000 sq ft | Negotiable | Upon Application Upon Application Upon Application Upon Application | Industrial | Full Fit-Out | 01/01/2026 |
| 1st Floor - 5B | 2,400 sq ft | Negotiable | Upon Application Upon Application Upon Application Upon Application | Light Industrial | Partial Fit-Out | Now |
| 1st Floor - 5B | 2,400 sq ft | Negotiable | Upon Application Upon Application Upon Application Upon Application | Industrial | Partial Fit-Out | Now |
| 1st Floor - 5D-5E | 4,800 sq ft | Negotiable | Upon Application Upon Application Upon Application Upon Application | Light Industrial | Partial Fit-Out | Now |
| 1st Floor - 5D-5E | 4,800 sq ft | Negotiable | Upon Application Upon Application Upon Application Upon Application | Industrial | Partial Fit-Out | Now |
| 1st Floor - 9A | 3,240 sq ft | Negotiable | Upon Application Upon Application Upon Application Upon Application | Light Industrial | Full Fit-Out | Now |
| 1st Floor, Ste 9A | 3,240 sq ft | Negotiable | Upon Application Upon Application Upon Application Upon Application | Office | Full Fit-Out | Now |
| 1st Floor - 9A | 3,240 sq ft | Negotiable | Upon Application Upon Application Upon Application Upon Application | Industrial | Full Fit-Out | Now |
| 1st Floor - 9B-9E | 10,638 sq ft | Negotiable | Upon Application Upon Application Upon Application Upon Application | Light Industrial | Full Fit-Out | 01/01/2026 |
| 1st Floor - 9B-9E | 10,638 sq ft | Negotiable | Upon Application Upon Application Upon Application Upon Application | Industrial | Full Fit-Out | 01/01/2026 |
308 E FM 1830 - 1st Floor - 19B
308 E FM 1830 - 1st Floor - 19B
308 E FM 1830 - 1st Floor - 5B
308 E FM 1830 - 1st Floor - 5B
308 E FM 1830 - 1st Floor - 5D-5E
308 E FM 1830 - 1st Floor - 5D-5E
308 E FM 1830 - 1st Floor - 9A
308 E FM 1830 - 1st Floor - Ste 9A
308 E FM 1830 - 1st Floor - 9A
308 E FM 1830 - 1st Floor - 9B-9E
308 E FM 1830 - 1st Floor - 9B-9E
308 E FM 1830 - 1st Floor - 19B
| Size | 2,000 sq ft |
| Term | Negotiable |
| Rate | Upon Application |
| Space Use | Light Industrial |
| Condition | Full Fit-Out |
| Available | 01/01/2026 |
2,000 Total SF Unit with one bathroom on two offices (12' x 12') Phase 3 power 22' high ceiling One 14' roll up door Full HVAC throughout unit Lease is industrial gross and does not include CAM's or NNN. Water and septic is paid for by business park.
- Includes 288 sq ft of dedicated office space
- Space is in Excellent Condition
- 2 Level Access Doors
- Central Air and Heating
- High Ceilings
- 2000 SF unit with one bathroom & two offices
- Full HVAC throughout unit
- Lease is industrial gross and does not include NNN
- Phase 3 Power
308 E FM 1830 - 1st Floor - 19B
| Size | 2,000 sq ft |
| Term | Negotiable |
| Rate | Upon Application |
| Space Use | Industrial |
| Condition | Full Fit-Out |
| Available | 01/01/2026 |
2,000 Total SF Unit with one bathroom on two offices (12' x 12') Phase 3 power 22' high ceiling One 14' roll up door Full HVAC throughout unit Lease is industrial gross and does not include CAM's or NNN. Water and septic is paid for by business park.
- Includes 288 sq ft of dedicated office space
- 2 Level Access Doors
- Space is in Excellent Condition
- 2000 SF unit with one bathroom & two offices
- Full HVAC throughout unit
- Lease is industrial gross and does not include NNN
- Phase 3 Power
308 E FM 1830 - 1st Floor - 5B
| Size | 2,400 sq ft |
| Term | Negotiable |
| Rate | Upon Application |
| Space Use | Light Industrial |
| Condition | Partial Fit-Out |
| Available | Now |
2,400 Total SF Unit with one bathroom and office near the front of the business park (building 5) Phase 3 power 22' high ceiling One 14' roll up door Full HVAC throughout unit Lease is industrial gross and does not include CAM's or NNN. Water and septic is paid for by business park.
- Space is in Excellent Condition
- 2 Level Access Doors
- Central Air and Heating
- High Ceilings
- 2400 SF end cap unit with one bathroom and office
- Full HVAC throughout unit
- Lease is industrial gross and does not include NNN
- Phase 3 Power
308 E FM 1830 - 1st Floor - 5B
| Size | 2,400 sq ft |
| Term | Negotiable |
| Rate | Upon Application |
| Space Use | Industrial |
| Condition | Partial Fit-Out |
| Available | Now |
2,400 Total SF Unit with one bathroom and office near the front of the business park (building 5) Phase 3 power 22' high ceiling One 14' roll up door Full HVAC throughout unit Lease is industrial gross and does not include CAM's or NNN. Water and septic is paid for by business park.
- 2 Level Access Doors
- Space is in Excellent Condition
- 2400 SF end cap unit with one bathroom and office
- Full HVAC throughout unit
- Lease is industrial gross and does not include NNN
- Phase 3 Power
308 E FM 1830 - 1st Floor - 5D-5E
| Size | 4,800 sq ft |
| Term | Negotiable |
| Rate | Upon Application |
| Space Use | Light Industrial |
| Condition | Partial Fit-Out |
| Available | Now |
4,800 Total SF Unit with two bathrooms Phase 3 power 22' high ceiling Three 14' roll up doors Unit is located near the front of the business park near the entrance with close access to additional parking Lease is industrial gross and does not include CAM's or NNN. Water and septic is paid for by business park.
- Space is in Excellent Condition
- 2 Level Access Doors
- Central Air and Heating
- High Ceilings
- 9600 SF unit with two mezzanines
- Full HVAC throughout unit
- Lease is industrial gross and does not include NNN
- Phase 3 Power
308 E FM 1830 - 1st Floor - 5D-5E
| Size | 4,800 sq ft |
| Term | Negotiable |
| Rate | Upon Application |
| Space Use | Industrial |
| Condition | Partial Fit-Out |
| Available | Now |
4,800 Total SF Unit with two bathrooms Phase 3 power 22' high ceiling Three 14' roll up doors Unit is located near the front of the business park near the entrance with close access to additional parking Lease is industrial gross and does not include CAM's or NNN. Water and septic is paid for by business park.
- 2 Level Access Doors
- Space is in Excellent Condition
- 2400 SF unit with two bathrooms
- Full HVAC throughout unit
- Lease is industrial gross and does not include NNN
- Phase 3 Power
- Unit is located near the front of business park
308 E FM 1830 - 1st Floor - 9A
| Size | 3,240 sq ft |
| Term | Negotiable |
| Rate | Upon Application |
| Space Use | Light Industrial |
| Condition | Full Fit-Out |
| Available | Now |
3,240 Total SF Unit (2,400 SF Ground Floor + 840 SF Steel Mezzanine) This endcap flex unit blends modern office finishes with practical warehouse functionality. With premium design details, a front-of-park location, and flexible space configurations, it is perfectly suited for businesses seeking a professional image with functional workspace. Unit Highlights Business Park Owner’s Former Office – The nicest unit in the park, thoughtfully designed and upgraded with premium finishes. Beautiful Office & Conference Layout – Modern glass-walled conference room (214 SF), multiple offices, and flexible workspaces. Functional Bay Area – Roll-up door access with excellent separation of office and warehouse (643 SF) areas via cedar plank accent wall with brick features. Versatile Steel Mezzanine (840 SF) – Ideal for storage, additional offices, or a second conference area. High-End Finishes Throughout – Vinyl hardwood plank flooring, cedar plank accent wall, brick features, and full kitchenette. Electric: Phase 3 Power
- Includes 473 sq ft of dedicated office space
- Space is in Excellent Condition
- 1 Level Access Door
- Central Air and Heating
- High Ceilings
- 3,240 SF unit (2,400 SF + 840 SF Mezzanine)
- Nicest unit in the park
- Lease is industrial gross and does not include NNN
- Phase 3 Power
- Full HVAC throughout unit
308 E FM 1830 - 1st Floor - Ste 9A
| Size | 3,240 sq ft |
| Term | Negotiable |
| Rate | Upon Application |
| Space Use | Office |
| Condition | Full Fit-Out |
| Available | Now |
3,240 Total SF Unit (2,400 SF Ground Floor + 840 SF Steel Mezzanine) This endcap flex unit blends modern office finishes with practical warehouse functionality. With premium design details, a front-of-park location, and flexible space configurations, it is perfectly suited for businesses seeking a professional image with functional workspace. Unit Highlights Business Park Owner’s Former Office – The nicest unit in the park, thoughtfully designed and upgraded with premium finishes. Beautiful Office & Conference Layout – Modern glass-walled conference room (214 SF), multiple offices, and flexible workspaces. Functional Bay Area – Roll-up door access with excellent separation of office and warehouse (643 SF) areas via cedar plank accent wall with brick features. Versatile Steel Mezzanine (840 SF) – Ideal for storage, additional offices, or a second conference area. High-End Finishes Throughout – Vinyl hardwood plank flooring, cedar plank accent wall, brick features, and full kitchenette. Electric: Phase 3 Power
- Fits 9 - 26 People
- Space is in Excellent Condition
- Includes 473 sq ft of dedicated office space
- 1 Level Access Door
- 3,240 SF unit (2,400 SF + 840 SF Mezzanine)
- Nicest unit in the park
- Lease is industrial gross and does not include NNN
- Phase 3 Power
- Full HVAC throughout unit
308 E FM 1830 - 1st Floor - 9A
| Size | 3,240 sq ft |
| Term | Negotiable |
| Rate | Upon Application |
| Space Use | Industrial |
| Condition | Full Fit-Out |
| Available | Now |
3,240 Total SF Unit (2,400 SF Ground Floor + 840 SF Steel Mezzanine) This endcap flex unit blends modern office finishes with practical warehouse functionality. With premium design details, a front-of-park location, and flexible space configurations, it is perfectly suited for businesses seeking a professional image with functional workspace. Unit Highlights Business Park Owner’s Former Office – The nicest unit in the park, thoughtfully designed and upgraded with premium finishes. Beautiful Office & Conference Layout – Modern glass-walled conference room (214 SF), multiple offices, and flexible workspaces. Functional Bay Area – Roll-up door access with excellent separation of office and warehouse (643 SF) areas via cedar plank accent wall with brick features. Versatile Steel Mezzanine (840 SF) – Ideal for storage, additional offices, or a second conference area. High-End Finishes Throughout – Vinyl hardwood plank flooring, cedar plank accent wall, brick features, and full kitchenette. Electric: Phase 3 Power
- Includes 473 sq ft of dedicated office space
- 1 Level Access Door
- Space is in Excellent Condition
- 3,240 SF unit (2,400 SF + 840 SF Mezzanine)
- Nicest unit in the park
- Lease is industrial gross and does not include NNN
- Phase 3 Power
- Full HVAC throughout unit
308 E FM 1830 - 1st Floor - 9B-9E
| Size | 10,638 sq ft |
| Term | Negotiable |
| Rate | Upon Application |
| Space Use | Light Industrial |
| Condition | Full Fit-Out |
| Available | 01/01/2026 |
10,638 Total SF (9600 SF + 1,038 Mezzanine Space) Completely finished out unit with two mezzanines with multiple offices and storage space Phase 3 power 22' high ceiling Four 14' roll up doors Unit is located near the front of the business park near the entrance with close access to additional parking Lease is industrial gross and does not include CAM's or NNN. Water and septic is paid for by business park.
- Listed rate may not include certain utilities, building services and property expenses
- Space is in Excellent Condition
- 4 Level Access Doors
- Central Air and Heating
- High Ceilings
- 9600 SF unit with two mezzanines
- Full HVAC throughout unit
- Lease is industrial gross and does not include NNN
- Phase 3 Power
308 E FM 1830 - 1st Floor - 9B-9E
| Size | 10,638 sq ft |
| Term | Negotiable |
| Rate | Upon Application |
| Space Use | Industrial |
| Condition | Full Fit-Out |
| Available | 01/01/2026 |
10,638 Total SF (9600 SF + 1,038 Mezzanine Space) Completely finished out unit with two mezzanines with multiple offices and storage space Phase 3 power 22' high ceiling Four 14' roll up doors Unit is located near the front of the business park near the entrance with close access to additional parking Lease is industrial gross and does not include CAM's or NNN. Water and septic is paid for by business park.
- Listed rate may not include certain utilities, building services and property expenses
- 4 Level Access Doors
- Space is in Excellent Condition
- Central Air Conditioning
- 9600 SF unit with two mezzanines
- Full HVAC throughout unit
- Lease is industrial gross and does not include NNN
- Phase 3 Power
SITE PLAN
PARK OVERVIEW
Affordable industrial units (office/warehouse) in the center of the high growth area of Northern DFW. Argyle Business Park provides a unique location for light industrial, storage and commercial businesses in high income area of Denton County. Great for service related businesses that cater to the growing population of Argyle, Denton, Lantana, Bartonville, and Justin. Property is within county jurisdiction, but fire sprinklers will be installed in all units. Located just north of Lantana and less than 1 mile north of the intersection of FM 1830 and FM 407. Easy access to Lantana, Flower Mound, Denton, I35W, I35E, & 377. Paying brokers 4.5% on leases.
Presented by
Argyle Business Park | Argyle, TX 76226
Hmm, there seems to have been an error sending your message. Please try again.
Thanks! Your message was sent.











