Your email has been sent.
3174 Ridge Rd - Eldoridge Plaza 1,232 - 2,464 sq ft Units Offered at £322,441 - £747,775 Per Unit in McKinney, TX 75070



INVESTMENT HIGHLIGHTS
- Turnkey Finish Out Available For Purchase
- Building & Monument Signage available
- Close proximity to Methodist McKinney Hospital
- Conveniently located on the Frisco / McKinney Border
- Minutes from the Sam Rayburn Tollway
- Synergistic professional environment with a fully maintained landscape
EXECUTIVE SUMMARY
Located on the border of Frisco and McKinney, Eldoridge Plaza consists of 2 professional / medical office buildings. It is located on Ridge Road just south of the signalized intersection at Eldorado Parkway and Ridge Road and minutes from the major arteries including the Sam Rayburn Tollway, the Dallas North Tollway, and Preston Road. Methodist McKinney Hospital and the McKinney Sports Complex are in close proximity to Eldoridge Plaza. Call today for a tour! TURNKEY FINISH OUT AVAILABLE FOR PURCHASE
DATA ROOM Click Here to Access
PROPERTY FACTS
| Total Property Size | 10,878 sq ft | Typical Floor Size | 1,232 sq ft |
| Property Type | Office | Year Built | 2023 |
| Property Subtype | Medical | Total Plot Size | 2.37 ac |
| Costar Property Class | B | Parking Allocation | 9.84/1,000 sq ft |
| Floors | 1 | ||
| Use Class | PD 1646 - Office/Medical/Dental | ||
| Total Property Size | 10,878 sq ft |
| Property Type | Office |
| Property Subtype | Medical |
| Costar Property Class | B |
| Floors | 1 |
| Typical Floor Size | 1,232 sq ft |
| Year Built | 2023 |
| Total Plot Size | 2.37 ac |
| Parking Allocation | 9.84/1,000 sq ft |
| Use Class | PD 1646 - Office/Medical/Dental |
AMENITIES
- 24 Hour Access
- Signage
- Monument Signage
4 UNITS AVAILABLE
Unit 110
| Unit Size | 2,042 sq ft | Unit Use | Office |
| Price | £747,775 | Sale Type | Investment or Owner Occupier |
| Price Per sq ft | £366.20 |
| Unit Size | 2,042 sq ft |
| Price | £747,775 |
| Price Per sq ft | £366.20 |
| Unit Use | Office |
| Sale Type | Investment or Owner Occupier |
DESCRIPTION
This corner professional office consists of approximately 2,402 SF. The stunning modern interior offers a very welcoming feel to both occupants and clients alike. This suite offers a large reception with waiting area, three private offices, a large open office perfect for workstations, one conference room, a game room (could be used as a training room or an additional open office), kitchen, storage closet, and a restroom. There is a secondary entrance / exit available at the rear of the suite. HVAC is Tenant controlled. Building and monument signage is available. Call today for a tour.
SALE NOTES
Fully Finished Professional Office Available
Approx. 2,042 SF
$32 - $34 + NNN for Lease
Call for Sale Pricing
Screenshot 2025-09-18 at 1.57.16?PM
Reception
Reception
Hallway View
Open Office & Conference Room View
Office
Kitchen
Game Room
Unit 120
| Unit Size | 1,232 sq ft | Unit Use | Office / Medical |
| Price | £322,441 | Sale Type | Investment or Owner Occupier |
| Price Per sq ft | £261.72 | Sale Conditions | Design & Build |
| Unit Size | 1,232 sq ft |
| Price | £322,441 |
| Price Per sq ft | £261.72 |
| Unit Use | Office / Medical |
| Sale Type | Investment or Owner Occupier |
| Sale Conditions | Design & Build |
DESCRIPTION
Discover a unique opportunity at Eldoridge Plaza to own a prime piece of real estate with excellent road exposure.
Unit Sizes: 1,232 - 2,464 Square Feet (Double Unit Configuration Available)
Don't miss out on securing your spot in this sought-after location, perfect for businesses seeking visibility and a professional, ready-to-use space. Contact us today to learn more and schedule a viewing.
SALE NOTES
Shell Space
Professional / Medical Offices Available
1,232 SF – 2,464 SF
$350 / SF - Sale
9.84/1000 SF (Parking Ratio)
Site & Floor Plan
Unit 130
| Unit Size | 2,464 sq ft | Unit Use | Office / Medical |
| Price | £644,881 | Sale Type | Investment or Owner Occupier |
| Price Per sq ft | £261.72 | Sale Conditions | Design & Build, Shell Core |
| Unit Size | 2,464 sq ft |
| Price | £644,881 |
| Price Per sq ft | £261.72 |
| Unit Use | Office / Medical |
| Sale Type | Investment or Owner Occupier |
| Sale Conditions | Design & Build, Shell Core |
DESCRIPTION
Discover a unique opportunity at Eldoridge Plaza to own a prime piece of real estate with excellent road exposure.
Unit Sizes: 1,232 - 2,464 Square Feet (Double Unit Configuration Available)
Don't miss out on securing your spot in this sought-after location, perfect for businesses seeking visibility and a professional, ready-to-use space. Contact us today to learn more and schedule a viewing.
SALE NOTES
Shell Space
Professional / Medical Offices Available
1,232 SF – 2,464 SF
$350 / SF - Sale
9.84/1000 SF (Parking Ratio)
Site & Floor Plan
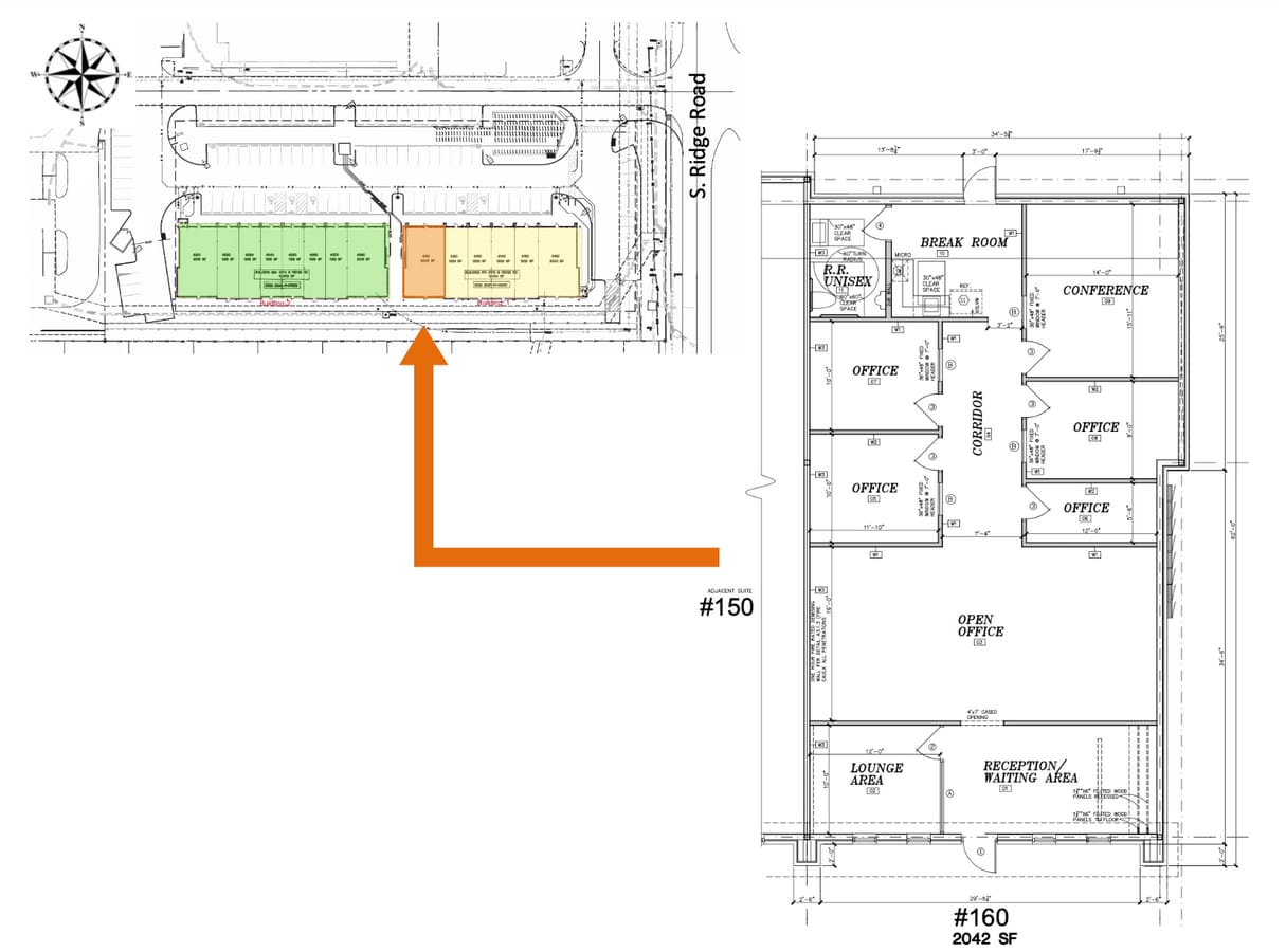
Unit 160
| Unit Size | 2,042 sq ft | Unit Use | Office |
| Price | £710,387 | Sale Type | Investment or Owner Occupier |
| Price Per sq ft | £347.89 |
| Unit Size | 2,042 sq ft |
| Price | £710,387 |
| Price Per sq ft | £347.89 |
| Unit Use | Office |
| Sale Type | Investment or Owner Occupier |
DESCRIPTION
This corner professional office consists of approximately 2,042 SF. Enjoy this suite with its unique and upscale modern interior finishes. This suite offers a reception with waiting area with lounge area, four private offices, a large open office perfect for workstations, one conference room, kitchen, and a restroom with a shower. There is an additional rear entrance / exit at the rear of the suite. HVAC is Tenant controlled. Building and monument signage is available. Call today for a tour.
SALE NOTES
Fully Finished Professional Office Available
Approx. 2,042 SF
$32 - $34 + NNN for Lease
Call for Sale Pricing
Site & Floor Plan
Reception
Lounge Area
Open Office
Open Office View
Hallway View
Conference Room
Kitchen
Restroom with Shower
Presented by
3174 Ridge Rd - Eldoridge Plaza
Hmm, there seems to have been an error sending your message. Please try again.
Thanks! Your message was sent.



