Your email has been sent.
PARK HIGHLIGHTS
- Halifax Industrial Park has versatile made-ready office warehouse spaces near the Design District ready for occupancy.
- Central location placing tenants 10 min from Downtown Dallas, 5 min from the Dallas Design District, Dallas World Trade, and the Medical District.
- Location is home to major industrial users with Ryder Trucking, Dr Pepper Snapple Group, Frito-Lay, Kasmir Fabrics, and more within a 3-mile radius.
- Featuring 2,041- to 3,253-square-foot offices, two to three loading docks, 16-foot clear heights, and new paint, flooring, and LED lighting.
- 15 minutes from DFW Airport and some of Dallas’ most affluent neighborhoods, such as Highland Park and Bluffview.
- Boasting a coveted position less than a mile from Highway 183 and Interstate 35E, outside of Downtown Dallas congestion.
PARK FACTS
| Total Space Available | 10,710 sq ft | Features | Air Conditioning |
| Park Type | Industrial Park |
| Total Space Available | 10,710 sq ft |
| Park Type | Industrial Park |
| Features | Air Conditioning |
FEATURES AND AMENITIES
- Air Conditioning
ALL AVAILABLE SPACE(1)
Display Rent as
- SPACE
- SIZE
- TERM
- RATE
- USE
- CONDITION
- AVAILABLE
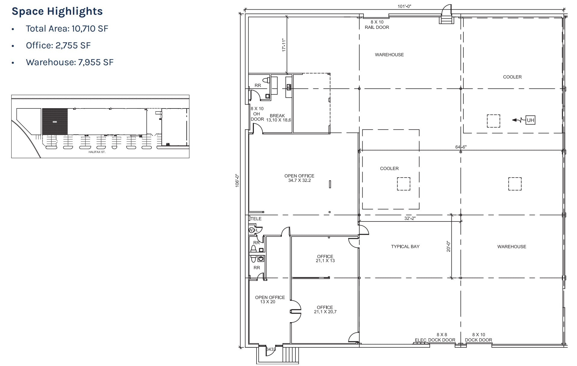
• Total Area: 10,710 SF • Office: 2,755 SF • Warehouse: 7,955 SF • Two (2) Dock High Doors • Year of Construction: 1970 • Easy Access to I-35 & Hwy 183
- Includes 2,755 sq ft of dedicated office space
- 2 Loading Docks
- End-cap unit
- 14' Clear Height
- Space is in Excellent Condition
- Private Restrooms
- 8' x 10' Rail Door
| Space | Size | Term | Rate | Space Use | Condition | Available |
| 1st Floor - 3433 | 10,710 sq ft | Negotiable | Upon Application Upon Application Upon Application Upon Application | Industrial | Full Fit-Out | Now |
3417-3433 Halifax St - 1st Floor - 3433
3417-3433 Halifax St - 1st Floor - 3433
| Size | 10,710 sq ft |
| Term | Negotiable |
| Rate | Upon Application |
| Space Use | Industrial |
| Condition | Full Fit-Out |
| Available | Now |
• Total Area: 10,710 SF • Office: 2,755 SF • Warehouse: 7,955 SF • Two (2) Dock High Doors • Year of Construction: 1970 • Easy Access to I-35 & Hwy 183
- Includes 2,755 sq ft of dedicated office space
- Space is in Excellent Condition
- 2 Loading Docks
- Private Restrooms
- End-cap unit
- 8' x 10' Rail Door
- 14' Clear Height
PARK OVERVIEW
Halifax Industrial Park provides the perfect solution for tenants seeking an office warehouse, showroom, shipping center, and more. Units range from 8,350 to 19,000 square feet, each with roughly 20% of the space a sleekly finished office/showroom area. Recent renovations have been made to deliver these spaces in made-ready condition with new paint, flooring, and LED lighting inside, plus fresh improvements to the exterior. Halifax Industrial Park’s units have a clear height of 15 feet, equipped with dock-high loading. The landlord is offering negotiable plans for tenant improvement allowances and build-out services, allowing tenants to custom-tailor the ideal space. Situated under a mile from the convergence of Interstate 35E and Highway 183, Halifax Industrial Park is strategically positioned to easily reach inner Dallas hotspots while staying out of congestion to serve destinations throughout the metro area. Downtown Dallas and DFW Airport are a stone’s throw away, and affluent greater metro cities like Frisco, Denton, McKinney, and Plano are reachable in 35 minutes or less. Many high-profile tenants choose this area due to the highway connectivity and proximity to the airport. There are also nearby hubs that require storage and last-mile fulfillment, such as UT Southwestern Medical Center, World Trade Center, and the plethora of unique galleries, venues, restaurants, and boutiques at the center of the Design District.
PARK BROCHURE
ABOUT WEST BROOKHOLLOW
The West Brookhollow industrial submarket lies at the geographic center of the Dallas-Fort Worth metroplex. Intersected by key trade routes like Texas State Highways 183 and 114, Loop 12, and, perhaps most importantly, I-35W, the region has been a popular destination for distribution companies for decades.
Being one of Dallas’ original suburban industrial hubs, a majority of the stock in West Brookhollow can be found in small to mid-sized industrial sites and flex buildings of an older vintage. The biggest cluster of these buildings is along John Carpenter Freeway near the former Chicago, Rock Island & Pacific Railroad line purchased by the City of Dallas and Fort Worth in the mid-1980s. Additional hubs are concentrated on the other side of the river in Irving.
Being the product of previous construction cycles, this submarket is relatively well insulated from supply-side pressures that have impacted many of its peers throughout Dallas-Fort Worth. Although space is occasionally cleared to make way for new developments, options are fairly limited thanks to the proliferation of smaller parcels, many of which are occupied by owner-users.
DEMOGRAPHICS
REGIONAL ACCESSIBILITY
NEARBY AMENITIES
RESTAURANTS |
|||
|---|---|---|---|
| Cuates Kitchen | American | - | 11 min walk |
| The Wing Shack | Barbecue | $ | 12 min walk |
| Subway | - | - | 12 min walk |
| Nat's Burgers | Burgers | $ | 12 min walk |
| Dickey's Barbecue Pit | American | - | 13 min walk |
| Bread Winners Café and Bakery | American | $$$ | 14 min walk |
| Starbucks | Cafe | $ | 15 min walk |
RETAIL |
||
|---|---|---|
| 7-Eleven | Local Shop | 11 min walk |
| Macy's | Other Retail | 13 min walk |
HOTELS |
|
|---|---|
| Holiday Inn Express |
111 rooms
4 min drive
|
| Budget Suites of America |
408 rooms
4 min drive
|
LETTING TEAM
Canon Shoults, Managing Principal – Dallas Industrial Leasing
Canon received a Bachelor of Science in Engineering from Texas A&M University. Since graduation, he has also earned his Certified Commercial Investment Member (CCIM) designation and a Graduate Finance Certificate from SMU’s Cox School of Business.
Canon is a member of The Texas Real Estate Council, The North Texas Commercial Association of Realtors and SIOR.
Maddy Coffman, Market Director
Maddy joined Holt Lunsford Commercial in 2017 as a Market Analyst. In this role, she assisted in all project leasing assignments, as well as marketing and business development efforts for the Industrial team.
Maddy is a graduate of the University of Alabama, Culverhouse College of Commerce, where she received a BBA in Marketing, with a specialization in Real Estate. She is licensed by the Texas Real Estate Commission. Maddy currently serves on the board of IWIRE North Texas as Event Chair.
Luke Floyd, Market Associate
Luke received a BA in economics with a minor in business administration from the University of South Carolina. He is licensed by the Texas Real Estate Commission. In his free time Luke likes to hunt, fish, and play guitar.
ABOUT THE OWNER
OTHER PROPERTIES IN THE ARCAPITA PORTFOLIO
Presented by
Halifax Industrial Park | Dallas, TX 75247
Hmm, there seems to have been an error sending your message. Please try again.
Thanks! Your message was sent.






