Your email has been sent.
PARK HIGHLIGHTS
- Prime industrial flex units ranging from 1,200 to 24,000 square feet, strategically located at Highway 403 and Dundas Street W in Mississauga.
- Offering easy access, parking, proximity to public transit and amenities, with immediate access to Queen Elizabeth Way and Highways 403 and 407.
- Functional spaces with warehouse areas, drive-in and/or truck-level doors, LED lighting, modern office layouts, and up to 22-foot ceiling heights.
- Tenants and clients benefit from easy connectivity to major highways, ensuring convenient regional connectivity across the Greater Toronto Area.
PARK FACTS
| Total Space Available | 78,146 sq ft | Park Type | Industrial Park |
| Max. Contiguous | 4,093 sq ft |
| Total Space Available | 78,146 sq ft |
| Max. Contiguous | 4,093 sq ft |
| Park Type | Industrial Park |
ALL AVAILABLE SPACES(21)
Display Rent as
- SPACE
- SIZE
- TERM
- RATE
- USE
- CONDITION
- AVAILABLE
- Lease rate does not include utilities, property expenses or building services
- 1 Loading Dock
- Includes 975 sq ft of dedicated office space
Park of Western Business Park, this ideal flex use space features a 15'6" clear height with one drive in door.
- Lease rate does not include utilities, property expenses or building services
- 1 Level Access Door
- Includes 577 sq ft of dedicated office space
- Office space built out
15'1" clear height. 1 loading dock door.
- Lease rate does not include utilities, property expenses or building services
- 1 Loading Dock
| Space | Size | Term | Rate | Space Use | Condition | Available |
| 1st Floor - 01 | 1,691 sq ft | Negotiable | £10.05 /sq ft pa £0.84 /sq ft pcm £16,997 pa £1,416 pcm | Light Industrial | Partial Fit-Out | Now |
| 1st Floor - 05 | 2,074 sq ft | Negotiable | £10.05 /sq ft pa £0.84 /sq ft pcm £20,847 pa £1,737 pcm | Light Industrial | - | Now |
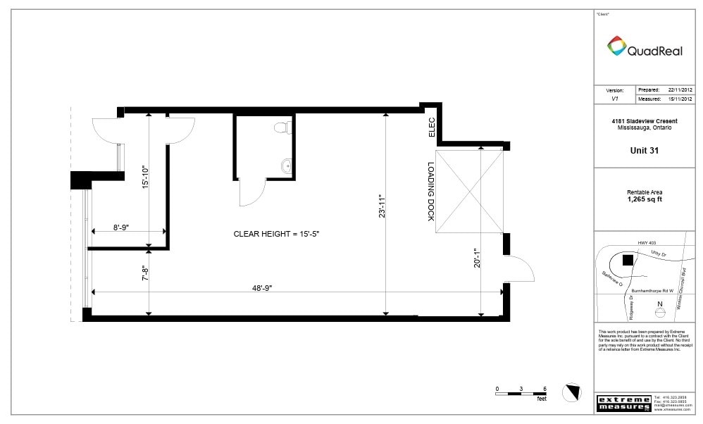
| 1st Floor - 31 | 1,265 sq ft | Negotiable | £10.05 /sq ft pa £0.84 /sq ft pcm £12,715 pa £1,060 pcm | Industrial | Partial Fit-Out | Now |
4161 Sladeview Cres - 1st Floor - 01
4161 Sladeview Cres - 1st Floor - 05
4161 Sladeview Cres - 1st Floor - 31
- SPACE
- SIZE
- TERM
- RATE
- USE
- CONDITION
- AVAILABLE
- Lease rate does not include utilities, property expenses or building services
- Space is in Excellent Condition
- Includes 2,606 sq ft of dedicated office space
- Includes 2,401 sq ft of dedicated office space
- Space is in Excellent Condition
| Space | Size | Term | Rate | Space Use | Condition | Available |
| 1st Floor - 1 | 6,311 sq ft | 1-10 Years | £10.05 /sq ft pa £0.84 /sq ft pcm £63,434 pa £5,286 pcm | Industrial | Full Fit-Out | 01/01/2026 |
| 1st Floor - 2 | 6,306 sq ft | 1-10 Years | Upon Application Upon Application Upon Application Upon Application | Industrial | Full Fit-Out | 01/01/2026 |
3165 Unity Dr - 1st Floor - 1
3165 Unity Dr - 1st Floor - 2
- SPACE
- SIZE
- TERM
- RATE
- USE
- CONDITION
- AVAILABLE
Part of Western Business Park, Suite 10 features an ideal mix of office and warehouse space with 15'7" clear heights.
- Lease rate does not include utilities, property expenses or building services
- 1 Level Access Door
- Private Restrooms
- Includes 1,021 sq ft of dedicated office space
- Kitchen
Part of Western Business Park, Suite 9 features an ideal mix of office and warehouse space with a 15'8.9" clear height. The space includes a kitchenette and a drive-in door.
- Lease rate does not include utilities, property expenses or building services
- 1 Level Access Door
- Includes 632 sq ft of dedicated office space
- Kitchen
| Space | Size | Term | Rate | Space Use | Condition | Available |
| 1st Floor - 10 | 1,721 sq ft | Negotiable | £10.05 /sq ft pa £0.84 /sq ft pcm £17,298 pa £1,442 pcm | Light Industrial | - | 30 Days |
| 1st Floor - 9 | 1,616 sq ft | Negotiable | £10.05 /sq ft pa £0.84 /sq ft pcm £16,243 pa £1,354 pcm | Light Industrial | - | Now |
3170 Ridgeway Dr - 1st Floor - 10
3170 Ridgeway Dr - 1st Floor - 9
- SPACE
- SIZE
- TERM
- RATE
- USE
- CONDITION
- AVAILABLE
Located in Western Business Park
- Lease rate does not include utilities, property expenses or building services
- Space is in Excellent Condition
- Includes 1,474 sq ft of dedicated office space
| Space | Size | Term | Rate | Space Use | Condition | Available |
| 1st Floor - 11 | 2,966 sq ft | 1-10 Years | £10.05 /sq ft pa £0.84 /sq ft pcm £29,812 pa £2,484 pcm | Light Industrial | Full Fit-Out | Now |
4141 Sladeview Cres - 1st Floor - 11
- SPACE
- SIZE
- TERM
- RATE
- USE
- CONDITION
- AVAILABLE
16'1" clear height and 1 loading dock door. 508 SF of office space.
- Lease rate does not include utilities, property expenses or building services
- 1 Loading Dock
- Includes 508 sq ft of dedicated office space
| Space | Size | Term | Rate | Space Use | Condition | Available |
| 1st Floor - 20 | 2,763 sq ft | Negotiable | £11.14 /sq ft pa £0.93 /sq ft pcm £30,774 pa £2,565 pcm | Industrial | Partial Fit-Out | Now |
3495 Laird Rd - 1st Floor - 20
- SPACE
- SIZE
- TERM
- RATE
- USE
- CONDITION
- AVAILABLE
1,962 SF space with a 15'8" clear height and 1 drive-in door. Space has 1,067 SF of built-out office space as well as a kitchen.
- Lease rate does not include utilities, property expenses or building services
- 1 Level Access Door
- Includes 1,067 sq ft of dedicated office space
| Space | Size | Term | Rate | Space Use | Condition | Available |
| 1st Floor - 24 | 1,962 sq ft | Negotiable | £10.05 /sq ft pa £0.84 /sq ft pcm £19,721 pa £1,643 pcm | Light Industrial | Partial Fit-Out | Now |
3150 Ridgeway Dr - 1st Floor - 24
- SPACE
- SIZE
- TERM
- RATE
- USE
- CONDITION
- AVAILABLE
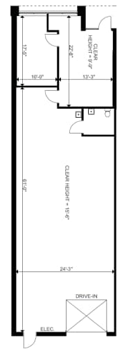
Part of Western Business Park, this suite features 18'1" clear heights and a drive in door.
- Lease rate does not include utilities, property expenses or building services
- 1 Level Access Door
- Office space built out
- Includes 407 sq ft of dedicated office space
- Space is in Excellent Condition
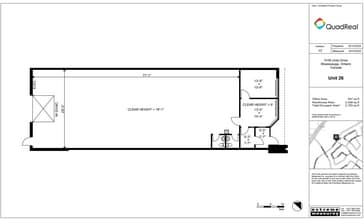
15'2" clear height, 1 drive-in door. Private restroom. Close to Hwy 40 3, QEW, public transit and amenities.
- Lease rate does not include utilities, property expenses or building services
- 1 Level Access Door
| Space | Size | Term | Rate | Space Use | Condition | Available |
| 1st Floor - 26 | 2,755 sq ft | 1-10 Years | £10.05 /sq ft pa £0.84 /sq ft pcm £27,692 pa £2,308 pcm | Industrial | Full Fit-Out | Now |
| 1st Floor - 5 | 1,368 sq ft | Negotiable | £10.05 /sq ft pa £0.84 /sq ft pcm £13,750 pa £1,146 pcm | Industrial | Partial Fit-Out | Now |
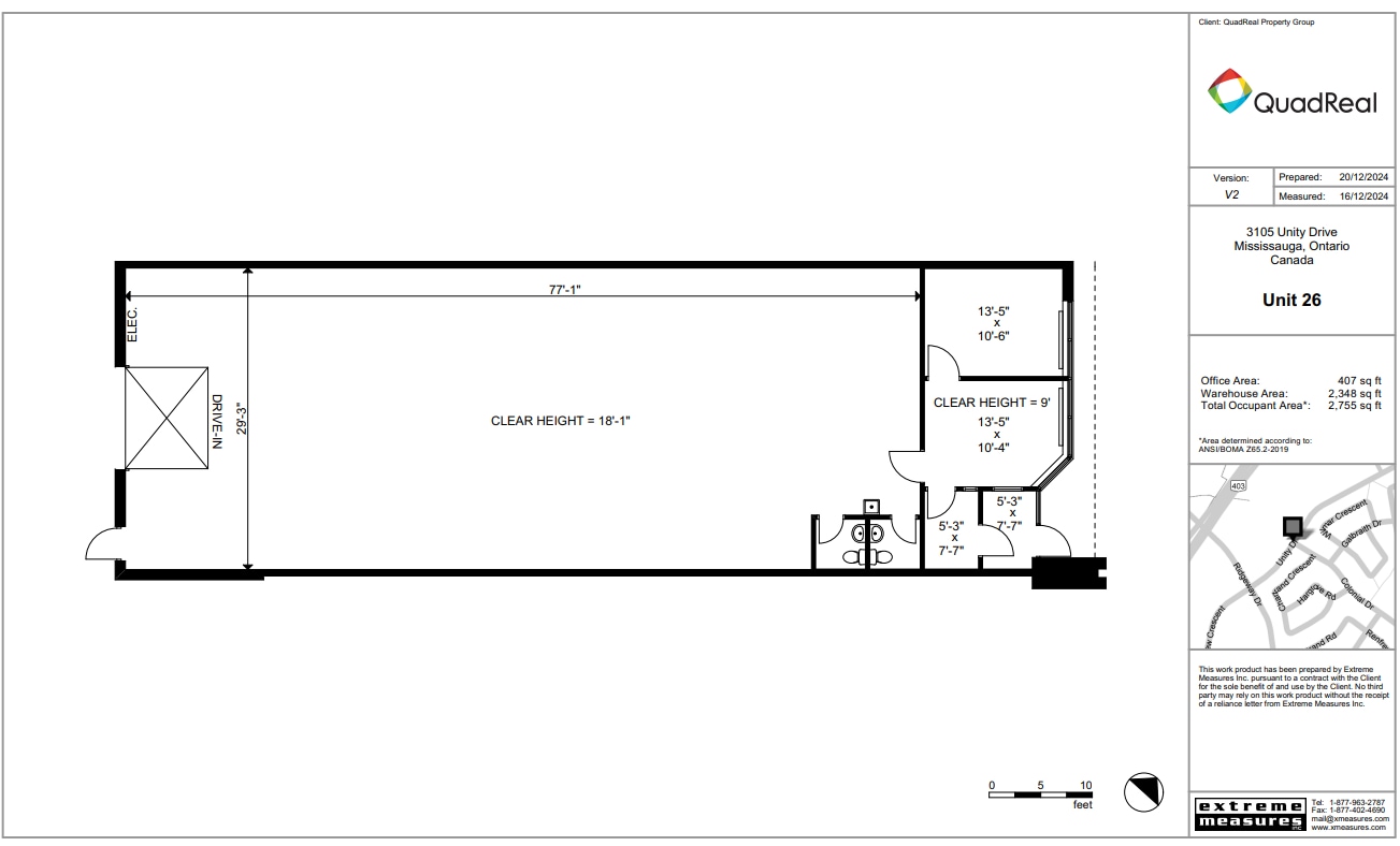
3105 Unity Dr - 1st Floor - 26
3105 Unity Dr - 1st Floor - 5
- SPACE
- SIZE
- TERM
- RATE
- USE
- CONDITION
- AVAILABLE
Located in Western Business Park, Suite 3 features an ideal mix of office and industrial use space with 16'8" clear heights in the warehouse. The space features 200A/600V power with LED lighting.
- Lease rate does not include utilities, property expenses or building services
- Space is in Excellent Condition
- Includes 2,329 sq ft of dedicated office space
Located in Western Business Park, available for immediate occupancy!
- Lease rate does not include utilities, property expenses or building services
| Space | Size | Term | Rate | Space Use | Condition | Available |
| 1st Floor - 3 | 10,307 sq ft | 1-10 Years | £10.05 /sq ft pa £0.84 /sq ft pcm £103,600 pa £8,633 pcm | Industrial | Full Fit-Out | Now |
| 1st Floor - 5 | 10,317 sq ft | Negotiable | £10.05 /sq ft pa £0.84 /sq ft pcm £103,700 pa £8,642 pcm | Industrial | Full Fit-Out | Now |
3135 Unity Dr - 1st Floor - 3
3135 Unity Dr - 1st Floor - 5
- SPACE
- SIZE
- TERM
- RATE
- USE
- CONDITION
- AVAILABLE
- Lease rate does not include utilities, property expenses or building services
- Space is in Excellent Condition
- Lease rate does not include utilities, property expenses or building services
- Space is in Excellent Condition
- Includes 573 sq ft of dedicated office space
| Space | Size | Term | Rate | Space Use | Condition | Available |
| 1st Floor - 31 | 1,265 sq ft | 1-10 Years | £10.05 /sq ft pa £0.84 /sq ft pcm £12,715 pa £1,060 pcm | Industrial | Full Fit-Out | Now |
| 1st Floor - 36 | 1,434 sq ft | 1-10 Years | £10.05 /sq ft pa £0.84 /sq ft pcm £14,414 pa £1,201 pcm | Industrial | Full Fit-Out | Now |
4181 Sladeview Cres - 1st Floor - 31
4181 Sladeview Cres - 1st Floor - 36
- SPACE
- SIZE
- TERM
- RATE
- USE
- CONDITION
- AVAILABLE
- Includes 760 sq ft of dedicated office space
- Can be combined with additional space(s) for up to 4,093 sq ft of adjacent space
- Space is in Excellent Condition
- Includes 760 sq ft of dedicated office space
- Can be combined with additional space(s) for up to 4,093 sq ft of adjacent space
- Space is in Excellent Condition
| Space | Size | Term | Rate | Space Use | Condition | Available |
| 1st Floor - 33 | 2,047 sq ft | 1-10 Years | £10.05 /sq ft pa £0.84 /sq ft pcm £20,575 pa £1,715 pcm | Industrial | Full Fit-Out | 01/01/2026 |
| 1st Floor - 34 | 2,046 sq ft | 1-10 Years | £10.05 /sq ft pa £0.84 /sq ft pcm £20,565 pa £1,714 pcm | Industrial | Full Fit-Out | 01/01/2026 |
3190 Ridgeway Dr - 1st Floor - 33
3190 Ridgeway Dr - 1st Floor - 34
- SPACE
- SIZE
- TERM
- RATE
- USE
- CONDITION
- AVAILABLE
Flex Industrial/ Commercial unit with exposure onto Laird Road. Currently built out with mix of private offices, showroom and warehouse space. Unit features 18' clear height and 1 dock-level door with shipping court accommodating 53' trailer access.
- Lease rate does not include utilities, property expenses or building services
- 1 Loading Dock
- Includes 2,478 sq ft of dedicated office space
| Space | Size | Term | Rate | Space Use | Condition | Available |
| 1st Floor - 4 | 10,052 sq ft | 1-10 Years | £11.14 /sq ft pa £0.93 /sq ft pcm £111,959 pa £9,330 pcm | Industrial | - | Now |
3425 Laird Rd - 1st Floor - 4
- SPACE
- SIZE
- TERM
- RATE
- USE
- CONDITION
- AVAILABLE
- Lease rate does not include utilities, property expenses or building services
- Space is in Excellent Condition
- Includes 407 sq ft of dedicated office space
- 1 Loading Dock
| Space | Size | Term | Rate | Space Use | Condition | Available |
| 1st Floor - 40 | 3,957 sq ft | 1-10 Years | £10.05 /sq ft pa £0.84 /sq ft pcm £39,773 pa £3,314 pcm | Industrial | Full Fit-Out | 01/07/2026 |
4120 Ridgeway Dr - 1st Floor - 40
- SPACE
- SIZE
- TERM
- RATE
- USE
- CONDITION
- AVAILABLE
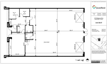
Double unit with open warehouse area and built out office, featuring 2 private offices and 2 washrooms. See floor plan. On-site parking, walking distance to restaurants, shopping and public transit on Ridgeway Drive. Conveniently located in close proximity to Hwys QEW, 403 & 407. Asking Rate is for first year only, annual escalations. All deposits by Certified Cheque or Bank Draft. Tours: Mon-Fri during business hours. Minimum 24 hour notice for all showings.
- Lease rate does not include utilities, property expenses or building services
- 2 Level Access Doors
- Private Restrooms
- Includes 1,057 sq ft of dedicated office space
- Kitchen
| Space | Size | Term | Rate | Space Use | Condition | Available |
| 1st Floor - 56-57 | 3,923 sq ft | 1-5 Years | £10.05 /sq ft pa £0.84 /sq ft pcm £39,432 pa £3,286 pcm | Industrial | Full Fit-Out | Now |
3176 Ridgeway Dr - 1st Floor - 56-57
4161 Sladeview Cres - 1st Floor - 01
| Size | 1,691 sq ft |
| Term | Negotiable |
| Rate | £10.05 /sq ft pa |
| Space Use | Light Industrial |
| Condition | Partial Fit-Out |
| Available | Now |
- Lease rate does not include utilities, property expenses or building services
- Includes 975 sq ft of dedicated office space
- 1 Loading Dock
4161 Sladeview Cres - 1st Floor - 05
| Size | 2,074 sq ft |
| Term | Negotiable |
| Rate | £10.05 /sq ft pa |
| Space Use | Light Industrial |
| Condition | - |
| Available | Now |
Park of Western Business Park, this ideal flex use space features a 15'6" clear height with one drive in door.
- Lease rate does not include utilities, property expenses or building services
- Includes 577 sq ft of dedicated office space
- 1 Level Access Door
- Office space built out
4161 Sladeview Cres - 1st Floor - 31
| Size | 1,265 sq ft |
| Term | Negotiable |
| Rate | £10.05 /sq ft pa |
| Space Use | Industrial |
| Condition | Partial Fit-Out |
| Available | Now |
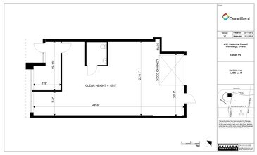
15'1" clear height. 1 loading dock door.
- Lease rate does not include utilities, property expenses or building services
- 1 Loading Dock
3165 Unity Dr - 1st Floor - 1
| Size | 6,311 sq ft |
| Term | 1-10 Years |
| Rate | £10.05 /sq ft pa |
| Space Use | Industrial |
| Condition | Full Fit-Out |
| Available | 01/01/2026 |
- Lease rate does not include utilities, property expenses or building services
- Includes 2,606 sq ft of dedicated office space
- Space is in Excellent Condition
3165 Unity Dr - 1st Floor - 2
| Size | 6,306 sq ft |
| Term | 1-10 Years |
| Rate | Upon Application |
| Space Use | Industrial |
| Condition | Full Fit-Out |
| Available | 01/01/2026 |
- Includes 2,401 sq ft of dedicated office space
- Space is in Excellent Condition
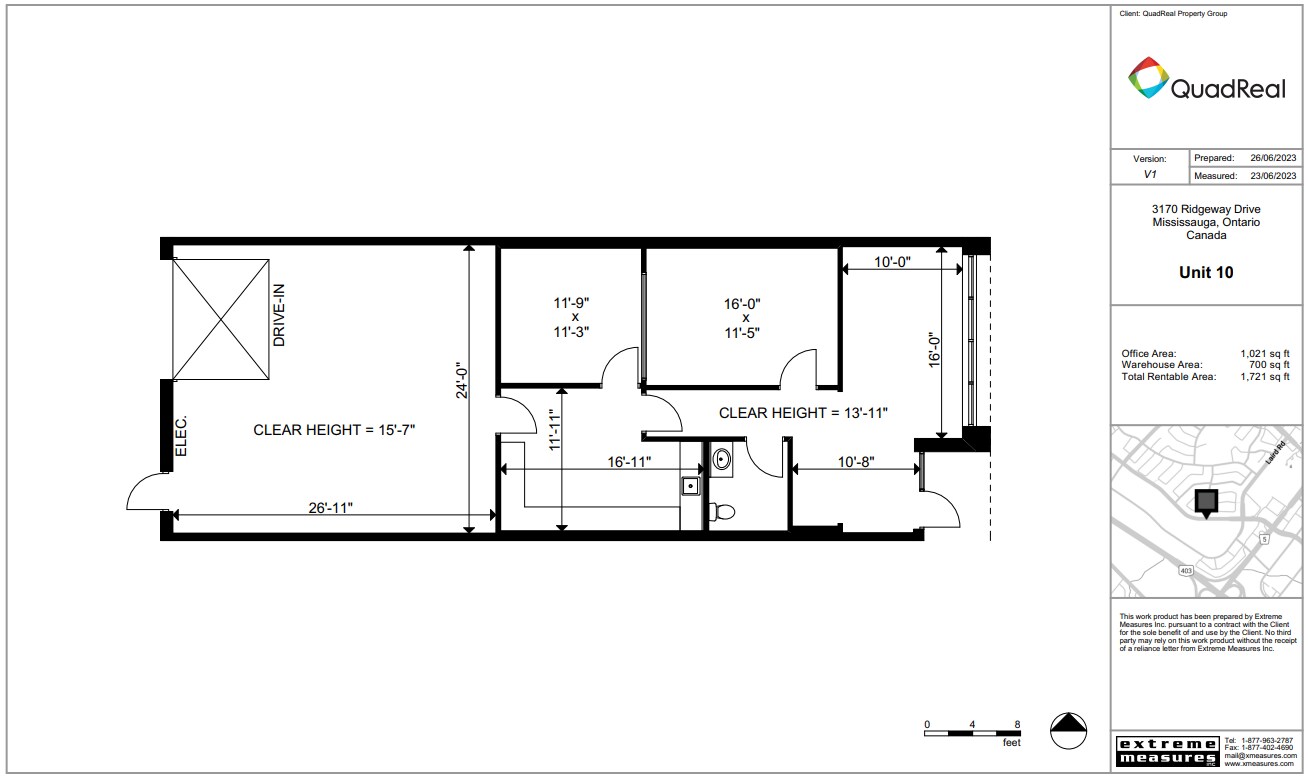
3170 Ridgeway Dr - 1st Floor - 10
| Size | 1,721 sq ft |
| Term | Negotiable |
| Rate | £10.05 /sq ft pa |
| Space Use | Light Industrial |
| Condition | - |
| Available | 30 Days |
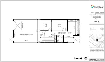
Part of Western Business Park, Suite 10 features an ideal mix of office and warehouse space with 15'7" clear heights.
- Lease rate does not include utilities, property expenses or building services
- Includes 1,021 sq ft of dedicated office space
- 1 Level Access Door
- Kitchen
- Private Restrooms
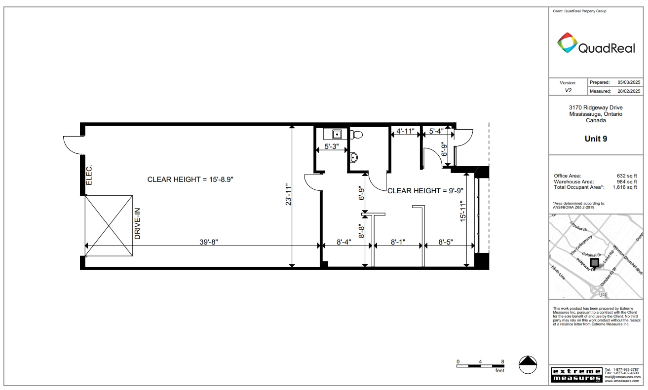
3170 Ridgeway Dr - 1st Floor - 9
| Size | 1,616 sq ft |
| Term | Negotiable |
| Rate | £10.05 /sq ft pa |
| Space Use | Light Industrial |
| Condition | - |
| Available | Now |
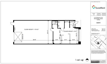
Part of Western Business Park, Suite 9 features an ideal mix of office and warehouse space with a 15'8.9" clear height. The space includes a kitchenette and a drive-in door.
- Lease rate does not include utilities, property expenses or building services
- Includes 632 sq ft of dedicated office space
- 1 Level Access Door
- Kitchen
4141 Sladeview Cres - 1st Floor - 11
| Size | 2,966 sq ft |
| Term | 1-10 Years |
| Rate | £10.05 /sq ft pa |
| Space Use | Light Industrial |
| Condition | Full Fit-Out |
| Available | Now |
Located in Western Business Park
- Lease rate does not include utilities, property expenses or building services
- Includes 1,474 sq ft of dedicated office space
- Space is in Excellent Condition
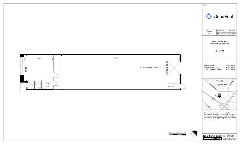
3495 Laird Rd - 1st Floor - 20
| Size | 2,763 sq ft |
| Term | Negotiable |
| Rate | £11.14 /sq ft pa |
| Space Use | Industrial |
| Condition | Partial Fit-Out |
| Available | Now |
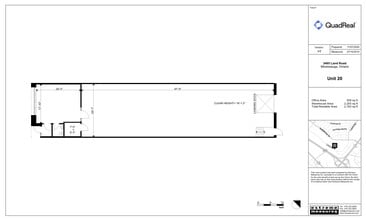
16'1" clear height and 1 loading dock door. 508 SF of office space.
- Lease rate does not include utilities, property expenses or building services
- Includes 508 sq ft of dedicated office space
- 1 Loading Dock
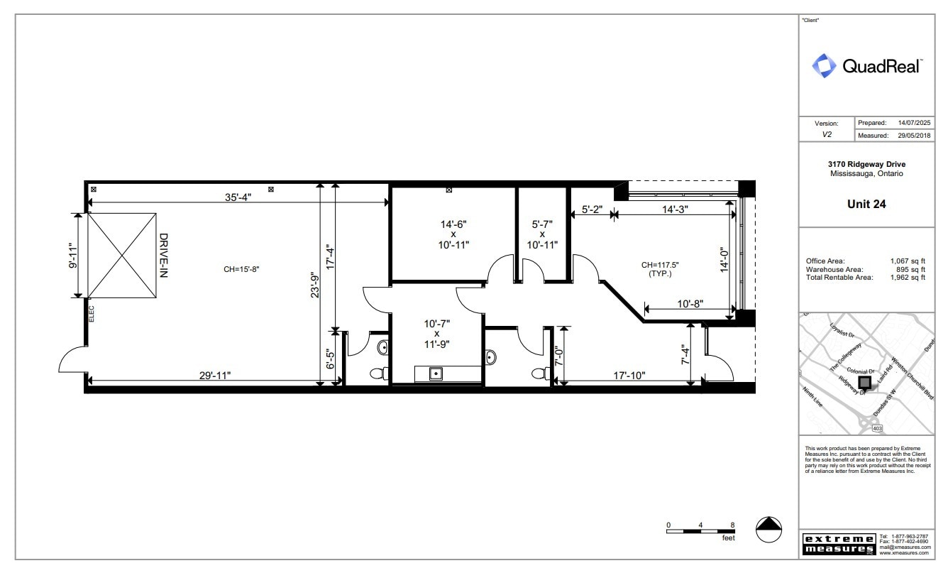
3150 Ridgeway Dr - 1st Floor - 24
| Size | 1,962 sq ft |
| Term | Negotiable |
| Rate | £10.05 /sq ft pa |
| Space Use | Light Industrial |
| Condition | Partial Fit-Out |
| Available | Now |
1,962 SF space with a 15'8" clear height and 1 drive-in door. Space has 1,067 SF of built-out office space as well as a kitchen.
- Lease rate does not include utilities, property expenses or building services
- Includes 1,067 sq ft of dedicated office space
- 1 Level Access Door
3105 Unity Dr - 1st Floor - 26
| Size | 2,755 sq ft |
| Term | 1-10 Years |
| Rate | £10.05 /sq ft pa |
| Space Use | Industrial |
| Condition | Full Fit-Out |
| Available | Now |
Part of Western Business Park, this suite features 18'1" clear heights and a drive in door.
- Lease rate does not include utilities, property expenses or building services
- Includes 407 sq ft of dedicated office space
- 1 Level Access Door
- Space is in Excellent Condition
- Office space built out
3105 Unity Dr - 1st Floor - 5
| Size | 1,368 sq ft |
| Term | Negotiable |
| Rate | £10.05 /sq ft pa |
| Space Use | Industrial |
| Condition | Partial Fit-Out |
| Available | Now |
15'2" clear height, 1 drive-in door. Private restroom. Close to Hwy 40 3, QEW, public transit and amenities.
- Lease rate does not include utilities, property expenses or building services
- 1 Level Access Door
3135 Unity Dr - 1st Floor - 3
| Size | 10,307 sq ft |
| Term | 1-10 Years |
| Rate | £10.05 /sq ft pa |
| Space Use | Industrial |
| Condition | Full Fit-Out |
| Available | Now |
Located in Western Business Park, Suite 3 features an ideal mix of office and industrial use space with 16'8" clear heights in the warehouse. The space features 200A/600V power with LED lighting.
- Lease rate does not include utilities, property expenses or building services
- Includes 2,329 sq ft of dedicated office space
- Space is in Excellent Condition
3135 Unity Dr - 1st Floor - 5
| Size | 10,317 sq ft |
| Term | Negotiable |
| Rate | £10.05 /sq ft pa |
| Space Use | Industrial |
| Condition | Full Fit-Out |
| Available | Now |
Located in Western Business Park, available for immediate occupancy!
- Lease rate does not include utilities, property expenses or building services
4181 Sladeview Cres - 1st Floor - 31
| Size | 1,265 sq ft |
| Term | 1-10 Years |
| Rate | £10.05 /sq ft pa |
| Space Use | Industrial |
| Condition | Full Fit-Out |
| Available | Now |
- Lease rate does not include utilities, property expenses or building services
- Space is in Excellent Condition
4181 Sladeview Cres - 1st Floor - 36
| Size | 1,434 sq ft |
| Term | 1-10 Years |
| Rate | £10.05 /sq ft pa |
| Space Use | Industrial |
| Condition | Full Fit-Out |
| Available | Now |
- Lease rate does not include utilities, property expenses or building services
- Includes 573 sq ft of dedicated office space
- Space is in Excellent Condition
3190 Ridgeway Dr - 1st Floor - 33
| Size | 2,047 sq ft |
| Term | 1-10 Years |
| Rate | £10.05 /sq ft pa |
| Space Use | Industrial |
| Condition | Full Fit-Out |
| Available | 01/01/2026 |
- Includes 760 sq ft of dedicated office space
- Space is in Excellent Condition
- Can be combined with additional space(s) for up to 4,093 sq ft of adjacent space
3190 Ridgeway Dr - 1st Floor - 34
| Size | 2,046 sq ft |
| Term | 1-10 Years |
| Rate | £10.05 /sq ft pa |
| Space Use | Industrial |
| Condition | Full Fit-Out |
| Available | 01/01/2026 |
- Includes 760 sq ft of dedicated office space
- Space is in Excellent Condition
- Can be combined with additional space(s) for up to 4,093 sq ft of adjacent space
3425 Laird Rd - 1st Floor - 4
| Size | 10,052 sq ft |
| Term | 1-10 Years |
| Rate | £11.14 /sq ft pa |
| Space Use | Industrial |
| Condition | - |
| Available | Now |
Flex Industrial/ Commercial unit with exposure onto Laird Road. Currently built out with mix of private offices, showroom and warehouse space. Unit features 18' clear height and 1 dock-level door with shipping court accommodating 53' trailer access.
- Lease rate does not include utilities, property expenses or building services
- Includes 2,478 sq ft of dedicated office space
- 1 Loading Dock
4120 Ridgeway Dr - 1st Floor - 40
| Size | 3,957 sq ft |
| Term | 1-10 Years |
| Rate | £10.05 /sq ft pa |
| Space Use | Industrial |
| Condition | Full Fit-Out |
| Available | 01/07/2026 |
- Lease rate does not include utilities, property expenses or building services
- Includes 407 sq ft of dedicated office space
- Space is in Excellent Condition
- 1 Loading Dock
3176 Ridgeway Dr - 1st Floor - 56-57
| Size | 3,923 sq ft |
| Term | 1-5 Years |
| Rate | £10.05 /sq ft pa |
| Space Use | Industrial |
| Condition | Full Fit-Out |
| Available | Now |
Double unit with open warehouse area and built out office, featuring 2 private offices and 2 washrooms. See floor plan. On-site parking, walking distance to restaurants, shopping and public transit on Ridgeway Drive. Conveniently located in close proximity to Hwys QEW, 403 & 407. Asking Rate is for first year only, annual escalations. All deposits by Certified Cheque or Bank Draft. Tours: Mon-Fri during business hours. Minimum 24 hour notice for all showings.
- Lease rate does not include utilities, property expenses or building services
- Includes 1,057 sq ft of dedicated office space
- 2 Level Access Doors
- Kitchen
- Private Restrooms
SELECT TENANTS AT THIS PROPERTY
- FLOOR
- TENANT NAME
- INDUSTRY
- 1st
- amazing Event Decor
- -
- 1st
- Bruce Elevator Service
- -
- 1st
- Darussalam Canada
- -
- 1st
- Entire City Interior Contractors Ltd
- -
- 1st
- HOERBIGER
- -
- 1st
- Maple Indoor Gold
- -
- 1st
- Sheref Sabawy
- -
- 1st
- Tarasick Mcmillan Kubicki Ltd
- Professional, Scientific, and Technical Services
- 1st
- W. E. I. Center
- -
- 1st
- Worldwide Security LTD
- Wholesaler
PARK OVERVIEW
Western Business Park, managed by QuadReal Property Group, is a well-established campus for office and light industrial use in Mississauga. Stretching across Ridgeway Drive, Laird Road, Sladeview Crescent, and Unity Drive, this expansive park comprises approximately 915,000 square feet of space, with unit sizes ranging from 1,200 to 24,000 square feet, accommodating a dynamic mix of businesses. Tenants benefit from versatile layouts that easily adapt to various business needs, featuring warehouse areas with drive-in and/or truck-level doors, LED lighting, modern office layouts, 15- to 22-foot ceiling heights, and ample on-site parking. The park's prime location offers walking distance to amenities, public transit, and quick access to major highways like Queen Elizabeth Way, 403, and 407, ensuring seamless connectivity throughout the Greater Toronto Area. Western Business Park provides a professional, well-maintained environment that supports business growth in one of Mississauga's most vibrant commercial hubs.
DEMOGRAPHICS
REGIONAL ACCESSIBILITY
Presented by
Western Business Park | Mississauga, ON L5L 5R2
Hmm, there seems to have been an error sending your message. Please try again.
Thanks! Your message was sent.


























