This feature is unavailable at the moment.
We apologize, but the feature you are trying to access is currently unavailable. We are aware of this issue and our team is working hard to resolve the matter.
Please check back in a few minutes. We apologize for the inconvenience.
- LoopNet Team
4-6 South Para
Bawtry DN10 6JH
Saddlers House · Property To Rent

HIGHLIGHTS
- Excellent location
- Well presented
- £425 per month
- £495 per month
- Wifi available
- Beautiful market town
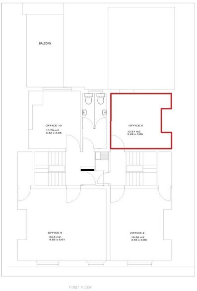
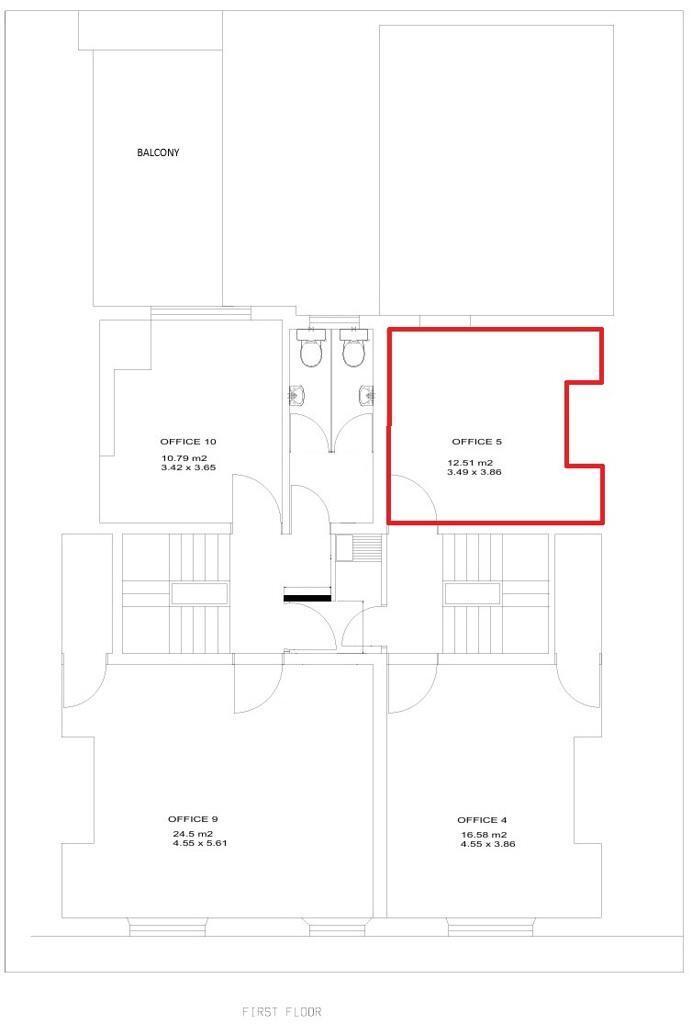
- Office 5 - 12.51 m2 (135 ft2) approx.
- Office 8 - 18.45 m2 (199 ft2) approx.
- Rent includes utilities
- Limited parking available*
PROPERTY OVERVIEW
A variety of office suites available within this attractive Grade II listed building, located in the affluent market town of Bawtry. The offices are very well presented and subject to the availability in the schedule below. There are shared kitchen and WC facilities on the ground and first floor, and rent includes utilities and limited parking on site, street and public parking available nearby. The property is in a good location in the popular and highly sought after location in Bawtry. The property is situated on the A638 which links Doncaster and Bawtry to the A1 (m) at the Blyth roundabout.
- Courtyard
- EPC - D
- Storage Space
PROPERTY FACTS
ATTACHMENTS
| Marketing Brochure/Flyer |
LINKS
Listing ID: 34773416
Date on Market: 10/02/2025
Last Updated:
Address: 4-6 South Para, Bawtry DN10 6JH
The Office Property at 4-6 South Para, Bawtry, DN10 6JH is no longer being advertised on LoopNet.co.uk. Contact the agent for information on availability.
OFFICE PROPERTIES IN NEARBY NEIGHBOURHOODS
- Bassetlaw Commercial Property
- Bircotes Commercial Property
- Tickhill Commercial Property
- Ranskill Commercial Property
- Sutton cum Lound Commercial Property
- Clarborough Commercial Property
- Misterton Nottinghamshire Commercial Property
- Lound Nottinghamshire Commercial Property
- Blyth Nottinghamshire Commercial Property
NEARBY LISTINGS
- Scrooby Road, Doncaster
- Station Rd, Bawtry
- Station Rd, Doncaster
- Bawtry Rd, Doncaster
- First Ave, Doncaster
- Bawtry Rd, Tickhill
- First Av, Doncaster
- Bawtry Rd, Doncaster
- Common Ln, Retford
- A1a-A1b Snape Ln, Doncaster
- Spital Road, Worksop
- Plumtree Rd, Doncaster
- Tickhill Rd, Doncaster
- Springs Rd, Doncaster
- 2-7 Buttercross Ct, Tickhill
