Your email has been sent.
4838 Richard Rd SW 11,250 - 36,027 sq ft of Office Space Available in Calgary, AB T3E 6L1



ALL AVAILABLE SPACES(2)
Display Rent as
- SPACE
- SIZE
- TERM
- RATE
- USE
- CONDITION
- AVAILABLE
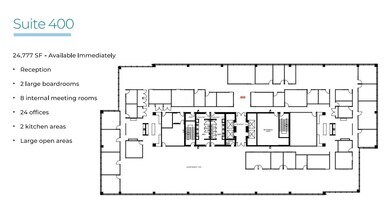
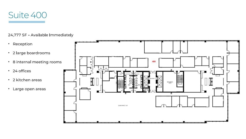
Full floor opportunity featuring reception, kitchen, 2 large boardrooms, 27 offices, copy station and large open areas. Subject to ROFR. Available now .
- Lease rate does not include utilities, property expenses or building services
- Mostly Open Floor Plan Layout
- 2 Conference Rooms
- Reception Area
- Private Restrooms
- Natural Light
- New space with modern design.
- Kitchen area.
- Fully Fit-Out as Standard Office
- 27 Private Offices
- Space is in Excellent Condition
- Kitchen
- Security System
- Emergency Lighting
- Ample natural light.
Reception with elevator exposure, boardroom, 17 offices, kitchen and open area. Subject to ROFR. Available now.
- Lease rate does not include utilities, property expenses or building services
- Mostly Open Floor Plan Layout
- Space is in Excellent Condition
- Kitchen
- Security System
- New space with modern design.
- Reception area.
- Fully Fit-Out as Standard Office
- 17 Private Offices
- Reception Area
- Private Restrooms
- Emergency Lighting
- Ample natural light.
| Space | Size | Term | Rate | Space Use | Condition | Available |
| 4th Floor, Ste 400 | 24,777 sq ft | 1-10 Years | Upon Application Upon Application Upon Application Upon Application | Office | Full Fit-Out | Now |
| 5th Floor, Ste 510 | 11,250 sq ft | 1-10 Years | Upon Application Upon Application Upon Application Upon Application | Office | Full Fit-Out | Now |
4th Floor, Ste 400
| Size |
| 24,777 sq ft |
| Term |
| 1-10 Years |
| Rate |
| Upon Application Upon Application Upon Application Upon Application |
| Space Use |
| Office |
| Condition |
| Full Fit-Out |
| Available |
| Now |
5th Floor, Ste 510
| Size |
| 11,250 sq ft |
| Term |
| 1-10 Years |
| Rate |
| Upon Application Upon Application Upon Application Upon Application |
| Space Use |
| Office |
| Condition |
| Full Fit-Out |
| Available |
| Now |
4th Floor, Ste 400
| Size | 24,777 sq ft |
| Term | 1-10 Years |
| Rate | Upon Application |
| Space Use | Office |
| Condition | Full Fit-Out |
| Available | Now |
Full floor opportunity featuring reception, kitchen, 2 large boardrooms, 27 offices, copy station and large open areas. Subject to ROFR. Available now .
- Lease rate does not include utilities, property expenses or building services
- Fully Fit-Out as Standard Office
- Mostly Open Floor Plan Layout
- 27 Private Offices
- 2 Conference Rooms
- Space is in Excellent Condition
- Reception Area
- Kitchen
- Private Restrooms
- Security System
- Natural Light
- Emergency Lighting
- New space with modern design.
- Ample natural light.
- Kitchen area.
5th Floor, Ste 510
| Size | 11,250 sq ft |
| Term | 1-10 Years |
| Rate | Upon Application |
| Space Use | Office |
| Condition | Full Fit-Out |
| Available | Now |
Reception with elevator exposure, boardroom, 17 offices, kitchen and open area. Subject to ROFR. Available now.
- Lease rate does not include utilities, property expenses or building services
- Fully Fit-Out as Standard Office
- Mostly Open Floor Plan Layout
- 17 Private Offices
- Space is in Excellent Condition
- Reception Area
- Kitchen
- Private Restrooms
- Security System
- Emergency Lighting
- New space with modern design.
- Ample natural light.
- Reception area.
PROPERTY OVERVIEW
Located at Richard Road SW and Mount Royal Gate SW. WestMount Corporate Campus is Calgary's premier office park. This 26 acre development will include over 750,000 square feet of Class-A office space. WestMount Corporate Campus provides the vibrancy, energy and diversity of a campus style setting in an enviable suburban location. Situated in close proximity to Marda Loop, Mount Royal College and Garrison Woods, with convenient access to the Downtown core, this location provides equal parts suburban tranquility and urban connection. WestMount Corporate Campus will encompass five office buildings and approximately 10,000 sq. ft. of retail amenities. This striking office park also features comprehensive landscaping with outdoor sitting areas. The ample above and below grade parking and proximity to major Calgary Transit bus routes provide efficient options for employees' daily commute. Located on 50th Avenue between Crowchild Trail and Richard Road, WestMount Corporate Campus is a high-visibility landmark, perfect for companies that want to take advantage of the best suburban corporate address Calgary has to offer.
- Bus Route
- Controlled Access
- Security System
PROPERTY FACTS
Presented by
4838 Richard Rd SW
Hmm, there seems to have been an error sending your message. Please try again.
Thanks! Your message was sent.





