Your email has been sent.
512 W 181st St 6,350 - 25,400 sq ft of Space Available in New York, NY 10033


HIGHLIGHTS
- 512 W 181st Street gives single and multiple tenants an opportunity to lease a versatile commercial building in the Washington Heights neighborhood.
- Effortlessly travel to and from the property with easy access to the 1 and A subway trains, the George Washington Bridge, Interstate 95, and beyond.
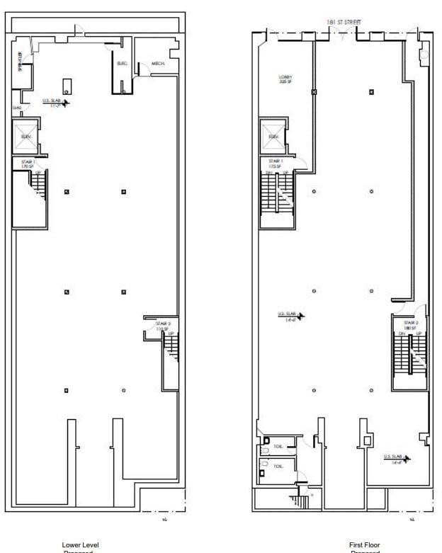
- Property features include 45 feet of frontage, signage opportunities, 14-foot, 6-inch ceilings, expansive full floors, and a pre-existing curb cut.
- Situated within walking distance of Highbridge Park near leading national tenants, such as Starbucks, Target, Capital One, Chick-fil-A, and more.
- Perfect for medical, office, retail, or community use and placed on a prominent commercial corridor with heavy pedestrian and vehicle traffic.
- Street Level space can be used for Retail, Office or Restaurant.
ALL AVAILABLE SPACES(4)
Display Rent as
- SPACE
- SIZE
- TERM
- RATE
- USE
- CONDITION
- AVAILABLE
Largely open space featuring a mezzanine leading to a lower level, with two floors of open space above street level. Conveniently located on 181st Street between Audubon Avenue and Amsterdam in Upper Manhattan. Rent ranges from $40 to $50 per square foot, depending on the amount of square footage leased.
- Listed rate may not include certain utilities, building services and property expenses
- Finished Ceilings: 11 ft 7 in - 14 ft 6 in
- Space can be leased with Ground totaling 12,700 SF
- Open Floor Plan Layout
- Can be combined with additional space(s) for up to 25,400 sq ft of adjacent space
Largely open space featuring a mezzanine leading to a lower level, with two floors of open space above street level. Conveniently located on 181st Street between Audubon Avenue and Amsterdam in Upper Manhattan. Rent ranges from $40 to $50 per square foot, depending on the amount of square footage leased.
- Listed rate may not include certain utilities, building services and property expenses
- Finished Ceilings: 11 ft 7 in - 14 ft 6 in
- Use can be retail, office or restaurant
- Can be combined with additional space(s) for up to 25,400 sq ft of adjacent space
- Space can be leased with LL totaling 12,700 SF
Conveniently located on 181st Street between Audubon Avenue and Amsterdam in Upper Manhattan. Rent ranges from $40 to $50 per square foot, depending on the amount of square footage leased.
- Listed rate may not include certain utilities, building services and property expenses
- Finished Ceilings: 11 ft 7 in - 14 ft 6 in
- Fits 16 - 51 People
- Can be combined with additional space(s) for up to 25,400 sq ft of adjacent space
Conveniently located on 181st Street between Audubon Avenue and Amsterdam in Upper Manhattan. Rent ranges from $40 to $50 per square foot, depending on the amount of square footage leased.
- Listed rate may not include certain utilities, building services and property expenses
- Finished Ceilings: 11 ft 7 in - 14 ft 6 in
- Fits 16 - 51 People
- Can be combined with additional space(s) for up to 25,400 sq ft of adjacent space
| Space | Size | Term | Rate | Space Use | Condition | Available |
| Lower Level, Ste Lower Level | 6,350 sq ft | 5-10 Years | £29.91 /sq ft pa £2.49 /sq ft pcm £189,935 pa £15,828 pcm | Office / Medical | Shell And Core | Now |
| 1st Floor, Ste Street Level | 6,350 sq ft | 5-10 Years | £56.08 /sq ft pa £4.67 /sq ft pcm £356,128 pa £29,677 pcm | Retail | - | Now |
| 2nd Floor | 6,350 sq ft | 5-10 Years | £33.65 /sq ft pa £2.80 /sq ft pcm £213,677 pa £17,806 pcm | Office / Retail | - | Now |
| 3rd Floor | 6,350 sq ft | 5-10 Years | £33.65 /sq ft pa £2.80 /sq ft pcm £213,677 pa £17,806 pcm | Office / Retail | - | Now |
Lower Level, Ste Lower Level
| Size |
| 6,350 sq ft |
| Term |
| 5-10 Years |
| Rate |
| £29.91 /sq ft pa £2.49 /sq ft pcm £189,935 pa £15,828 pcm |
| Space Use |
| Office / Medical |
| Condition |
| Shell And Core |
| Available |
| Now |
1st Floor, Ste Street Level
| Size |
| 6,350 sq ft |
| Term |
| 5-10 Years |
| Rate |
| £56.08 /sq ft pa £4.67 /sq ft pcm £356,128 pa £29,677 pcm |
| Space Use |
| Retail |
| Condition |
| - |
| Available |
| Now |
2nd Floor
| Size |
| 6,350 sq ft |
| Term |
| 5-10 Years |
| Rate |
| £33.65 /sq ft pa £2.80 /sq ft pcm £213,677 pa £17,806 pcm |
| Space Use |
| Office / Retail |
| Condition |
| - |
| Available |
| Now |
3rd Floor
| Size |
| 6,350 sq ft |
| Term |
| 5-10 Years |
| Rate |
| £33.65 /sq ft pa £2.80 /sq ft pcm £213,677 pa £17,806 pcm |
| Space Use |
| Office / Retail |
| Condition |
| - |
| Available |
| Now |
Lower Level, Ste Lower Level
| Size | 6,350 sq ft |
| Term | 5-10 Years |
| Rate | £29.91 /sq ft pa |
| Space Use | Office / Medical |
| Condition | Shell And Core |
| Available | Now |
Largely open space featuring a mezzanine leading to a lower level, with two floors of open space above street level. Conveniently located on 181st Street between Audubon Avenue and Amsterdam in Upper Manhattan. Rent ranges from $40 to $50 per square foot, depending on the amount of square footage leased.
- Listed rate may not include certain utilities, building services and property expenses
- Open Floor Plan Layout
- Finished Ceilings: 11 ft 7 in - 14 ft 6 in
- Can be combined with additional space(s) for up to 25,400 sq ft of adjacent space
- Space can be leased with Ground totaling 12,700 SF
1st Floor, Ste Street Level
| Size | 6,350 sq ft |
| Term | 5-10 Years |
| Rate | £56.08 /sq ft pa |
| Space Use | Retail |
| Condition | - |
| Available | Now |
Largely open space featuring a mezzanine leading to a lower level, with two floors of open space above street level. Conveniently located on 181st Street between Audubon Avenue and Amsterdam in Upper Manhattan. Rent ranges from $40 to $50 per square foot, depending on the amount of square footage leased.
- Listed rate may not include certain utilities, building services and property expenses
- Can be combined with additional space(s) for up to 25,400 sq ft of adjacent space
- Finished Ceilings: 11 ft 7 in - 14 ft 6 in
- Space can be leased with LL totaling 12,700 SF
- Use can be retail, office or restaurant
2nd Floor
| Size | 6,350 sq ft |
| Term | 5-10 Years |
| Rate | £33.65 /sq ft pa |
| Space Use | Office / Retail |
| Condition | - |
| Available | Now |
Conveniently located on 181st Street between Audubon Avenue and Amsterdam in Upper Manhattan. Rent ranges from $40 to $50 per square foot, depending on the amount of square footage leased.
- Listed rate may not include certain utilities, building services and property expenses
- Fits 16 - 51 People
- Finished Ceilings: 11 ft 7 in - 14 ft 6 in
- Can be combined with additional space(s) for up to 25,400 sq ft of adjacent space
3rd Floor
| Size | 6,350 sq ft |
| Term | 5-10 Years |
| Rate | £33.65 /sq ft pa |
| Space Use | Office / Retail |
| Condition | - |
| Available | Now |
Conveniently located on 181st Street between Audubon Avenue and Amsterdam in Upper Manhattan. Rent ranges from $40 to $50 per square foot, depending on the amount of square footage leased.
- Listed rate may not include certain utilities, building services and property expenses
- Fits 16 - 51 People
- Finished Ceilings: 11 ft 7 in - 14 ft 6 in
- Can be combined with additional space(s) for up to 25,400 sq ft of adjacent space
MATTERPORT 3D TOURS
PROPERTY OVERVIEW
512 West 181st Street is a three-story commercial building in the vibrant Washington Heights neighborhood of Upper Manhattan. This vacant property offers approximately 25,400 square feet of space, including a basement previously used for retail purposes by Goodwill. Positioned between Audubon and Amsterdam Avenues, the building features expansive full floors with mostly open layouts and impressive ceiling heights of up to 14 feet, 6 inches. Lease space is available for a single tenant or can be divided among multiple tenants. This property is ideal for medical, office, and retail uses, with potential for community facility expansion. Key details include 45 feet of frontage and valuable building signage opportunities in a densely populated area with high vehicle and foot traffic. National retailers such as Starbucks, Chipotle, Capital One, Target, Chase, and Chick-fil-A, among others, have established a presence along the prominent W 181st Street corridor. The property offers convenient access to the 1 and A subway lines just steps away, providing seamless connectivity to the Upper West Side, Midtown Manhattan, and numerous other destinations throughout New York City. 512 West 181st Street is just a few blocks from the Interstate 95 on-ramp and the George Washington Bridge, with efficient connectivity to the Major Deegan Expressway/Interstate 87 and the Cross Bronx Expressway.
- Air Conditioning
PROPERTY FACTS
NEARBY AMENITIES
HOSPITALS |
|||
|---|---|---|---|
| BronxCare Health System | Acute Care | 6 min drive | 2.9 mi |
| Harlem Hospital Center | Acute Care | 6 min drive | 2.9 mi |
| Lincoln Medical & Mental Health Center | Acute Care | 8 min drive | 2.9 mi |
| St. Barnabas Hospital | Acute Care | 7 min drive | 2.9 mi |
| Montefiore Medical Center | Acute Care | 10 min drive | 4.6 mi |
RESTAURANTS |
|||
|---|---|---|---|
| Grill & Heights Deli | Deli | - | 1 min walk |
| Dunkin' | Cafe | - | 3 min walk |
| Deli Grocery | Deli | - | 5 min walk |
| Chipotle | - | - | 5 min walk |
| Charlie's Pizza | Pizza | $ | 7 min walk |
RETAIL |
||
|---|---|---|
| United States Postal Service | Business/Copy/Postal Services | 1 min walk |
| Target | Dept Store | 3 min walk |
| Apple Bank | Bank | 5 min walk |
| Rite Aid | Pharmacy | 8 min walk |
| Planet Fitness | Fitness | 9 min walk |
HOTELS |
|
|---|---|
| Best Western Plus |
60 rooms
6 min drive
|
| Sleep Inn |
61 rooms
7 min drive
|
| Wingate by Wyndham |
70 rooms
8 min drive
|
| Hampton by Hilton |
190 rooms
8 min drive
|
| aloft Hotel |
125 rooms
8 min drive
|
ABOUT HARLEM
Located in northern Manhattan, Harlem’s growing multifamily scene has led the way for vibrant retail offerings and new office development. The area is home to the iconic Apollo Theater, El Museo del Barrio, and the acclaimed Red Rooster Restaurant. Offering a respite from high rents in most Manhattan neighborhoods, Harlem has become an attractive option for families and young first-time renters, which has helped transform the area’s landscape.
Columbia University, which sits adjacent to Harlem, continues to invest in the neighborhood and has boosted its visibility with several recent developments. The university is working on a new 17-acre campus in Manhattanville. Already open is the 450,000-SF Jerome L. Greene Science Center, which accommodates nearly 1,000 researchers and grad students.
This increase in the daytime population has acted as a catalyst for the retail corridor, which has welcomed Whole Foods into the neighborhood on 125th Street. Apartment developers have taken note of these strong demand drivers, with plenty of rental units currently under construction.
LETTING TEAMS
LETTING TEAMS
Jared DeLew, Vice President of Leasing & Maintenance The Gitto Group - The Lofts at Maple & Main
Salvatore DiCarlo, Owner Hamilton Kane Martin Enterprises
Presented by
The Gitto Group - The Lofts at Maple & Main
512 W 181st St
Hmm, there seems to have been an error sending your message. Please try again.
Thanks! Your message was sent.








