Your email has been sent.
PARK HIGHLIGHTS
- Fairfield County's largest and most prominent corporate park situated 35 miles northeast of New York City.
- Shuttles are provided to the South Norwalk train station, Danbury, and the bus depot for local bus service and car rental.
- Experience amenities such as on-site dining, large conference rooms, a fitness center, tenant programming, and more.
- The transportation hub offers the on-site Metro-North train station, limousine service, taxi, and an airport shuttle via concierge service.
- Multiple floor plan options are available within the corporate center, including individual suites and expansive full floors.
- The center is located within walking distance to four hotels, a child daycare, a pet resort, restaurants, and various retail services.
PARK FACTS
ALL AVAILABLE SPACES(21)
Display Rent as
- SPACE
- SIZE
- TERM
- RATE
- USE
- CONDITION
- AVAILABLE
Beautiful office space available in one of the most highly sought after business parks in Fairfield. Space features direct access off of the main lobby, ample perimeter offices, and private restrooms.
- Fully Fit-Out as Standard Office
- Can be combined with additional space(s) for up to 9,176 sq ft of adjacent space
- Private Restrooms
- Mix of in-suite and on-site amenities available
- 10 Private Offices
- Central Air Conditioning
- Natural Light
Beautiful office space available in one of the most highly sought after business parks in Fairfield. Space features direct access off of the main lobby, ample perimeter offices, and private restrooms.
- Fully Fit-Out as Standard Office
- Space is in Excellent Condition
- Central Air Conditioning
- Mostly Open Floor Plan Layout
- Can be combined with additional space(s) for up to 9,176 sq ft of adjacent space
- Mix of in-suite and on-site amenities available
This space is fully furnished and move-in ready. Beautiful office space available in one of the most highly sought after business parks in Fairfield. Space features panoramic views, 50 perimeter offices, 43 interior offices, and comes furnished.
- Fully Fit-Out as Standard Office
- Space is in Excellent Condition
- Central Air Conditioning
- Mix of in-suite and on-site amenities available
- 93 Private Offices
- Can be combined with additional space(s) for up to 84,504 sq ft of adjacent space
- Natural Light
Beautiful office space available in one of the most highly sought after business parks in Fairfield. Space features direct access off of the main lobby, ample perimeter offices, and private restrooms.
- Fully Fit-Out as Standard Office
- Space is in Excellent Condition
- Central Air Conditioning
- Mostly Open Floor Plan Layout
- Can be combined with additional space(s) for up to 84,504 sq ft of adjacent space
- Mix of in-suite and on-site amenities available
Beautiful office space available in one of the most highly sought after business parks in Fairfield. Space includes a private terrace opportunity.
- Partially Fit-Out as Standard Office
- Central Air Conditioning
- Mix of in-suite and on-site amenities available
- Mostly Open Floor Plan Layout
- Natural Light
Beautiful office space available in one of the most highly sought after business parks in Fairfield. Space includes the potential for a private terrace and a connecting staircase for 2 floors of terrace. Space also has a 360 degree window span.
- Partially Fit-Out as Standard Office
- Central Air Conditioning
- Mix of in-suite and on-site amenities available
- Open Floor Plan Layout
- Natural Light
Space includes a pre-built, high-end installation. Beautiful office space available in one of the most highly sought after business parks in Fairfield.
- Partially Fit-Out as Standard Office
- Finished Ceilings: 9 ft - 12 ft
- Central Air Conditioning
- Mix of in-suite and on-site amenities available
- Mostly Open Floor Plan Layout
- Space is in Excellent Condition
- Natural Light
| Space | Size | Term | Rate | Space Use | Condition | Available |
| Plaza | 3,638 sq ft | Negotiable | Upon Application Upon Application Upon Application Upon Application | Office | Full Fit-Out | Now |
| Plaza | 5,538 sq ft | 5-10 Years | Upon Application Upon Application Upon Application Upon Application | Office | Full Fit-Out | Now |
| 1st Floor | 42,252 sq ft | Negotiable | Upon Application Upon Application Upon Application Upon Application | Office | Full Fit-Out | Now |
| 2nd Floor | 42,252 sq ft | 5-10 Years | Upon Application Upon Application Upon Application Upon Application | Office | Full Fit-Out | Now |
| 5th Floor | 8,257 sq ft | Negotiable | Upon Application Upon Application Upon Application Upon Application | Office | Partial Fit-Out | Now |
| 6th Floor | 35,468 sq ft | Negotiable | Upon Application Upon Application Upon Application Upon Application | Office | Partial Fit-Out | Now |
| Penthouse, Ste A | 5,040 sq ft | 3-10 Years | Upon Application Upon Application Upon Application Upon Application | Office | Partial Fit-Out | 30 Days |
401 Merritt 7 - Plaza
401 Merritt 7 - Plaza
401 Merritt 7 - 1st Floor
401 Merritt 7 - 2nd Floor
401 Merritt 7 - 5th Floor
401 Merritt 7 - 6th Floor
401 Merritt 7 - Penthouse - Ste A
- SPACE
- SIZE
- TERM
- RATE
- USE
- CONDITION
- AVAILABLE
Beautiful office space available in one of the most highly sought after business parks in Fairfield. This space features a high end installation in place with polished concrete floors and exposed ceilings.
- Fully Fit-Out as Standard Office
- Space is in Excellent Condition
- Natural Light
- Mostly Open Floor Plan Layout
- Central Air Conditioning
Pre-built space.Beautiful office space available in one of the most highly sought after business parks in Fairfield.
- Fully Fit-Out as Standard Office
- Central Air Conditioning
- Mix of in-suite and on-site amenities available
- Mostly Open Floor Plan Layout
- Natural Light
Beautiful office space available in one of the most highly sought after business parks in Fairfield. This space features an entrance located directly off the elevator lobby and a new high end installation in place.
- Fully Fit-Out as Standard Office
- Space is in Excellent Condition
- Natural Light
- High-density office layout
- Central Air Conditioning
- Fully Fit-Out as Standard Office
- Space is in Excellent Condition
- Mostly Open Floor Plan Layout
- Central Air Conditioning
| Space | Size | Term | Rate | Space Use | Condition | Available |
| 1st Floor | 10,131 sq ft | Negotiable | Upon Application Upon Application Upon Application Upon Application | Office | Full Fit-Out | Now |
| 2nd Floor | 4,711 sq ft | Negotiable | Upon Application Upon Application Upon Application Upon Application | Office | Full Fit-Out | Now |
| 3rd Floor | 8,936 sq ft | Negotiable | Upon Application Upon Application Upon Application Upon Application | Office | Full Fit-Out | Now |
| 3rd Floor | 4,845 sq ft | 1-10 Years | Upon Application Upon Application Upon Application Upon Application | Office | Full Fit-Out | Now |
301 Merritt 7 - 1st Floor
301 Merritt 7 - 2nd Floor
301 Merritt 7 - 3rd Floor
301 Merritt 7 - 3rd Floor
- SPACE
- SIZE
- TERM
- RATE
- USE
- CONDITION
- AVAILABLE
Beautiful office space available in one of the most highly sought after business parks in Fairfield. Space features 26 offices, a training room for 18, a conference room, a meeting room, and open space for approximately 46 workstations.
- Fully Fit-Out as Standard Office
- 26 Private Offices
- 46 Workstations
- Central Air Conditioning
- Mostly Open Floor Plan Layout
- 1 Conference Room
- Space is in Excellent Condition
- Natural Light
Beautiful office space available in one of the most highly sought after business parks in Fairfield.
- Fully Fit-Out as Standard Office
- Space is in Excellent Condition
- Natural Light
- Mostly Open Floor Plan Layout
- Central Air Conditioning
Beautiful office space available in one of the most highly sought after business parks in Fairfield.
- Fully Fit-Out as Standard Office
- Space is in Excellent Condition
- Natural Light
- Mostly Open Floor Plan Layout
- Central Air Conditioning
- Mix of in-suite and on-site amenities available
Beautiful office space available in one of the most highly sought after business parks in Fairfield.
- Lease rate does not include utilities, property expenses or building services
- Mostly Open Floor Plan Layout
- Central Air Conditioning
- Mix of in-suite and on-site amenities available
- Fully Fit-Out as Standard Office
- Space is in Excellent Condition
- Natural Light
Beautiful office space available in one of the most highly sought after business parks in Fairfield.
- Fully Fit-Out as Standard Office
- 1 Conference Room
- Central Air Conditioning
- Mostly Open Floor Plan Layout
- Space is in Excellent Condition
| Space | Size | Term | Rate | Space Use | Condition | Available |
| 2nd Floor | 16,939 sq ft | Negotiable | Upon Application Upon Application Upon Application Upon Application | Office | Full Fit-Out | Now |
| 3rd Floor | 32,468 sq ft | Negotiable | Upon Application Upon Application Upon Application Upon Application | Office | Full Fit-Out | Now |
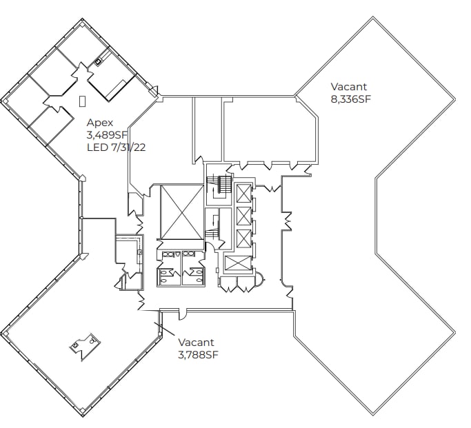
| Penthouse | 3,788 sq ft | Negotiable | Upon Application Upon Application Upon Application Upon Application | Office | Full Fit-Out | Now |
| Penthouse | 2,420 sq ft | Negotiable | Upon Application Upon Application Upon Application Upon Application | Office | Full Fit-Out | Now |
| Penthouse | 3,489 sq ft | Negotiable | Upon Application Upon Application Upon Application Upon Application | Office | Full Fit-Out | Now |
501 Merritt 7 - 2nd Floor
501 Merritt 7 - 3rd Floor
501 Merritt 7 - Penthouse
501 Merritt 7 - Penthouse
501 Merritt 7 - Penthouse
- SPACE
- SIZE
- TERM
- RATE
- USE
- CONDITION
- AVAILABLE
Beautiful office space available in one of the most highly sought after business parks in Fairfield.
- Mostly Open Floor Plan Layout
- Natural Light
- Central Air Conditioning
- Mix of in-suite and on-site amenities available
Beautiful office space available in one of the most highly sought after business parks in Fairfield. This space features a 360 degree window span, abundant natural light, and an efficient center core floorplate.
- 70 Private Offices
- Central Air Conditioning
- Mix of in-suite and on-site amenities available
- 2 Conference Rooms
- Natural Light
Nicely built office space is recently updated 601 Building. Space can be combined with adjacent 11,864 sf unit.
- Fully Fit-Out as Standard Office
- Space is in Excellent Condition
- Mostly Open Floor Plan Layout
- Central Air Conditioning
Nicely built office space is recently updated 601 Building. Space can be combined with adjacent 8,885 sf unit.
- Fully Fit-Out as Standard Office
- Space is in Excellent Condition
- Mostly Open Floor Plan Layout
- Central Air Conditioning
Beautiful office space available in one of the most highly sought after business parks in Fairfield.
- Partially Fit-Out as Standard Office
- Central Air Conditioning
- Mostly Open Floor Plan Layout
| Space | Size | Term | Rate | Space Use | Condition | Available |
| 2nd Floor | 21,397 sq ft | Negotiable | Upon Application Upon Application Upon Application Upon Application | Office | Shell And Core | Now |
| 3rd Floor | 39,659 sq ft | Negotiable | Upon Application Upon Application Upon Application Upon Application | Office | Shell And Core | Now |
| 5th Floor | 8,885 sq ft | Negotiable | Upon Application Upon Application Upon Application Upon Application | Office | Full Fit-Out | Now |
| 5th Floor | 11,864 sq ft | Negotiable | Upon Application Upon Application Upon Application Upon Application | Office | Full Fit-Out | 01/01/2026 |
| 6th Floor | 46,529 sq ft | Negotiable | Upon Application Upon Application Upon Application Upon Application | Office | Partial Fit-Out | Now |
601 Merritt 7 - 2nd Floor
601 Merritt 7 - 3rd Floor
601 Merritt 7 - 5th Floor
601 Merritt 7 - 5th Floor
601 Merritt 7 - 6th Floor
401 Merritt 7 - Plaza
| Size | 3,638 sq ft |
| Term | Negotiable |
| Rate | Upon Application |
| Space Use | Office |
| Condition | Full Fit-Out |
| Available | Now |
Beautiful office space available in one of the most highly sought after business parks in Fairfield. Space features direct access off of the main lobby, ample perimeter offices, and private restrooms.
- Fully Fit-Out as Standard Office
- 10 Private Offices
- Can be combined with additional space(s) for up to 9,176 sq ft of adjacent space
- Central Air Conditioning
- Private Restrooms
- Natural Light
- Mix of in-suite and on-site amenities available
401 Merritt 7 - Plaza
| Size | 5,538 sq ft |
| Term | 5-10 Years |
| Rate | Upon Application |
| Space Use | Office |
| Condition | Full Fit-Out |
| Available | Now |
Beautiful office space available in one of the most highly sought after business parks in Fairfield. Space features direct access off of the main lobby, ample perimeter offices, and private restrooms.
- Fully Fit-Out as Standard Office
- Mostly Open Floor Plan Layout
- Space is in Excellent Condition
- Can be combined with additional space(s) for up to 9,176 sq ft of adjacent space
- Central Air Conditioning
- Mix of in-suite and on-site amenities available
401 Merritt 7 - 1st Floor
| Size | 42,252 sq ft |
| Term | Negotiable |
| Rate | Upon Application |
| Space Use | Office |
| Condition | Full Fit-Out |
| Available | Now |
This space is fully furnished and move-in ready. Beautiful office space available in one of the most highly sought after business parks in Fairfield. Space features panoramic views, 50 perimeter offices, 43 interior offices, and comes furnished.
- Fully Fit-Out as Standard Office
- 93 Private Offices
- Space is in Excellent Condition
- Can be combined with additional space(s) for up to 84,504 sq ft of adjacent space
- Central Air Conditioning
- Natural Light
- Mix of in-suite and on-site amenities available
401 Merritt 7 - 2nd Floor
| Size | 42,252 sq ft |
| Term | 5-10 Years |
| Rate | Upon Application |
| Space Use | Office |
| Condition | Full Fit-Out |
| Available | Now |
Beautiful office space available in one of the most highly sought after business parks in Fairfield. Space features direct access off of the main lobby, ample perimeter offices, and private restrooms.
- Fully Fit-Out as Standard Office
- Mostly Open Floor Plan Layout
- Space is in Excellent Condition
- Can be combined with additional space(s) for up to 84,504 sq ft of adjacent space
- Central Air Conditioning
- Mix of in-suite and on-site amenities available
401 Merritt 7 - 5th Floor
| Size | 8,257 sq ft |
| Term | Negotiable |
| Rate | Upon Application |
| Space Use | Office |
| Condition | Partial Fit-Out |
| Available | Now |
Beautiful office space available in one of the most highly sought after business parks in Fairfield. Space includes a private terrace opportunity.
- Partially Fit-Out as Standard Office
- Mostly Open Floor Plan Layout
- Central Air Conditioning
- Natural Light
- Mix of in-suite and on-site amenities available
401 Merritt 7 - 6th Floor
| Size | 35,468 sq ft |
| Term | Negotiable |
| Rate | Upon Application |
| Space Use | Office |
| Condition | Partial Fit-Out |
| Available | Now |
Beautiful office space available in one of the most highly sought after business parks in Fairfield. Space includes the potential for a private terrace and a connecting staircase for 2 floors of terrace. Space also has a 360 degree window span.
- Partially Fit-Out as Standard Office
- Open Floor Plan Layout
- Central Air Conditioning
- Natural Light
- Mix of in-suite and on-site amenities available
401 Merritt 7 - Penthouse - Ste A
| Size | 5,040 sq ft |
| Term | 3-10 Years |
| Rate | Upon Application |
| Space Use | Office |
| Condition | Partial Fit-Out |
| Available | 30 Days |
Space includes a pre-built, high-end installation. Beautiful office space available in one of the most highly sought after business parks in Fairfield.
- Partially Fit-Out as Standard Office
- Mostly Open Floor Plan Layout
- Finished Ceilings: 9 ft - 12 ft
- Space is in Excellent Condition
- Central Air Conditioning
- Natural Light
- Mix of in-suite and on-site amenities available
301 Merritt 7 - 1st Floor
| Size | 10,131 sq ft |
| Term | Negotiable |
| Rate | Upon Application |
| Space Use | Office |
| Condition | Full Fit-Out |
| Available | Now |
Beautiful office space available in one of the most highly sought after business parks in Fairfield. This space features a high end installation in place with polished concrete floors and exposed ceilings.
- Fully Fit-Out as Standard Office
- Mostly Open Floor Plan Layout
- Space is in Excellent Condition
- Central Air Conditioning
- Natural Light
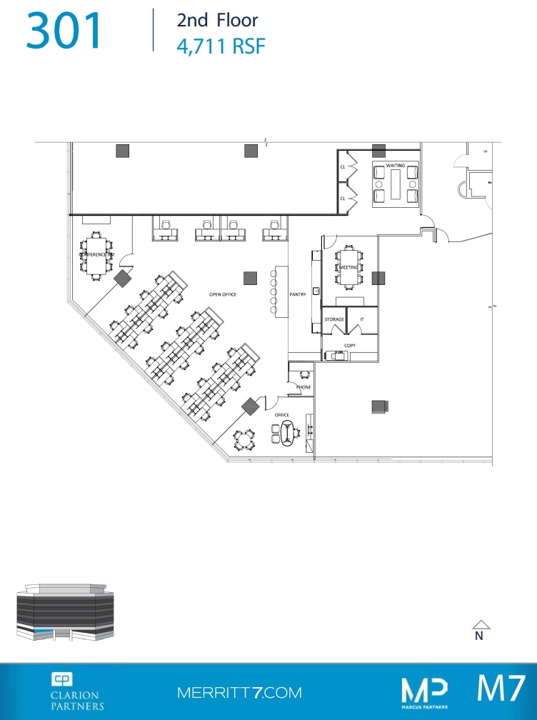
301 Merritt 7 - 2nd Floor
| Size | 4,711 sq ft |
| Term | Negotiable |
| Rate | Upon Application |
| Space Use | Office |
| Condition | Full Fit-Out |
| Available | Now |
Pre-built space.Beautiful office space available in one of the most highly sought after business parks in Fairfield.
- Fully Fit-Out as Standard Office
- Mostly Open Floor Plan Layout
- Central Air Conditioning
- Natural Light
- Mix of in-suite and on-site amenities available
301 Merritt 7 - 3rd Floor
| Size | 8,936 sq ft |
| Term | Negotiable |
| Rate | Upon Application |
| Space Use | Office |
| Condition | Full Fit-Out |
| Available | Now |
Beautiful office space available in one of the most highly sought after business parks in Fairfield. This space features an entrance located directly off the elevator lobby and a new high end installation in place.
- Fully Fit-Out as Standard Office
- High-density office layout
- Space is in Excellent Condition
- Central Air Conditioning
- Natural Light
301 Merritt 7 - 3rd Floor
| Size | 4,845 sq ft |
| Term | 1-10 Years |
| Rate | Upon Application |
| Space Use | Office |
| Condition | Full Fit-Out |
| Available | Now |
- Fully Fit-Out as Standard Office
- Mostly Open Floor Plan Layout
- Space is in Excellent Condition
- Central Air Conditioning
501 Merritt 7 - 2nd Floor
| Size | 16,939 sq ft |
| Term | Negotiable |
| Rate | Upon Application |
| Space Use | Office |
| Condition | Full Fit-Out |
| Available | Now |
Beautiful office space available in one of the most highly sought after business parks in Fairfield. Space features 26 offices, a training room for 18, a conference room, a meeting room, and open space for approximately 46 workstations.
- Fully Fit-Out as Standard Office
- Mostly Open Floor Plan Layout
- 26 Private Offices
- 1 Conference Room
- 46 Workstations
- Space is in Excellent Condition
- Central Air Conditioning
- Natural Light
501 Merritt 7 - 3rd Floor
| Size | 32,468 sq ft |
| Term | Negotiable |
| Rate | Upon Application |
| Space Use | Office |
| Condition | Full Fit-Out |
| Available | Now |
Beautiful office space available in one of the most highly sought after business parks in Fairfield.
- Fully Fit-Out as Standard Office
- Mostly Open Floor Plan Layout
- Space is in Excellent Condition
- Central Air Conditioning
- Natural Light
501 Merritt 7 - Penthouse
| Size | 3,788 sq ft |
| Term | Negotiable |
| Rate | Upon Application |
| Space Use | Office |
| Condition | Full Fit-Out |
| Available | Now |
Beautiful office space available in one of the most highly sought after business parks in Fairfield.
- Fully Fit-Out as Standard Office
- Mostly Open Floor Plan Layout
- Space is in Excellent Condition
- Central Air Conditioning
- Natural Light
- Mix of in-suite and on-site amenities available
501 Merritt 7 - Penthouse
| Size | 2,420 sq ft |
| Term | Negotiable |
| Rate | Upon Application |
| Space Use | Office |
| Condition | Full Fit-Out |
| Available | Now |
Beautiful office space available in one of the most highly sought after business parks in Fairfield.
- Lease rate does not include utilities, property expenses or building services
- Fully Fit-Out as Standard Office
- Mostly Open Floor Plan Layout
- Space is in Excellent Condition
- Central Air Conditioning
- Natural Light
- Mix of in-suite and on-site amenities available
501 Merritt 7 - Penthouse
| Size | 3,489 sq ft |
| Term | Negotiable |
| Rate | Upon Application |
| Space Use | Office |
| Condition | Full Fit-Out |
| Available | Now |
Beautiful office space available in one of the most highly sought after business parks in Fairfield.
- Fully Fit-Out as Standard Office
- Mostly Open Floor Plan Layout
- 1 Conference Room
- Space is in Excellent Condition
- Central Air Conditioning
601 Merritt 7 - 2nd Floor
| Size | 21,397 sq ft |
| Term | Negotiable |
| Rate | Upon Application |
| Space Use | Office |
| Condition | Shell And Core |
| Available | Now |
Beautiful office space available in one of the most highly sought after business parks in Fairfield.
- Mostly Open Floor Plan Layout
- Central Air Conditioning
- Natural Light
- Mix of in-suite and on-site amenities available
601 Merritt 7 - 3rd Floor
| Size | 39,659 sq ft |
| Term | Negotiable |
| Rate | Upon Application |
| Space Use | Office |
| Condition | Shell And Core |
| Available | Now |
Beautiful office space available in one of the most highly sought after business parks in Fairfield. This space features a 360 degree window span, abundant natural light, and an efficient center core floorplate.
- 70 Private Offices
- 2 Conference Rooms
- Central Air Conditioning
- Natural Light
- Mix of in-suite and on-site amenities available
601 Merritt 7 - 5th Floor
| Size | 8,885 sq ft |
| Term | Negotiable |
| Rate | Upon Application |
| Space Use | Office |
| Condition | Full Fit-Out |
| Available | Now |
Nicely built office space is recently updated 601 Building. Space can be combined with adjacent 11,864 sf unit.
- Fully Fit-Out as Standard Office
- Mostly Open Floor Plan Layout
- Space is in Excellent Condition
- Central Air Conditioning
601 Merritt 7 - 5th Floor
| Size | 11,864 sq ft |
| Term | Negotiable |
| Rate | Upon Application |
| Space Use | Office |
| Condition | Full Fit-Out |
| Available | 01/01/2026 |
Nicely built office space is recently updated 601 Building. Space can be combined with adjacent 8,885 sf unit.
- Fully Fit-Out as Standard Office
- Mostly Open Floor Plan Layout
- Space is in Excellent Condition
- Central Air Conditioning
601 Merritt 7 - 6th Floor
| Size | 46,529 sq ft |
| Term | Negotiable |
| Rate | Upon Application |
| Space Use | Office |
| Condition | Partial Fit-Out |
| Available | Now |
Beautiful office space available in one of the most highly sought after business parks in Fairfield.
- Partially Fit-Out as Standard Office
- Mostly Open Floor Plan Layout
- Central Air Conditioning
PARK OVERVIEW
Merritt 7 is a leading professional office development in Norwalk, Connecticut. Spanning nearly 1.5 million square feet across six Class A buildings, Merritt 7 is the largest and most prominent corporate park in Fairfield County. Experience 22-acres of picturesque landscaping, well-manicured plazas, and unique building façades with modern interiors. In addition to easy Tri-State area accessibility, the property boasts numerous first-class amenities and various space options to suit any size or type of tenant. An extensive portfolio of on-site amenities and services are designed to create an ideal live-work balance that offers thoughtful conveniences to enhance daily routines. Amenities include on-site cafés, year-round tenant programming, large meeting and conference rooms, a state-of-the-art fitness center, bank ATMs, and car detailing and shoe repair services. Additionally, enjoy the consistency and stability of strong institutional ownership and hands-on property management. The decades-long partnership between the two firms provides Merritt 7 tenants with attentive, proactive, and innovative workplace solutions along with the steadiness and solidity of knowledgeable, long-term management. Over 350,000-square-feet of best-in-class office space is available for occupancy. Choose from pre-built suites to full floors with the potential to create large contiguous blocks. Experience efficient and open floor plans, private perimeter offices, spectacular glass lines, and natural light-flooded interiors. Merritt 7 conveniently connects to the entire NYC Metro area and all major surrounding thoroughfares throughout Fairfield County. New Haven and Manhattan are situated less than an hour away via the South Norwalk Metro-North Station, while the on-site Merritt 7 train station offers additional service. The Norwalk Transit District bus line is also easily accessible, offering a dedicated transit service to all corporate park buildings. With hundreds of new housing units under construction, along with the arrival of The SoNo Collection, a contemporary state-of-the-art shopping destination, and other recreation and cultural attractions, Merritt 7's rising status as the premier live-work-play destination continues to grow.
- Banking
- Commuter Rail
- Food Court
Presented by
Merritt 7 Corporate Park | Norwalk, CT 06851
Hmm, there seems to have been an error sending your message. Please try again.
Thanks! Your message was sent.
































