Your email has been sent.
Hoffman Heights Shopping Center 710-750 Peoria St 2,590 - 7,390 sq ft of Space Available in Aurora, CO 80011



SUBLEASE HIGHLIGHTS
- Busy high traffice Peoria & 6th Ave. trade area
- Monument signage
- One mile from I-225
- Signalized intersection
- Ample Parking
SPACE AVAILABILITY (2)
Display Rent as
- SPACE
- SIZE
- TERM
- RATE
- TYPE
| Space | Size | Term | Rate | Type | ||
| 1st Floor, Ste 660 | 4,800 sq ft | Negotiable | £11.97 /sq ft pa £1.00 /sq ft pcm £57,449 pa £4,787 pcm | Triple Net | ||
| 1st Floor, Ste C-D | 2,590 sq ft | Negotiable | £11.97 /sq ft pa £1.00 /sq ft pcm £30,998 pa £2,583 pcm | Triple Net |
1st Floor, Ste 660
Open retail area, private office, ADA restroom and large storage area. (Western wear tenant expanded to 9,600 SF at 644 Peoria)
- Sublease space available from current tenant
- Lease rate does not include utilities, property expenses or building services
- Located in-line with other retail
- Space is in Excellent Condition
- Partitioned Offices
- Private Restrooms
- Secure Storage
- Visibility off 6th Ave.
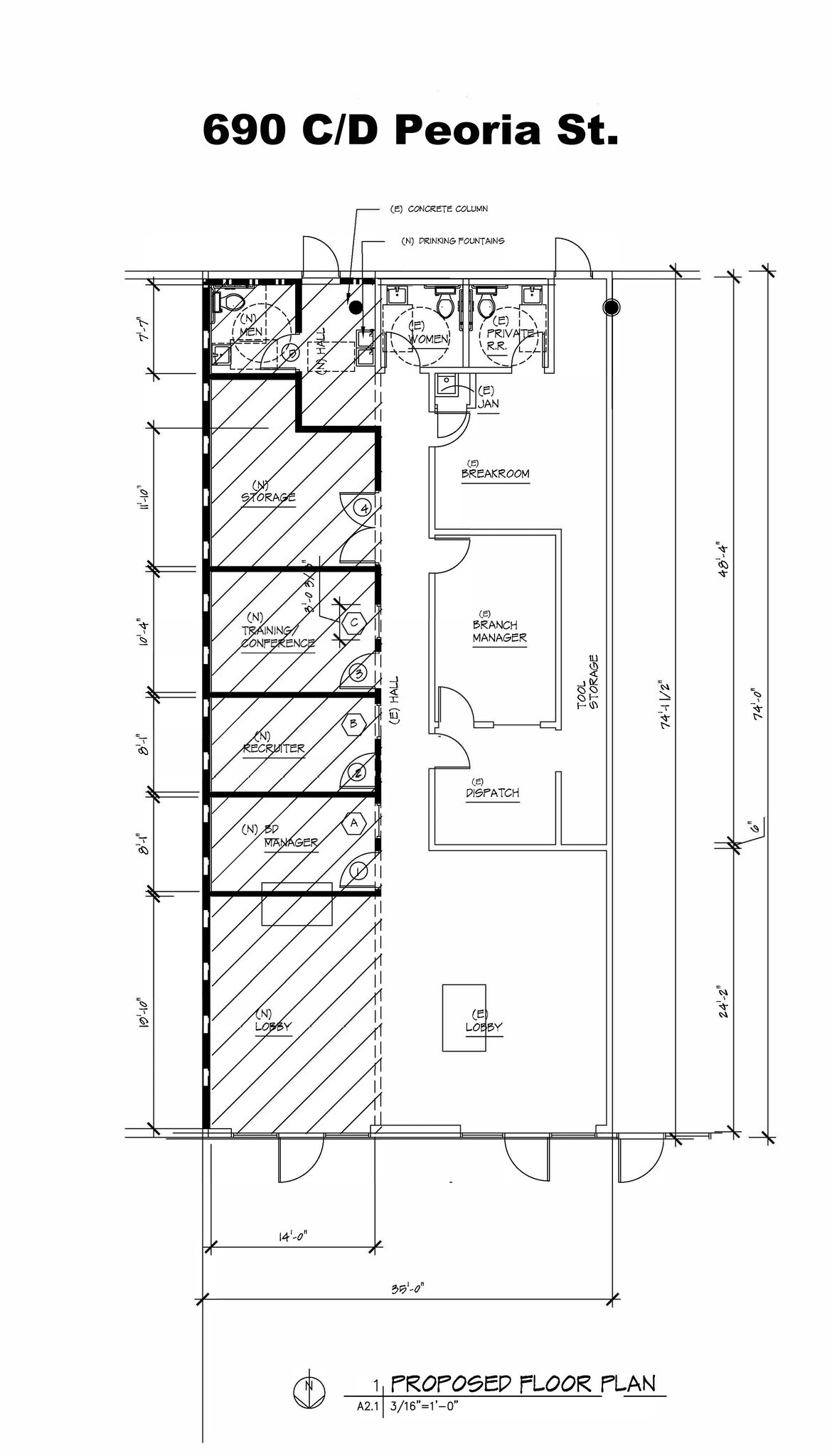
1st Floor, Ste C-D
Former staffing company - lobby, conference room, offices/training room(s) and/or storage, 3 restrooms
- Sublease space available from current tenant
- Lease rate does not include utilities, property expenses or building services
- Fully Fit-Out as Standard Office
- Partitioned Offices
- 1 Conference Room
- Private Restrooms
- 3 restrooms
Rent Types
The rent amount and type that the tenant (lessee) will be responsible to pay to the landlord (lessor) throughout the lease term is negotiated prior to both parties signing a lease agreement. The rent type will vary depending upon the services provided. For example, triple net (NNN) rents are typically lower than full service rents due to additional expenses the tenant is required to pay in addition to the base rent. Contact the listing agent for a full understanding of any associated costs or additional expenses for each rent type.
1. Full Service: A rent that includes normal building standard services as provided by the landlord within a base year rental.
2. Double Net (NN): Tenant pays for only two of the building expenses; the landlord and tenant determine the specific expenses prior to signing the lease agreement.
3. Triple Net (NNN): A lease in which the tenant is responsible for all expenses associated with their proportional share of occupancy of the building.
4. Modified Gross: Modified Gross is a general type of lease rate where typically the tenant will be responsible for their proportional share of one or more of the expenses. The landlord will pay the remaining expenses. See the below list of common Modified Gross rent structures: 4. Plus All Utilities: A type of Modified Gross Lease where the tenant is responsible for their proportional share of utilities in addition to the rent. 4. Plus Cleaning: A type of Modified Gross Lease where the tenant is responsible for their proportional share of cleaning in addition to the rent. 4. Plus Electric: A type of Modified Gross Lease where the tenant is responsible for their proportional share of the electrical cost in addition to the rent. 4. Plus Electric & Cleaning: A type of Modified Gross Lease where the tenant is responsible for their proportional share of the electrical and cleaning cost in addition to the rent. 4. Plus Utilities and Char: A type of Modified Gross Lease where the tenant is responsible for their proportional share of the utilities and cleaning cost in addition to the rent. 4. Industrial Gross: A type of Modified Gross lease where the tenant pays one or more of the expenses in addition to the rent. The landlord and tenant determine these prior to signing the lease agreement.
5. Tenant Electric: The landlord pays for all services and the tenant is responsible for their usage of lights and electrical outlets in the space they occupy.
6. Negotiable or Upon Request: Used when the leasing contact does not provide the rent or service type.
7. TBD: To be determined; used for buildings for which no rent or service type is known, commonly utilized when the buildings are not yet built.
PROPERTY FACTS
| Total Space Available | 7,390 sq ft | Total Land Area | 13.00 ac |
| Property Type | Retail | Year Built/Renovated | 1960/1995 |
| Property Subtype | Shopfront | Parking Allocation | 6.68/1,000 sq ft |
| Net Internal Area (NIA) | 71,692 sq ft |
| Total Space Available | 7,390 sq ft |
| Property Type | Retail |
| Property Subtype | Shopfront |
| Net Internal Area (NIA) | 71,692 sq ft |
| Total Land Area | 13.00 ac |
| Year Built/Renovated | 1960/1995 |
| Parking Allocation | 6.68/1,000 sq ft |
ABOUT THE PROPERTY
Anchored by USPS, Dollar Tree, Chocolatta Furniture, Family Dollar and Oak Street Health. One mile from 2 major hospitals. Busy, high traffic Peoria & 6th Ave. trade area. One mile from I-225. Signalized intersection. Great tenant mix. Seeking home decor, physical therapy, personal trainer/ small gym, body sculpting, real estate office, medical supplies. Two monument signs - one at Peoria St. and one at 6th Ave. Ample parking. Across from Del Mar Park.
NEARBY MAJOR RETAILERS
Presented by
Hoffman Heights Shopping Center | 710-750 Peoria St
Hmm, there seems to have been an error sending your message. Please try again.
Thanks! Your message was sent.




