Your email has been sent.
ALL AVAILABLE SPACES(9)
Display Rent as
- SPACE
- SIZE
- TERM
- RATE
- USE
- CONDITION
- AVAILABLE
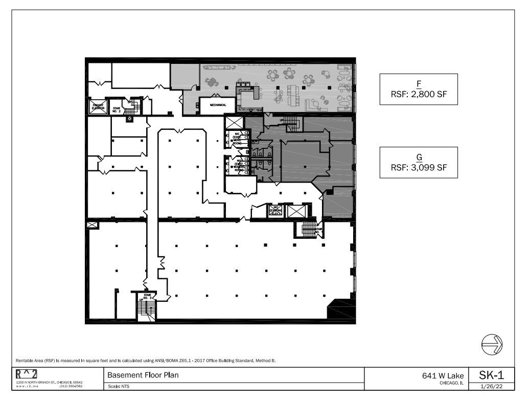
6,656 SF divisible to 2,800 SF office space.
- Listed rate may not include certain utilities, building services and property expenses
Full LL turnkey with building standard finishes. Open office plan with immediate access off of the main lobby. Great for a smaller office user or as a retail use.
- Listed rate may not include certain utilities, building services and property expenses
- Open-Plan
- Open Floor Plan Layout
Space has been demo'd and is ready for a full LL turnkey buildout. Can meet tenant's exact requirement. Space is located in the back of the building with direct access to parking lot and loading dock. Space has frontage on Des Plaines Street. Exposed Brick + Timber loft features throughout.
- Listed rate may not include certain utilities, building services and property expenses
- Mostly Open Floor Plan Layout
- 1 Conference Room
- Fully Fit-Out as Standard Office
- 4 Private Offices
- Finished Ceilings: 11 ft 6 in
Full floor opportunity with a dedicated private entrance on Lake Street. This space is currently in white boxed condition, and is ready for Turnkey Build-Out.
- Listed rate may not include certain utilities, building services and property expenses
- Finished Ceilings: 11 ft
- Reception Area
- Mostly Open Floor Plan Layout
- Space In Need of Renovation
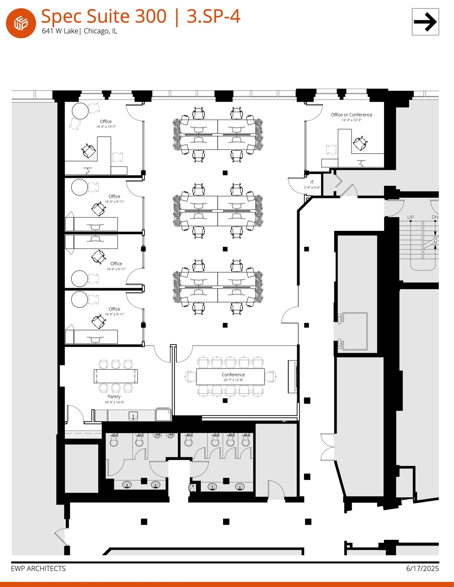
Brand new Spec Suite Delivering Q1 2026! 5 private offices, 1 conference room, kitchen, and eight workstations. Exposed brick and timber throughout. Space has great natural light and a unique view of the L Tracks.
- Listed rate may not include certain utilities, building services and property expenses
Great existing conditions space with 6 private offices, a conference room, an open kitchen, room for 14-24 workstations. Full LL turnkey build out available.
- Listed rate may not include certain utilities, building services and property expenses
- 1 Conference Room
- Space is in Excellent Condition
- 6 Private Offices
- Finished Ceilings: 11 ft
Brand new Spec Suite delivering Q1 2026! 5 private offices, 1 conference room, large kitchen area, 10 workstations, and 2 phone rooms. Space is in the northeast corner with great views and abundant natural light. Unique view of the L tracks!
- Listed rate may not include certain utilities, building services and property expenses
- Mostly Open Floor Plan Layout
- 1 Conference Room
- Space is in Excellent Condition
- Secure Storage
- Fully Fit-Out as Standard Office
- 9 Private Offices
- Finished Ceilings: 12 ft - 14 ft
- Reception Area
Good existing conditions space that is fully furnished and move in ready. Great natural light with views looking north. Brick and Timber exposure throughout the space. LL can turnkey to meet requirements.
- Listed rate may not include certain utilities, building services and property expenses
- Natural Light
Unique and rare double height and two story office space with massive window frontage on Lake Street. Abundant natural light. Full LL turnkey to upgrade the space and meet tenant's exact requirement.
- Listed rate may not include certain utilities, building services and property expenses
- Natural Light
| Space | Size | Term | Rate | Space Use | Condition | Available |
| Lower Level | 2,800-6,656 sq ft | Negotiable | £14.96 /sq ft pa £1.25 /sq ft pcm £99,578 pa £8,298 pcm | Office | - | Now |
| 1st Floor, Ste 101 | 1,515 sq ft | Negotiable | £24.68 /sq ft pa £2.06 /sq ft pcm £37,398 pa £3,116 pcm | Office | - | Now |
| 1st Floor, Ste 103 | 2,796 sq ft | Negotiable | £22.44 /sq ft pa £1.87 /sq ft pcm £62,745 pa £5,229 pcm | Office | Full Fit-Out | Now |
| 2nd Floor | 3,935-22,847 sq ft | Negotiable | £28.43 /sq ft pa £2.37 /sq ft pcm £649,429 pa £54,119 pcm | Office | Shell And Core | Now |
| 3rd Floor, Ste 300 | 3,579 sq ft | Negotiable | Upon Application Upon Application Upon Application Upon Application | Office | Spec Suite | Now |
| 3rd Floor, Ste 301 | 4,100 sq ft | Negotiable | £26.93 /sq ft pa £2.24 /sq ft pcm £110,409 pa £9,201 pcm | Office | - | Now |
| 3rd Floor, Ste 305 | 5,371 sq ft | Negotiable | £27.68 /sq ft pa £2.31 /sq ft pcm £148,654 pa £12,388 pcm | Office | Full Fit-Out | Now |
| 4th Floor, Ste 401 | 3,579 sq ft | Negotiable | £26.18 /sq ft pa £2.18 /sq ft pcm £93,702 pa £7,808 pcm | Office | - | Now |
| 4th Floor, Ste 402 | 4,600 sq ft | Negotiable | £26.18 /sq ft pa £2.18 /sq ft pcm £120,433 pa £10,036 pcm | Office | Full Fit-Out | Now |
Lower Level
| Size |
| 2,800-6,656 sq ft |
| Term |
| Negotiable |
| Rate |
| £14.96 /sq ft pa £1.25 /sq ft pcm £99,578 pa £8,298 pcm |
| Space Use |
| Office |
| Condition |
| - |
| Available |
| Now |
1st Floor, Ste 101
| Size |
| 1,515 sq ft |
| Term |
| Negotiable |
| Rate |
| £24.68 /sq ft pa £2.06 /sq ft pcm £37,398 pa £3,116 pcm |
| Space Use |
| Office |
| Condition |
| - |
| Available |
| Now |
1st Floor, Ste 103
| Size |
| 2,796 sq ft |
| Term |
| Negotiable |
| Rate |
| £22.44 /sq ft pa £1.87 /sq ft pcm £62,745 pa £5,229 pcm |
| Space Use |
| Office |
| Condition |
| Full Fit-Out |
| Available |
| Now |
2nd Floor
| Size |
| 3,935-22,847 sq ft |
| Term |
| Negotiable |
| Rate |
| £28.43 /sq ft pa £2.37 /sq ft pcm £649,429 pa £54,119 pcm |
| Space Use |
| Office |
| Condition |
| Shell And Core |
| Available |
| Now |
3rd Floor, Ste 300
| Size |
| 3,579 sq ft |
| Term |
| Negotiable |
| Rate |
| Upon Application Upon Application Upon Application Upon Application |
| Space Use |
| Office |
| Condition |
| Spec Suite |
| Available |
| Now |
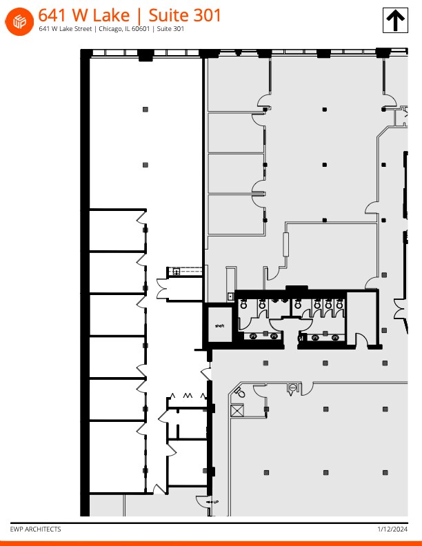
3rd Floor, Ste 301
| Size |
| 4,100 sq ft |
| Term |
| Negotiable |
| Rate |
| £26.93 /sq ft pa £2.24 /sq ft pcm £110,409 pa £9,201 pcm |
| Space Use |
| Office |
| Condition |
| - |
| Available |
| Now |
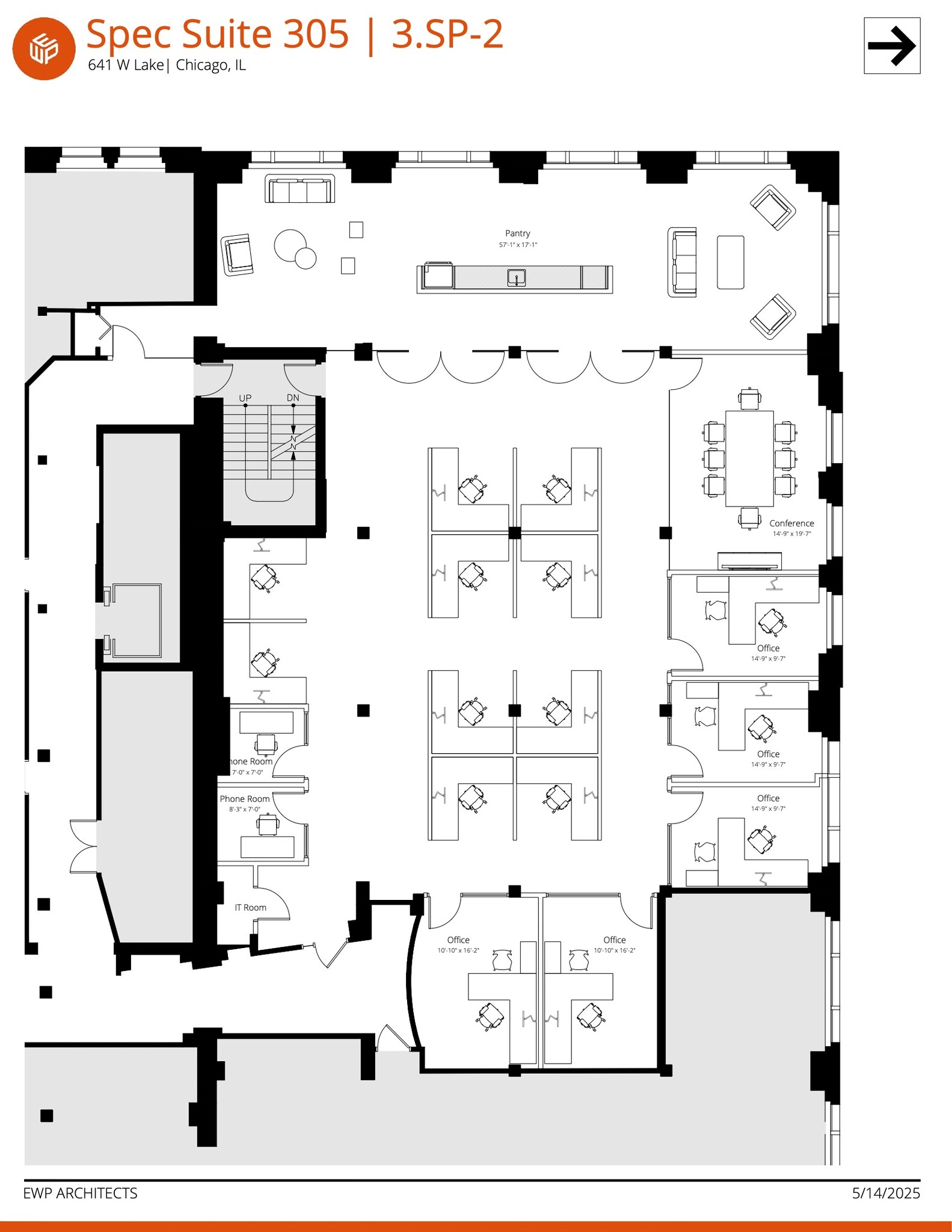
3rd Floor, Ste 305
| Size |
| 5,371 sq ft |
| Term |
| Negotiable |
| Rate |
| £27.68 /sq ft pa £2.31 /sq ft pcm £148,654 pa £12,388 pcm |
| Space Use |
| Office |
| Condition |
| Full Fit-Out |
| Available |
| Now |
4th Floor, Ste 401
| Size |
| 3,579 sq ft |
| Term |
| Negotiable |
| Rate |
| £26.18 /sq ft pa £2.18 /sq ft pcm £93,702 pa £7,808 pcm |
| Space Use |
| Office |
| Condition |
| - |
| Available |
| Now |
4th Floor, Ste 402
| Size |
| 4,600 sq ft |
| Term |
| Negotiable |
| Rate |
| £26.18 /sq ft pa £2.18 /sq ft pcm £120,433 pa £10,036 pcm |
| Space Use |
| Office |
| Condition |
| Full Fit-Out |
| Available |
| Now |
Lower Level
| Size | 2,800-6,656 sq ft |
| Term | Negotiable |
| Rate | £14.96 /sq ft pa |
| Space Use | Office |
| Condition | - |
| Available | Now |
6,656 SF divisible to 2,800 SF office space.
- Listed rate may not include certain utilities, building services and property expenses
1st Floor, Ste 101
| Size | 1,515 sq ft |
| Term | Negotiable |
| Rate | £24.68 /sq ft pa |
| Space Use | Office |
| Condition | - |
| Available | Now |
Full LL turnkey with building standard finishes. Open office plan with immediate access off of the main lobby. Great for a smaller office user or as a retail use.
- Listed rate may not include certain utilities, building services and property expenses
- Open Floor Plan Layout
- Open-Plan
1st Floor, Ste 103
| Size | 2,796 sq ft |
| Term | Negotiable |
| Rate | £22.44 /sq ft pa |
| Space Use | Office |
| Condition | Full Fit-Out |
| Available | Now |
Space has been demo'd and is ready for a full LL turnkey buildout. Can meet tenant's exact requirement. Space is located in the back of the building with direct access to parking lot and loading dock. Space has frontage on Des Plaines Street. Exposed Brick + Timber loft features throughout.
- Listed rate may not include certain utilities, building services and property expenses
- Fully Fit-Out as Standard Office
- Mostly Open Floor Plan Layout
- 4 Private Offices
- 1 Conference Room
- Finished Ceilings: 11 ft 6 in
2nd Floor
| Size | 3,935-22,847 sq ft |
| Term | Negotiable |
| Rate | £28.43 /sq ft pa |
| Space Use | Office |
| Condition | Shell And Core |
| Available | Now |
Full floor opportunity with a dedicated private entrance on Lake Street. This space is currently in white boxed condition, and is ready for Turnkey Build-Out.
- Listed rate may not include certain utilities, building services and property expenses
- Mostly Open Floor Plan Layout
- Finished Ceilings: 11 ft
- Space In Need of Renovation
- Reception Area
3rd Floor, Ste 300
| Size | 3,579 sq ft |
| Term | Negotiable |
| Rate | Upon Application |
| Space Use | Office |
| Condition | Spec Suite |
| Available | Now |
Brand new Spec Suite Delivering Q1 2026! 5 private offices, 1 conference room, kitchen, and eight workstations. Exposed brick and timber throughout. Space has great natural light and a unique view of the L Tracks.
- Listed rate may not include certain utilities, building services and property expenses
3rd Floor, Ste 301
| Size | 4,100 sq ft |
| Term | Negotiable |
| Rate | £26.93 /sq ft pa |
| Space Use | Office |
| Condition | - |
| Available | Now |
Great existing conditions space with 6 private offices, a conference room, an open kitchen, room for 14-24 workstations. Full LL turnkey build out available.
- Listed rate may not include certain utilities, building services and property expenses
- 6 Private Offices
- 1 Conference Room
- Finished Ceilings: 11 ft
- Space is in Excellent Condition
3rd Floor, Ste 305
| Size | 5,371 sq ft |
| Term | Negotiable |
| Rate | £27.68 /sq ft pa |
| Space Use | Office |
| Condition | Full Fit-Out |
| Available | Now |
Brand new Spec Suite delivering Q1 2026! 5 private offices, 1 conference room, large kitchen area, 10 workstations, and 2 phone rooms. Space is in the northeast corner with great views and abundant natural light. Unique view of the L tracks!
- Listed rate may not include certain utilities, building services and property expenses
- Fully Fit-Out as Standard Office
- Mostly Open Floor Plan Layout
- 9 Private Offices
- 1 Conference Room
- Finished Ceilings: 12 ft - 14 ft
- Space is in Excellent Condition
- Reception Area
- Secure Storage
4th Floor, Ste 401
| Size | 3,579 sq ft |
| Term | Negotiable |
| Rate | £26.18 /sq ft pa |
| Space Use | Office |
| Condition | - |
| Available | Now |
Good existing conditions space that is fully furnished and move in ready. Great natural light with views looking north. Brick and Timber exposure throughout the space. LL can turnkey to meet requirements.
- Listed rate may not include certain utilities, building services and property expenses
- Natural Light
4th Floor, Ste 402
| Size | 4,600 sq ft |
| Term | Negotiable |
| Rate | £26.18 /sq ft pa |
| Space Use | Office |
| Condition | Full Fit-Out |
| Available | Now |
Unique and rare double height and two story office space with massive window frontage on Lake Street. Abundant natural light. Full LL turnkey to upgrade the space and meet tenant's exact requirement.
- Listed rate may not include certain utilities, building services and property expenses
- Natural Light
FEATURES AND AMENITIES
- 24 Hour Access
- Bus Route
- Controlled Access
- Commuter Rail
- Conferencing Facility
- Public Transport
- Property Manager on Site
- Security System
- Signage
PROPERTY FACTS
SELECT TENANTS
- FLOOR
- TENANT NAME
- 5th
- Actuate Law
- Multiple
- Chicago Literacy Alliance
- 4th
- D & W Law Group
- 4th
- Label Insight
- 4th
- MidAmerican Energy Services LLC
- 3rd
- NuCurrent
- 2nd
- Olive Tree Arts Network
- LL
- Open Books
- 1st
- Rocketmiles
- 3rd
- ShowPlace ICON Theatre
Presented by
641-651 W Lake St
Hmm, there seems to have been an error sending your message. Please try again.
Thanks! Your message was sent.
























