Log In/Sign up
Your email has been sent.
701 Oglethorpe St NW 2,916 sq ft of Office Space Available in Washington, DC 20011



HIGHLIGHTS
- Four Surface Parking Spaces
- 3 Blocks East of Georgia Avenue, NW
- Handicap Accessible
ALL AVAILABLE SPACE(1)
Display Rent as
- SPACE
- SIZE
- TERM
- RATE
- USE
- CONDITION
- AVAILABLE
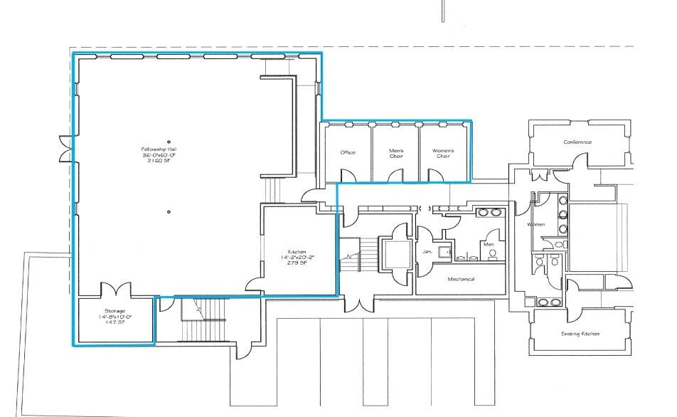
2,160 SF of Auditorium Space, 279 SF of Kitchen Space, 147 SF of Storage Space, 330 SF of Individual Office
- Rate includes utilities, building services and property expenses
- Mostly Open Floor Plan Layout
- Fully sprinklered
- Built-in video presentation
- Fully Fit-Out as Standard Office
- Fits 8 - 24 People
- Drop-down screen
- Presentation stage
| Space | Size | Term | Rate | Space Use | Condition | Available |
| 1st Floor | 2,916 sq ft | 3-10 Years | £14.77 /sq ft pa £1.23 /sq ft pcm £43,080 pa £3,590 pcm | Office | Full Fit-Out | Now |
1st Floor
| Size |
| 2,916 sq ft |
| Term |
| 3-10 Years |
| Rate |
| £14.77 /sq ft pa £1.23 /sq ft pcm £43,080 pa £3,590 pcm |
| Space Use |
| Office |
| Condition |
| Full Fit-Out |
| Available |
| Now |
1 of 1
VIDEOS
MATTERPORT 3D EXTERIOR
MATTERPORT 3D TOUR
PHOTOS
STREET VIEW
STREET
MAP
1st Floor
| Size | 2,916 sq ft |
| Term | 3-10 Years |
| Rate | £14.77 /sq ft pa |
| Space Use | Office |
| Condition | Full Fit-Out |
| Available | Now |
2,160 SF of Auditorium Space, 279 SF of Kitchen Space, 147 SF of Storage Space, 330 SF of Individual Office
- Rate includes utilities, building services and property expenses
- Fully Fit-Out as Standard Office
- Mostly Open Floor Plan Layout
- Fits 8 - 24 People
- Fully sprinklered
- Drop-down screen
- Built-in video presentation
- Presentation stage
PROPERTY FACTS
| Total Space Available | 2,916 sq ft | Property Size | 7,757 sq ft |
| Property Type | Specialist | Year Built | 1965 |
| Property Subtype | Place Of Worship |
| Total Space Available | 2,916 sq ft |
| Property Type | Specialist |
| Property Subtype | Place Of Worship |
| Property Size | 7,757 sq ft |
| Year Built | 1965 |
FEATURES AND AMENITIES
- Signage
1 1
Walk Score®
Easily Walkable (80)
1 of 9
VIDEOS
MATTERPORT 3D EXTERIOR
MATTERPORT 3D TOUR
PHOTOS
STREET VIEW
STREET
MAP
1 of 1
Presented by
701 Oglethorpe St NW
Already a member? Log In
Hmm, there seems to have been an error sending your message. Please try again.
Thanks! Your message was sent.


