Your email has been sent.
PARK HIGHLIGHTS
- Pacific Guardian Center is a designed plaza with open courtyard spaces, meticulously landscaped with an aqua feature that enhances the aesthetic.
- Tenants enjoy on-site management, planning, and leasing, 24-hour security, and engineering, maintenance, and janitorial professionals.
- Business made easy with on-site services including a sit-down cafe, convenience store, mail drop off, auto detailing, banks, dental, and optical.
- Integrated workspaces that offer tenants a variety of telecommunication provider options and services, plus shared conference and meeting rooms.
- Experience efficient elevator technology designed to seamlessly transport employees to offices in seconds via the sophisticated destination dispatch.
- Convenient access to Honolulu's Central Business District, the federal, state, and county government offices, and all of the various courts.
PARK FACTS
ALL AVAILABLE SPACES(54)
Display Rent as
- SPACE
- SIZE
- TERM
- RATE
- USE
- CONDITION
- AVAILABLE
Queen Street frontage with multiple private offices and kitchenette. High quality finishes
- Lease rate does not include certain property expenses
- Fits 7 - 22 People
- 1 Conference Room
- Space is in Excellent Condition
- Secure Storage
- Mauka Tower lobby staff entrance for easy access
- Fully Fit-Out as Professional Services Office
- 4 Private Offices
- 1 Workstation
- Kitchen
- Queen Street Frontage
Full floor availability with perimeter of offices, kitchen, reception area, conference room and open space
- Partially Fit-Out as Standard Office
- Fits 37 - 118 People
- Space is in Excellent Condition
- Reception Area
- Open Floor Plan Layout
- 1 Conference Room
- Can be combined with additional space(s) for up to 29,292 sq ft of adjacent space
- Kitchen
Full floor availability ready for space plan
- Partially Fit-Out as Standard Office
- Fits 37 - 117 People
- Open Floor Plan Layout
- Can be combined with additional space(s) for up to 29,292 sq ft of adjacent space
Multiple offices with open area and available water
- Fully Fit-Out as Standard Office
- Fits 9 - 85 People
- High-density office layout
- Can be combined with additional space(s) for up to 10,595 sq ft of adjacent space
4 offices, conference room, and open space
- Fully Fit-Out as Standard Office
- 4 Private Offices
- Can be combined with additional space(s) for up to 10,595 sq ft of adjacent space
- Fits 5 - 85 People
- 1 Conference Room
7 offices, reception area, conference room, and kitchen
- Fully Fit-Out as Standard Office
- 7 Private Offices
- Reception Area
- Fits 7 - 85 People
- Can be combined with additional space(s) for up to 10,595 sq ft of adjacent space
- Kitchen
Open layout
- Fully Fit-Out as Standard Office
- Fits 7 - 85 People
- Open-Plan
- Open Floor Plan Layout
- Can be combined with additional space(s) for up to 10,595 sq ft of adjacent space
Multiple private offices, conference room, kitchenette.
- Fits 19 - 59 People
1 private office, open space, and kitchen
- Fully Fit-Out as Standard Office
- 1 Private Office
- Fits 7 - 23 People
- Kitchen
4 windowed private office.
- Fits 4 - 10 People
1 private office, open space and water
- Fully Fit-Out as Standard Office
- Fits 8 - 25 People
- Open-Plan
- Mostly Open Floor Plan Layout
- 1 Private Office
Open layout.
- Partially Fit-Out as Standard Office
- Fits 6 - 19 People
- Open Floor Plan Layout
- Open-Plan
7 private offices
- Fully Fit-Out as Standard Office
- Fits 9 - 32 People
- 1 Conference Room
- Plug & Play
- Mostly Open Floor Plan Layout
- 7 Private Offices
- 25 Workstations
- Kitchen
Former law office with multiple private offices and conference rooms.
- Fully Fit-Out as Law Office
- Fits 14 - 43 People
- High-density office layout
Shell space
- Open Floor Plan Layout
Former law office with dense window line office build out.
- Partially Fit-Out as Standard Office
- Fits 25 - 78 People
- Reception Area
- Mostly Open Floor Plan Layout
- Conference Rooms
2 private window offices, interior conference room, and storage.
- Fully Fit-Out as Standard Office
- 2 Private Offices
- Storage
- Fits 4 - 11 People
- Conference Rooms
| Space | Size | Term | Rate | Space Use | Condition | Available |
| 1st Floor, Ste 116 | 2,725 sq ft | Negotiable | Upon Application Upon Application Upon Application Upon Application | Office | Full Fit-Out | Now |
| 11th Floor, Ste 1100 | 14,719 sq ft | Negotiable | Upon Application Upon Application Upon Application Upon Application | Office | Partial Fit-Out | Now |
| 12th Floor, Ste 1200 | 14,573 sq ft | Negotiable | Upon Application Upon Application Upon Application Upon Application | Office | Partial Fit-Out | Now |
| 14th Floor, Ste 1400 | 3,479 sq ft | Negotiable | Upon Application Upon Application Upon Application Upon Application | Office | Full Fit-Out | Now |
| 14th Floor, Ste 1420 | 1,685 sq ft | Negotiable | Upon Application Upon Application Upon Application Upon Application | Office | Full Fit-Out | Now |
| 14th Floor, Ste 1430 | 2,761 sq ft | Negotiable | Upon Application Upon Application Upon Application Upon Application | Office | Full Fit-Out | Now |
| 14th Floor, Ste 1480 | 2,670 sq ft | Negotiable | Upon Application Upon Application Upon Application Upon Application | Office | Full Fit-Out | Now |
| 15th Floor, Ste 1590 | 7,345 sq ft | Negotiable | Upon Application Upon Application Upon Application Upon Application | Office | - | 01/06/2026 |
| 16th Floor, Ste 1655 | 2,756 sq ft | Negotiable | Upon Application Upon Application Upon Application Upon Application | Office | Full Fit-Out | Now |
| 18th Floor, Ste 1860 | 1,226 sq ft | Negotiable | Upon Application Upon Application Upon Application Upon Application | Office | - | 15/01/2026 |
| 18th Floor, Ste 1880 | 3,079 sq ft | Negotiable | Upon Application Upon Application Upon Application Upon Application | Office | Full Fit-Out | Now |
| 19th Floor, Ste 1960 | 2,326 sq ft | Negotiable | Upon Application Upon Application Upon Application Upon Application | Office | Partial Fit-Out | Now |
| 21st Floor, Ste 2115 | 3,924 sq ft | Negotiable | Upon Application Upon Application Upon Application Upon Application | Office | Full Fit-Out | Now |
| 23rd Floor, Ste 2340 | 5,271 sq ft | Negotiable | Upon Application Upon Application Upon Application Upon Application | Office | Full Fit-Out | Now |
| 23rd Floor, Ste 2390 | 5,159 sq ft | Negotiable | Upon Application Upon Application Upon Application Upon Application | Office | Shell And Core | Now |
| 24th Floor, Ste 2400 | 9,714 sq ft | Negotiable | Upon Application Upon Application Upon Application Upon Application | Office | Partial Fit-Out | Now |
| 27th Floor, Ste 2790 | 1,285 sq ft | Negotiable | Upon Application Upon Application Upon Application Upon Application | Office | Full Fit-Out | Now |
737 Bishop St - 1st Floor - Ste 116
737 Bishop St - 11th Floor - Ste 1100
737 Bishop St - 12th Floor - Ste 1200
737 Bishop St - 14th Floor - Ste 1400
737 Bishop St - 14th Floor - Ste 1420
737 Bishop St - 14th Floor - Ste 1430
737 Bishop St - 14th Floor - Ste 1480
737 Bishop St - 15th Floor - Ste 1590
737 Bishop St - 16th Floor - Ste 1655
737 Bishop St - 18th Floor - Ste 1860
737 Bishop St - 18th Floor - Ste 1880
737 Bishop St - 19th Floor - Ste 1960
737 Bishop St - 21st Floor - Ste 2115
737 Bishop St - 23rd Floor - Ste 2340
737 Bishop St - 23rd Floor - Ste 2390
737 Bishop St - 24th Floor - Ste 2400
737 Bishop St - 27th Floor - Ste 2790
- SPACE
- SIZE
- TERM
- RATE
- USE
- CONDITION
- AVAILABLE
Ground floor space with courtyard frontage. 2 private office and open area.
- Fully Fit-Out as Standard Office
- 2 Private Offices
- Fits 4 - 11 People
Nimitz/Alakea frontage. 1 private office and kitchenette
- Partially Fit-Out as Standard Office
- Fits 3 - 9 People
- Kitchen
- Mostly Open Floor Plan Layout
- 1 Private Office
Courtyard entrance and includes water
- Partially Fit-Out as Standard Office
- Fits 3 - 9 People
- Finished Ceilings: 9 ft 6 in
- Reception Area
- Open Floor Plan Layout
- 1 Conference Room
- Space In Need of Renovation
3 private offices with a large conference room
- Fully Fit-Out as Standard Office
- 3 Private Offices
- Fits 4 - 10 People
- 1 Conference Room
3 private offices, 2 large conference rooms, kitchenette.
- Fully Fit-Out as Standard Office
- 3 Private Offices
- Kitchen
- Fits 7 - 23 People
- 2 Conference Rooms
3 large private offices and open area.
- Fully Fit-Out as Standard Office
- 3 Private Offices
- Fits 4 - 10 People
Open layout
- Fully Fit-Out as Standard Office
- Fits 8 - 23 People
- Open Floor Plan Layout
- Open-Plan
3 private offices
- Fully Fit-Out as Standard Office
- 3 Private Offices
- Fits 4 - 13 People
Open layout
- Fully Fit-Out as Standard Office
- Fits 3 - 7 People
- Open Floor Plan Layout
Open layout
- Fully Fit-Out as Standard Office
- Fits 10 - 46 People
- Open Floor Plan Layout
5 window line offices and 2 interior offices.
- Fully Fit-Out as Standard Office
- 7 Private Offices
- Fits 6 - 46 People
- Natural Light
3 window offices and 2 interior offices.
- Fully Fit-Out as Standard Office
- 5 Private Offices
- Fits 4 - 12 People
- Natural Light
Private offices, conference rooms, kitchenette with excellent views. Turn key opportunity with furniture included
- Fits 15 - 47 People
3 private offices and kitchenette
- Fully Fit-Out as Standard Office
- 3 Private Offices
- Fits 4 - 10 People
Upgraded suite with ocean front view, 2 private offices, new paint, carpet and LED lights, and kitchenette
- Mostly Open Floor Plan Layout
- 2 Private Offices
- Kitchen
- Fits 4 - 12 People
- Space is in Excellent Condition
Multiple private offices, conference room, and kitchenette with excellent views.
- Fits 17 - 54 People
6 private offices, conference room, and storage room.
- Fully Fit-Out as Standard Office
- 6 Private Offices
- Fits 8 - 24 People
- 1 Conference Room
5 private offices, kitchen, conference room, and open space
- Fully Fit-Out as Standard Office
- 5 Private Offices
- Kitchen
- Fits 4 - 12 People
- Conference Rooms
3 offices and open area
- Fully Fit-Out as Standard Office
- 3 Private Offices
- Fits 3 - 9 People
Open layout
- Fully Fit-Out as Standard Office
- Fits 4 - 11 People
- Open-Plan
- Open Floor Plan Layout
- Space is in Excellent Condition
1 private office and an open layout.
- Fully Fit-Out as Standard Office
- Fits 4 - 11 People
- Open-Plan
- Mostly Open Floor Plan Layout
- 1 Private Office
High floor, Corner unit, open area with new ceiling and lights
- Open Floor Plan Layout
- Corner Space
- Space In Need of Renovation
Full floor opportunity.
- Fits 38 - 120 People
| Space | Size | Term | Rate | Space Use | Condition | Available |
| 1st Floor, Ste 151 | 1,330 sq ft | Negotiable | Upon Application Upon Application Upon Application Upon Application | Office / Retail | Full Fit-Out | Now |
| 1st Floor, Ste 170 | 1,090 sq ft | Negotiable | Upon Application Upon Application Upon Application Upon Application | Office | Partial Fit-Out | Now |
| 1st Floor, Ste 181 | 1,041 sq ft | Negotiable | Upon Application Upon Application Upon Application Upon Application | Office | Partial Fit-Out | Now |
| 11th Floor, Ste 1170 | 1,244 sq ft | Negotiable | Upon Application Upon Application Upon Application Upon Application | Office | Full Fit-Out | Now |
| 12th Floor, Ste 1270 | 2,800 sq ft | Negotiable | Upon Application Upon Application Upon Application Upon Application | Office | Full Fit-Out | Now |
| 12th Floor, Ste 1290 | 1,220 sq ft | Negotiable | Upon Application Upon Application Upon Application Upon Application | Office | Full Fit-Out | Now |
| 14th Floor, Ste 1430 | 2,834 sq ft | Negotiable | Upon Application Upon Application Upon Application Upon Application | Office | Full Fit-Out | Now |
| 15th Floor, Ste 1520 | 1,549 sq ft | Negotiable | Upon Application Upon Application Upon Application Upon Application | Office | Full Fit-Out | Now |
| 15th Floor, Ste 1565 | 863 sq ft | Negotiable | Upon Application Upon Application Upon Application Upon Application | Office | Full Fit-Out | Now |
| 17th Floor, Ste 1750 | 3,695-5,706 sq ft | Negotiable | Upon Application Upon Application Upon Application Upon Application | Office | Full Fit-Out | Now |
| 17th Floor, Ste 1770 | 2,011-5,706 sq ft | Negotiable | Upon Application Upon Application Upon Application Upon Application | Office | Full Fit-Out | 15/01/2026 |
| 18th Floor, Ste 1872 | 1,432 sq ft | Negotiable | Upon Application Upon Application Upon Application Upon Application | Office | Full Fit-Out | Now |
| 20th Floor, Ste 2000 | 5,767 sq ft | Negotiable | Upon Application Upon Application Upon Application Upon Application | Office | - | 01/08/2026 |
| 21st Floor, Ste 2160 | 1,223 sq ft | Negotiable | Upon Application Upon Application Upon Application Upon Application | Office | Full Fit-Out | Now |
| 23rd Floor, Ste 2300 | 1,496 sq ft | Negotiable | Upon Application Upon Application Upon Application Upon Application | Office | Spec Suite | Now |
| 23rd Floor, Ste 2301 | 6,724 sq ft | Negotiable | Upon Application Upon Application Upon Application Upon Application | Office | - | 01/01/2026 |
| 23rd Floor, Ste 2357 | 2,882 sq ft | Negotiable | Upon Application Upon Application Upon Application Upon Application | Office | Full Fit-Out | Now |
| 23rd Floor, Ste 2390 | 1,464 sq ft | Negotiable | Upon Application Upon Application Upon Application Upon Application | Office | Full Fit-Out | Now |
| 25th Floor, Ste 2555 | 1,042 sq ft | Negotiable | Upon Application Upon Application Upon Application Upon Application | Office | Full Fit-Out | Now |
| 25th Floor, Ste 2560 | 1,342 sq ft | Negotiable | Upon Application Upon Application Upon Application Upon Application | Office | Full Fit-Out | Now |
| 29th Floor, Ste 2945 | 1,346 sq ft | Negotiable | Upon Application Upon Application Upon Application Upon Application | Office | Full Fit-Out | Now |
| 29th Floor, Ste 2950 | 3,597 sq ft | Negotiable | Upon Application Upon Application Upon Application Upon Application | Office | Shell And Core | Now |
| 30th Floor, Ste 3000 | 14,994 sq ft | Negotiable | Upon Application Upon Application Upon Application Upon Application | Office | - | 01/01/2027 |
733 Bishop St - 1st Floor - Ste 151
733 Bishop St - 1st Floor - Ste 170
733 Bishop St - 1st Floor - Ste 181
733 Bishop St - 11th Floor - Ste 1170
733 Bishop St - 12th Floor - Ste 1270
733 Bishop St - 12th Floor - Ste 1290
733 Bishop St - 14th Floor - Ste 1430
733 Bishop St - 15th Floor - Ste 1520
733 Bishop St - 15th Floor - Ste 1565
733 Bishop St - 17th Floor - Ste 1750
733 Bishop St - 17th Floor - Ste 1770
733 Bishop St - 18th Floor - Ste 1872
733 Bishop St - 20th Floor - Ste 2000
733 Bishop St - 21st Floor - Ste 2160
733 Bishop St - 23rd Floor - Ste 2300
733 Bishop St - 23rd Floor - Ste 2301
733 Bishop St - 23rd Floor - Ste 2357
733 Bishop St - 23rd Floor - Ste 2390
733 Bishop St - 25th Floor - Ste 2555
733 Bishop St - 25th Floor - Ste 2560
733 Bishop St - 29th Floor - Ste 2945
733 Bishop St - 29th Floor - Ste 2950
733 Bishop St - 30th Floor - Ste 3000
- SPACE
- SIZE
- TERM
- RATE
- USE
- CONDITION
- AVAILABLE
Open office
- Fully Fit-Out as Standard Office
- Fits 1 - 3 People
- Open Floor Plan Layout
- Open-Plan
Open layout. Available May 1, 2025
- Fully Fit-Out as Standard Office
- Fits 2 - 5 People
- Open Floor Plan Layout
3 private offices, conference room, kitchenette, and open work area
- Fully Fit-Out as Standard Office
- 3 Private Offices
- Kitchen
- Fits 8 - 26 People
- 1 Conference Room
1 private office
- Fully Fit-Out as Standard Office
- 1 Private Office
- Fits 2 - 4 People
Reception area and a private office
- Open Floor Plan Layout
- 1 Private Office
- Courtyard view
- Fits 1 - 3 People
- Reception Area
Open layout
- Fully Fit-Out as Standard Office
- Fits 2 - 4 People
- Open Floor Plan Layout
1 private office with a sink
- Fully Fit-Out as Standard Office
- 1 Private Office
- Fits 1 - 3 People
Conference room, open work areas, and kitchnette
- Fits 6 - 17 People
- 1 Conference Room
- Reception Area
- Secure Storage
- 3 Private Offices
- 1 Workstation
- Kitchen
- Natural Light
Open layout
- Fully Fit-Out as Standard Office
- Fits 5 - 14 People
- Open Floor Plan Layout
1 private office
- Fully Fit-Out as Standard Office
- 1 Private Office
- Reception Area
- Fits 2 - 5 People
- Space is in Excellent Condition
- Garden views
Large open area and 1 private office.
- Fully Fit-Out as Standard Office
- Fits 1 - 3 People
- Mostly Open Floor Plan Layout
- 1 Private Office
1 private office
- Fully Fit-Out as Standard Office
- Fits 2 - 6 People
- High-density office layout
- Fully Fit-Out as Standard Office
- Fits 2 - 6 People
Available 3/1/26
- Fits 2 - 6 People
| Space | Size | Term | Rate | Space Use | Condition | Available |
| 2nd Floor, Ste 215 | 314 sq ft | Negotiable | Upon Application Upon Application Upon Application Upon Application | Office | Full Fit-Out | Now |
| 2nd Floor, Ste 226 | 532 sq ft | Negotiable | Upon Application Upon Application Upon Application Upon Application | Office | Full Fit-Out | Now |
| 2nd Floor, Ste 230 | 3,170 sq ft | Negotiable | Upon Application Upon Application Upon Application Upon Application | Office | Full Fit-Out | Now |
| 2nd Floor, Ste 233 | 499 sq ft | Negotiable | Upon Application Upon Application Upon Application Upon Application | Office | Full Fit-Out | Now |
| 2nd Floor, Ste 237 | 303 sq ft | Negotiable | Upon Application Upon Application Upon Application Upon Application | Office | Spec Suite | Now |
| 3rd Floor, Ste 314 | 402 sq ft | Negotiable | Upon Application Upon Application Upon Application Upon Application | Office | Full Fit-Out | Now |
| 3rd Floor, Ste 315 | 317 sq ft | Negotiable | Upon Application Upon Application Upon Application Upon Application | Office | Full Fit-Out | Now |
| 3rd Floor, Ste 330 | 2,092 sq ft | Negotiable | Upon Application Upon Application Upon Application Upon Application | Office | Spec Suite | Now |
| 3rd Floor, Ste 333 | 1,669 sq ft | Negotiable | Upon Application Upon Application Upon Application Upon Application | Office | Full Fit-Out | Now |
| 3rd Floor, Ste 336 | 533 sq ft | Negotiable | Upon Application Upon Application Upon Application Upon Application | Office | Full Fit-Out | Now |
| 4th Floor, Ste 415 | 316 sq ft | Negotiable | Upon Application Upon Application Upon Application Upon Application | Office | Full Fit-Out | Now |
| 4th Floor, Ste 432 | 632 sq ft | Negotiable | Upon Application Upon Application Upon Application Upon Application | Office | Full Fit-Out | Now |
| 4th Floor, Ste 437 | 716 sq ft | Negotiable | Upon Application Upon Application Upon Application Upon Application | Office | Full Fit-Out | 01/03/2026 |
| 4th Floor, Ste 437 | 716 sq ft | Negotiable | Upon Application Upon Application Upon Application Upon Application | Office | - | 01/03/2026 |
735 Bishop St - 2nd Floor - Ste 215
735 Bishop St - 2nd Floor - Ste 226
735 Bishop St - 2nd Floor - Ste 230
735 Bishop St - 2nd Floor - Ste 233
735 Bishop St - 2nd Floor - Ste 237
735 Bishop St - 3rd Floor - Ste 314
735 Bishop St - 3rd Floor - Ste 315
735 Bishop St - 3rd Floor - Ste 330
735 Bishop St - 3rd Floor - Ste 333
735 Bishop St - 3rd Floor - Ste 336
735 Bishop St - 4th Floor - Ste 415
735 Bishop St - 4th Floor - Ste 432
735 Bishop St - 4th Floor - Ste 437
735 Bishop St - 4th Floor - Ste 437
737 Bishop St - 1st Floor - Ste 116
| Size | 2,725 sq ft |
| Term | Negotiable |
| Rate | Upon Application |
| Space Use | Office |
| Condition | Full Fit-Out |
| Available | Now |
Queen Street frontage with multiple private offices and kitchenette. High quality finishes
- Lease rate does not include certain property expenses
- Fully Fit-Out as Professional Services Office
- Fits 7 - 22 People
- 4 Private Offices
- 1 Conference Room
- 1 Workstation
- Space is in Excellent Condition
- Kitchen
- Secure Storage
- Queen Street Frontage
- Mauka Tower lobby staff entrance for easy access
737 Bishop St - 11th Floor - Ste 1100
| Size | 14,719 sq ft |
| Term | Negotiable |
| Rate | Upon Application |
| Space Use | Office |
| Condition | Partial Fit-Out |
| Available | Now |
Full floor availability with perimeter of offices, kitchen, reception area, conference room and open space
- Partially Fit-Out as Standard Office
- Open Floor Plan Layout
- Fits 37 - 118 People
- 1 Conference Room
- Space is in Excellent Condition
- Can be combined with additional space(s) for up to 29,292 sq ft of adjacent space
- Reception Area
- Kitchen
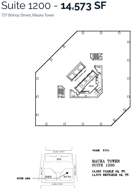
737 Bishop St - 12th Floor - Ste 1200
| Size | 14,573 sq ft |
| Term | Negotiable |
| Rate | Upon Application |
| Space Use | Office |
| Condition | Partial Fit-Out |
| Available | Now |
Full floor availability ready for space plan
- Partially Fit-Out as Standard Office
- Open Floor Plan Layout
- Fits 37 - 117 People
- Can be combined with additional space(s) for up to 29,292 sq ft of adjacent space
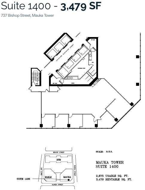
737 Bishop St - 14th Floor - Ste 1400
| Size | 3,479 sq ft |
| Term | Negotiable |
| Rate | Upon Application |
| Space Use | Office |
| Condition | Full Fit-Out |
| Available | Now |
Multiple offices with open area and available water
- Fully Fit-Out as Standard Office
- High-density office layout
- Fits 9 - 85 People
- Can be combined with additional space(s) for up to 10,595 sq ft of adjacent space
737 Bishop St - 14th Floor - Ste 1420
| Size | 1,685 sq ft |
| Term | Negotiable |
| Rate | Upon Application |
| Space Use | Office |
| Condition | Full Fit-Out |
| Available | Now |
4 offices, conference room, and open space
- Fully Fit-Out as Standard Office
- Fits 5 - 85 People
- 4 Private Offices
- 1 Conference Room
- Can be combined with additional space(s) for up to 10,595 sq ft of adjacent space
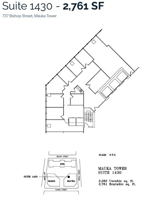
737 Bishop St - 14th Floor - Ste 1430
| Size | 2,761 sq ft |
| Term | Negotiable |
| Rate | Upon Application |
| Space Use | Office |
| Condition | Full Fit-Out |
| Available | Now |
7 offices, reception area, conference room, and kitchen
- Fully Fit-Out as Standard Office
- Fits 7 - 85 People
- 7 Private Offices
- Can be combined with additional space(s) for up to 10,595 sq ft of adjacent space
- Reception Area
- Kitchen
737 Bishop St - 14th Floor - Ste 1480
| Size | 2,670 sq ft |
| Term | Negotiable |
| Rate | Upon Application |
| Space Use | Office |
| Condition | Full Fit-Out |
| Available | Now |
Open layout
- Fully Fit-Out as Standard Office
- Open Floor Plan Layout
- Fits 7 - 85 People
- Can be combined with additional space(s) for up to 10,595 sq ft of adjacent space
- Open-Plan
737 Bishop St - 15th Floor - Ste 1590
| Size | 7,345 sq ft |
| Term | Negotiable |
| Rate | Upon Application |
| Space Use | Office |
| Condition | - |
| Available | 01/06/2026 |
Multiple private offices, conference room, kitchenette.
- Fits 19 - 59 People
737 Bishop St - 16th Floor - Ste 1655
| Size | 2,756 sq ft |
| Term | Negotiable |
| Rate | Upon Application |
| Space Use | Office |
| Condition | Full Fit-Out |
| Available | Now |
1 private office, open space, and kitchen
- Fully Fit-Out as Standard Office
- Fits 7 - 23 People
- 1 Private Office
- Kitchen
737 Bishop St - 18th Floor - Ste 1860
| Size | 1,226 sq ft |
| Term | Negotiable |
| Rate | Upon Application |
| Space Use | Office |
| Condition | - |
| Available | 15/01/2026 |
4 windowed private office.
- Fits 4 - 10 People
737 Bishop St - 18th Floor - Ste 1880
| Size | 3,079 sq ft |
| Term | Negotiable |
| Rate | Upon Application |
| Space Use | Office |
| Condition | Full Fit-Out |
| Available | Now |
1 private office, open space and water
- Fully Fit-Out as Standard Office
- Mostly Open Floor Plan Layout
- Fits 8 - 25 People
- 1 Private Office
- Open-Plan
737 Bishop St - 19th Floor - Ste 1960
| Size | 2,326 sq ft |
| Term | Negotiable |
| Rate | Upon Application |
| Space Use | Office |
| Condition | Partial Fit-Out |
| Available | Now |
Open layout.
- Partially Fit-Out as Standard Office
- Open Floor Plan Layout
- Fits 6 - 19 People
- Open-Plan
737 Bishop St - 21st Floor - Ste 2115
| Size | 3,924 sq ft |
| Term | Negotiable |
| Rate | Upon Application |
| Space Use | Office |
| Condition | Full Fit-Out |
| Available | Now |
7 private offices
- Fully Fit-Out as Standard Office
- Mostly Open Floor Plan Layout
- Fits 9 - 32 People
- 7 Private Offices
- 1 Conference Room
- 25 Workstations
- Plug & Play
- Kitchen
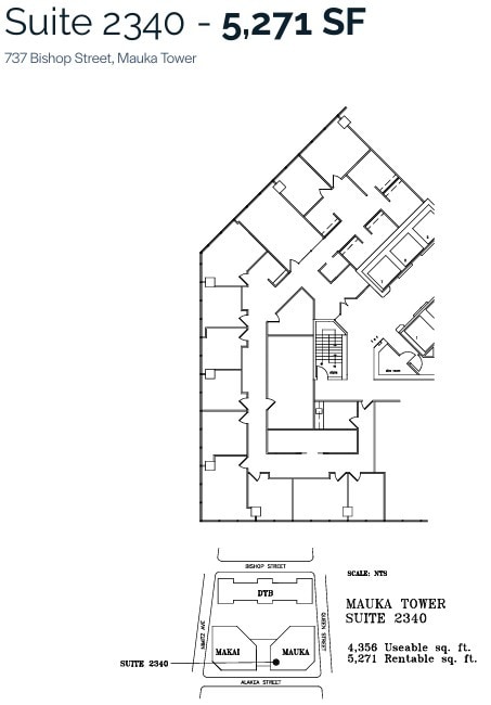
737 Bishop St - 23rd Floor - Ste 2340
| Size | 5,271 sq ft |
| Term | Negotiable |
| Rate | Upon Application |
| Space Use | Office |
| Condition | Full Fit-Out |
| Available | Now |
Former law office with multiple private offices and conference rooms.
- Fully Fit-Out as Law Office
- High-density office layout
- Fits 14 - 43 People
737 Bishop St - 23rd Floor - Ste 2390
| Size | 5,159 sq ft |
| Term | Negotiable |
| Rate | Upon Application |
| Space Use | Office |
| Condition | Shell And Core |
| Available | Now |
Shell space
- Open Floor Plan Layout
737 Bishop St - 24th Floor - Ste 2400
| Size | 9,714 sq ft |
| Term | Negotiable |
| Rate | Upon Application |
| Space Use | Office |
| Condition | Partial Fit-Out |
| Available | Now |
Former law office with dense window line office build out.
- Partially Fit-Out as Standard Office
- Mostly Open Floor Plan Layout
- Fits 25 - 78 People
- Conference Rooms
- Reception Area
737 Bishop St - 27th Floor - Ste 2790
| Size | 1,285 sq ft |
| Term | Negotiable |
| Rate | Upon Application |
| Space Use | Office |
| Condition | Full Fit-Out |
| Available | Now |
2 private window offices, interior conference room, and storage.
- Fully Fit-Out as Standard Office
- Fits 4 - 11 People
- 2 Private Offices
- Conference Rooms
- Storage
733 Bishop St - 1st Floor - Ste 151
| Size | 1,330 sq ft |
| Term | Negotiable |
| Rate | Upon Application |
| Space Use | Office / Retail |
| Condition | Full Fit-Out |
| Available | Now |
Ground floor space with courtyard frontage. 2 private office and open area.
- Fully Fit-Out as Standard Office
- Fits 4 - 11 People
- 2 Private Offices
733 Bishop St - 1st Floor - Ste 170
| Size | 1,090 sq ft |
| Term | Negotiable |
| Rate | Upon Application |
| Space Use | Office |
| Condition | Partial Fit-Out |
| Available | Now |
Nimitz/Alakea frontage. 1 private office and kitchenette
- Partially Fit-Out as Standard Office
- Mostly Open Floor Plan Layout
- Fits 3 - 9 People
- 1 Private Office
- Kitchen
733 Bishop St - 1st Floor - Ste 181
| Size | 1,041 sq ft |
| Term | Negotiable |
| Rate | Upon Application |
| Space Use | Office |
| Condition | Partial Fit-Out |
| Available | Now |
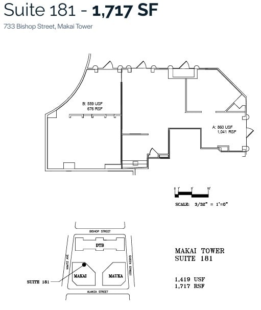
Courtyard entrance and includes water
- Partially Fit-Out as Standard Office
- Open Floor Plan Layout
- Fits 3 - 9 People
- 1 Conference Room
- Finished Ceilings: 9 ft 6 in
- Space In Need of Renovation
- Reception Area
733 Bishop St - 11th Floor - Ste 1170
| Size | 1,244 sq ft |
| Term | Negotiable |
| Rate | Upon Application |
| Space Use | Office |
| Condition | Full Fit-Out |
| Available | Now |
3 private offices with a large conference room
- Fully Fit-Out as Standard Office
- Fits 4 - 10 People
- 3 Private Offices
- 1 Conference Room
733 Bishop St - 12th Floor - Ste 1270
| Size | 2,800 sq ft |
| Term | Negotiable |
| Rate | Upon Application |
| Space Use | Office |
| Condition | Full Fit-Out |
| Available | Now |
3 private offices, 2 large conference rooms, kitchenette.
- Fully Fit-Out as Standard Office
- Fits 7 - 23 People
- 3 Private Offices
- 2 Conference Rooms
- Kitchen
733 Bishop St - 12th Floor - Ste 1290
| Size | 1,220 sq ft |
| Term | Negotiable |
| Rate | Upon Application |
| Space Use | Office |
| Condition | Full Fit-Out |
| Available | Now |
3 large private offices and open area.
- Fully Fit-Out as Standard Office
- Fits 4 - 10 People
- 3 Private Offices
733 Bishop St - 14th Floor - Ste 1430
| Size | 2,834 sq ft |
| Term | Negotiable |
| Rate | Upon Application |
| Space Use | Office |
| Condition | Full Fit-Out |
| Available | Now |
Open layout
- Fully Fit-Out as Standard Office
- Open Floor Plan Layout
- Fits 8 - 23 People
- Open-Plan
733 Bishop St - 15th Floor - Ste 1520
| Size | 1,549 sq ft |
| Term | Negotiable |
| Rate | Upon Application |
| Space Use | Office |
| Condition | Full Fit-Out |
| Available | Now |
3 private offices
- Fully Fit-Out as Standard Office
- Fits 4 - 13 People
- 3 Private Offices
733 Bishop St - 15th Floor - Ste 1565
| Size | 863 sq ft |
| Term | Negotiable |
| Rate | Upon Application |
| Space Use | Office |
| Condition | Full Fit-Out |
| Available | Now |
Open layout
- Fully Fit-Out as Standard Office
- Open Floor Plan Layout
- Fits 3 - 7 People
733 Bishop St - 17th Floor - Ste 1750
| Size | 3,695-5,706 sq ft |
| Term | Negotiable |
| Rate | Upon Application |
| Space Use | Office |
| Condition | Full Fit-Out |
| Available | Now |
Open layout
- Fully Fit-Out as Standard Office
- Open Floor Plan Layout
- Fits 10 - 46 People
733 Bishop St - 17th Floor - Ste 1770
| Size | 2,011-5,706 sq ft |
| Term | Negotiable |
| Rate | Upon Application |
| Space Use | Office |
| Condition | Full Fit-Out |
| Available | 15/01/2026 |
5 window line offices and 2 interior offices.
- Fully Fit-Out as Standard Office
- Fits 6 - 46 People
- 7 Private Offices
- Natural Light
733 Bishop St - 18th Floor - Ste 1872
| Size | 1,432 sq ft |
| Term | Negotiable |
| Rate | Upon Application |
| Space Use | Office |
| Condition | Full Fit-Out |
| Available | Now |
3 window offices and 2 interior offices.
- Fully Fit-Out as Standard Office
- Fits 4 - 12 People
- 5 Private Offices
- Natural Light
733 Bishop St - 20th Floor - Ste 2000
| Size | 5,767 sq ft |
| Term | Negotiable |
| Rate | Upon Application |
| Space Use | Office |
| Condition | - |
| Available | 01/08/2026 |
Private offices, conference rooms, kitchenette with excellent views. Turn key opportunity with furniture included
- Fits 15 - 47 People
733 Bishop St - 21st Floor - Ste 2160
| Size | 1,223 sq ft |
| Term | Negotiable |
| Rate | Upon Application |
| Space Use | Office |
| Condition | Full Fit-Out |
| Available | Now |
3 private offices and kitchenette
- Fully Fit-Out as Standard Office
- Fits 4 - 10 People
- 3 Private Offices
733 Bishop St - 23rd Floor - Ste 2300
| Size | 1,496 sq ft |
| Term | Negotiable |
| Rate | Upon Application |
| Space Use | Office |
| Condition | Spec Suite |
| Available | Now |
Upgraded suite with ocean front view, 2 private offices, new paint, carpet and LED lights, and kitchenette
- Mostly Open Floor Plan Layout
- Fits 4 - 12 People
- 2 Private Offices
- Space is in Excellent Condition
- Kitchen
733 Bishop St - 23rd Floor - Ste 2301
| Size | 6,724 sq ft |
| Term | Negotiable |
| Rate | Upon Application |
| Space Use | Office |
| Condition | - |
| Available | 01/01/2026 |
Multiple private offices, conference room, and kitchenette with excellent views.
- Fits 17 - 54 People
733 Bishop St - 23rd Floor - Ste 2357
| Size | 2,882 sq ft |
| Term | Negotiable |
| Rate | Upon Application |
| Space Use | Office |
| Condition | Full Fit-Out |
| Available | Now |
6 private offices, conference room, and storage room.
- Fully Fit-Out as Standard Office
- Fits 8 - 24 People
- 6 Private Offices
- 1 Conference Room
733 Bishop St - 23rd Floor - Ste 2390
| Size | 1,464 sq ft |
| Term | Negotiable |
| Rate | Upon Application |
| Space Use | Office |
| Condition | Full Fit-Out |
| Available | Now |
5 private offices, kitchen, conference room, and open space
- Fully Fit-Out as Standard Office
- Fits 4 - 12 People
- 5 Private Offices
- Conference Rooms
- Kitchen
733 Bishop St - 25th Floor - Ste 2555
| Size | 1,042 sq ft |
| Term | Negotiable |
| Rate | Upon Application |
| Space Use | Office |
| Condition | Full Fit-Out |
| Available | Now |
3 offices and open area
- Fully Fit-Out as Standard Office
- Fits 3 - 9 People
- 3 Private Offices
733 Bishop St - 25th Floor - Ste 2560
| Size | 1,342 sq ft |
| Term | Negotiable |
| Rate | Upon Application |
| Space Use | Office |
| Condition | Full Fit-Out |
| Available | Now |
Open layout
- Fully Fit-Out as Standard Office
- Open Floor Plan Layout
- Fits 4 - 11 People
- Space is in Excellent Condition
- Open-Plan
733 Bishop St - 29th Floor - Ste 2945
| Size | 1,346 sq ft |
| Term | Negotiable |
| Rate | Upon Application |
| Space Use | Office |
| Condition | Full Fit-Out |
| Available | Now |
1 private office and an open layout.
- Fully Fit-Out as Standard Office
- Mostly Open Floor Plan Layout
- Fits 4 - 11 People
- 1 Private Office
- Open-Plan
733 Bishop St - 29th Floor - Ste 2950
| Size | 3,597 sq ft |
| Term | Negotiable |
| Rate | Upon Application |
| Space Use | Office |
| Condition | Shell And Core |
| Available | Now |
High floor, Corner unit, open area with new ceiling and lights
- Open Floor Plan Layout
- Space In Need of Renovation
- Corner Space
733 Bishop St - 30th Floor - Ste 3000
| Size | 14,994 sq ft |
| Term | Negotiable |
| Rate | Upon Application |
| Space Use | Office |
| Condition | - |
| Available | 01/01/2027 |
Full floor opportunity.
- Fits 38 - 120 People
735 Bishop St - 2nd Floor - Ste 215
| Size | 314 sq ft |
| Term | Negotiable |
| Rate | Upon Application |
| Space Use | Office |
| Condition | Full Fit-Out |
| Available | Now |
Open office
- Fully Fit-Out as Standard Office
- Open Floor Plan Layout
- Fits 1 - 3 People
- Open-Plan
735 Bishop St - 2nd Floor - Ste 226
| Size | 532 sq ft |
| Term | Negotiable |
| Rate | Upon Application |
| Space Use | Office |
| Condition | Full Fit-Out |
| Available | Now |
Open layout. Available May 1, 2025
- Fully Fit-Out as Standard Office
- Open Floor Plan Layout
- Fits 2 - 5 People
735 Bishop St - 2nd Floor - Ste 230
| Size | 3,170 sq ft |
| Term | Negotiable |
| Rate | Upon Application |
| Space Use | Office |
| Condition | Full Fit-Out |
| Available | Now |
3 private offices, conference room, kitchenette, and open work area
- Fully Fit-Out as Standard Office
- Fits 8 - 26 People
- 3 Private Offices
- 1 Conference Room
- Kitchen
735 Bishop St - 2nd Floor - Ste 233
| Size | 499 sq ft |
| Term | Negotiable |
| Rate | Upon Application |
| Space Use | Office |
| Condition | Full Fit-Out |
| Available | Now |
1 private office
- Fully Fit-Out as Standard Office
- Fits 2 - 4 People
- 1 Private Office
735 Bishop St - 2nd Floor - Ste 237
| Size | 303 sq ft |
| Term | Negotiable |
| Rate | Upon Application |
| Space Use | Office |
| Condition | Spec Suite |
| Available | Now |
Reception area and a private office
- Open Floor Plan Layout
- Fits 1 - 3 People
- 1 Private Office
- Reception Area
- Courtyard view
735 Bishop St - 3rd Floor - Ste 314
| Size | 402 sq ft |
| Term | Negotiable |
| Rate | Upon Application |
| Space Use | Office |
| Condition | Full Fit-Out |
| Available | Now |
Open layout
- Fully Fit-Out as Standard Office
- Open Floor Plan Layout
- Fits 2 - 4 People
735 Bishop St - 3rd Floor - Ste 315
| Size | 317 sq ft |
| Term | Negotiable |
| Rate | Upon Application |
| Space Use | Office |
| Condition | Full Fit-Out |
| Available | Now |
1 private office with a sink
- Fully Fit-Out as Standard Office
- Fits 1 - 3 People
- 1 Private Office
735 Bishop St - 3rd Floor - Ste 330
| Size | 2,092 sq ft |
| Term | Negotiable |
| Rate | Upon Application |
| Space Use | Office |
| Condition | Spec Suite |
| Available | Now |
Conference room, open work areas, and kitchnette
- Fits 6 - 17 People
- 3 Private Offices
- 1 Conference Room
- 1 Workstation
- Reception Area
- Kitchen
- Secure Storage
- Natural Light
735 Bishop St - 3rd Floor - Ste 333
| Size | 1,669 sq ft |
| Term | Negotiable |
| Rate | Upon Application |
| Space Use | Office |
| Condition | Full Fit-Out |
| Available | Now |
Open layout
- Fully Fit-Out as Standard Office
- Open Floor Plan Layout
- Fits 5 - 14 People
735 Bishop St - 3rd Floor - Ste 336
| Size | 533 sq ft |
| Term | Negotiable |
| Rate | Upon Application |
| Space Use | Office |
| Condition | Full Fit-Out |
| Available | Now |
1 private office
- Fully Fit-Out as Standard Office
- Fits 2 - 5 People
- 1 Private Office
- Space is in Excellent Condition
- Reception Area
- Garden views
735 Bishop St - 4th Floor - Ste 415
| Size | 316 sq ft |
| Term | Negotiable |
| Rate | Upon Application |
| Space Use | Office |
| Condition | Full Fit-Out |
| Available | Now |
Large open area and 1 private office.
- Fully Fit-Out as Standard Office
- Mostly Open Floor Plan Layout
- Fits 1 - 3 People
- 1 Private Office
735 Bishop St - 4th Floor - Ste 432
| Size | 632 sq ft |
| Term | Negotiable |
| Rate | Upon Application |
| Space Use | Office |
| Condition | Full Fit-Out |
| Available | Now |
1 private office
- Fully Fit-Out as Standard Office
- High-density office layout
- Fits 2 - 6 People
735 Bishop St - 4th Floor - Ste 437
| Size | 716 sq ft |
| Term | Negotiable |
| Rate | Upon Application |
| Space Use | Office |
| Condition | Full Fit-Out |
| Available | 01/03/2026 |
- Fully Fit-Out as Standard Office
- Fits 2 - 6 People
735 Bishop St - 4th Floor - Ste 437
| Size | 716 sq ft |
| Term | Negotiable |
| Rate | Upon Application |
| Space Use | Office |
| Condition | - |
| Available | 01/03/2026 |
Available 3/1/26
- Fits 2 - 6 People
MATTERPORT 3D TOURS
SELECT TENANTS AT THIS PROPERTY
- FLOOR
- TENANT NAME
- INDUSTRY
- 31st
- Architects Hawaii Ltd
- Professional, Scientific, and Technical Services
- 26th
- Case Lombardi & Pettit A Law Corporation
- Service type
- Multiple
- Morgan Stanley
- Finance and Insurance
- 19th
- Spirent Communications
- Information
- 19th
- Starn O’Toole Marcus & Fisher Law
- Service type
- 16th
- UBS Financial Services
- Finance and Insurance
PARK OVERVIEW
Pacific Guardian Center, an award-winning 682,000-square-foot office complex of three buildings, provides Honolulu firms with a distinctive business address. The Makai Tower and Mauka Tower are twin, 30-story high-rise mirrored glass office towers emphasizing prominence as a strategic location in Downtown Honolulu's Financial District. At the same time, the neighboring historic Dillingham Transportation Building reflects its endurance and stability. Pacific Guardian Center offers a high-quality professional environment, with a beautifully landscaped plaza and open courtyard spaces, a 786-stall parking garage, advanced HVAC, building automation systems, life safety systems, and extensive on-site staff to keep things running smoothly. Additionally, the building is Energy Star and LEED Gold certified for energy efficiency. Pacific Guardian Center is conveniently located in the Central Business District with easy access to federal, state, and county government offices and the courts, making it the ideal place to conduct business in Honolulu.
- Banking
- Bus Route
- Conferencing Facility
- Corner Lot
- Courtyard
- Property Manager on Site
- Restaurant
- Storage Space
- Car Charging Station
- Air Conditioning
Presented by
Pacific Guardian Center | Honolulu, HI 96813
Hmm, there seems to have been an error sending your message. Please try again.
Thanks! Your message was sent.





















































































