Log In/Sign up
Your email has been sent.
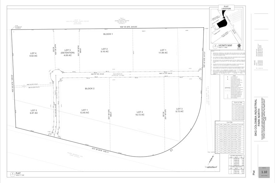
Hwy 255 & FM 1472 - SKG Colombia Industrial Park 85.07 - 104.5 Acre Industrial Land Lots in Laredo, TX 78045



INVESTMENT HIGHLIGHTS
- Available for Lease or Purchase.
- All utilities will be to site once developed: will be equipped with City of Laredo water and sewer.
- Hard-corner lots, with immediate access to both HWY 255 and FM 1472.
EXECUTIVE SUMMARY
SKG Colombia Industrial Park is a unique opportunity for businesses to be on the forefront of long-term growth at an undeveloped transportation hub. This development is strategically located less than one mile from the Colombia Solidarity Bridge, offering unmatched access to one of the busiest international trade gateways between the U.S. and Mexico. Users of this property will be at the forefront of economic growth, benefiting from increasing cross-border commerce, major infrastructure investments backed by US and Mexican government, and a surge off-shoring logistics and transportation demand. Proposed uses: Truck Stop, Warehouse, Industrial, Cold-Storage.
PROPERTY FACTS
| Sale Type | Investment | Property Subtype | Industrial |
| Sale Conditions | Proposed Use | ||
| No. Plots | 2 | Total Plot Size | 189.57 ac |
| Property Type | Land | ||
| Use Class | M1 - Light Industrial | ||
| Sale Type | Investment |
| Sale Conditions | |
| No. Plots | 2 |
| Property Type | Land |
| Property Subtype | Industrial |
| Proposed Use | |
| Total Plot Size | 189.57 ac |
| Use Class | M1 - Light Industrial |
2 PLOTS AVAILABLE
Plot Columbia N
| Total Plot Size | 85.07 ac |
| Total Plot Size | 85.07 ac |
Colombia North
Plot Columbia S
| Total Plot Size | 104.50 ac |
| Total Plot Size | 104.50 ac |
Colombia South
1 1
1 of 6
VIDEOS
MATTERPORT 3D EXTERIOR
MATTERPORT 3D TOUR
PHOTOS
STREET VIEW
STREET
MAP
1 of 1
Presented by
Hwy 255 & FM 1472 - SKG Colombia Industrial Park
Already a member? Log In
Hmm, there seems to have been an error sending your message. Please try again.
Thanks! Your message was sent.
