Your email has been sent.
Wayne Plaza 35101-36175 E Michigan Ave 2,500 sq ft of Office / Medical Space Available in Wayne, MI 48184


HIGHLIGHTS
- Busy center
- High visibility
- Great mix of national and local tenants
SPACE AVAILABILITY (1)
Display Rent as
- SPACE
- SIZE
- TERM
- RATE
- TYPE
| Space | Size | Term | Rate | Type | ||
| 1st Floor, Ste 35119 | 2,500 sq ft | 3-10 Years | £11.22 /sq ft pa £0.93 /sq ft pcm £28,042 pa £2,337 pcm | Triple Net |
35115-35149 E Michigan Ave - 1st Floor - Ste 35119
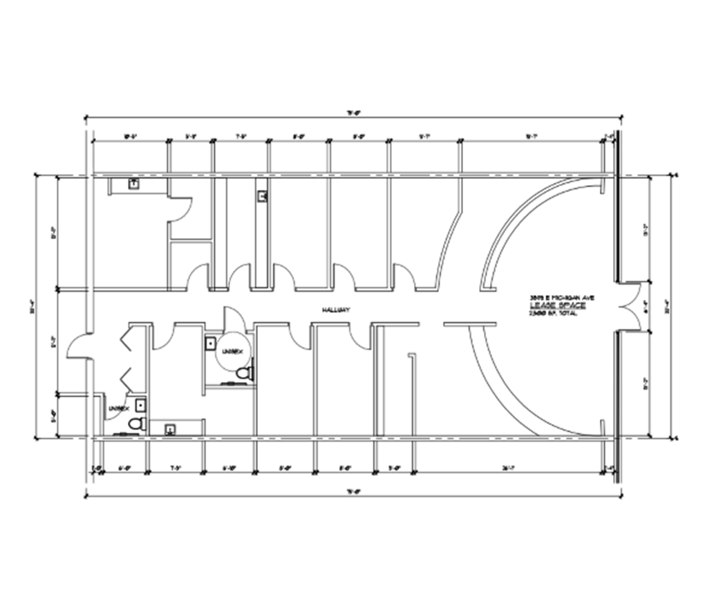
Great medical space available. Exam rooms with sinks, reception area, kitchenette, multiple restrooms, and storage. Landlord willing to white box space for open space. Ideal for physical therapy, retail, many possible uses.
- Lease rate does not include utilities, property expenses or building services
- Fully Fit-Out as Standard Medical Space
- High-density office layout
- Partitioned Offices
- Space is in Excellent Condition
- Reception Area
- Central Air and Heating
- Private Restrooms
- After Hours HVAC Available
- Great medical/office layout
- Exam rooms with sinks
- Reception area
Rent Types
The rent amount and type that the tenant (lessee) will be responsible to pay to the landlord (lessor) throughout the lease term is negotiated prior to both parties signing a lease agreement. The rent type will vary depending upon the services provided. For example, triple net (NNN) rents are typically lower than full service rents due to additional expenses the tenant is required to pay in addition to the base rent. Contact the listing agent for a full understanding of any associated costs or additional expenses for each rent type.
1. Full Service: A rent that includes normal building standard services as provided by the landlord within a base year rental.
2. Double Net (NN): Tenant pays for only two of the building expenses; the landlord and tenant determine the specific expenses prior to signing the lease agreement.
3. Triple Net (NNN): A lease in which the tenant is responsible for all expenses associated with their proportional share of occupancy of the building.
4. Modified Gross: Modified Gross is a general type of lease rate where typically the tenant will be responsible for their proportional share of one or more of the expenses. The landlord will pay the remaining expenses. See the below list of common Modified Gross rent structures: 4. Plus All Utilities: A type of Modified Gross Lease where the tenant is responsible for their proportional share of utilities in addition to the rent. 4. Plus Cleaning: A type of Modified Gross Lease where the tenant is responsible for their proportional share of cleaning in addition to the rent. 4. Plus Electric: A type of Modified Gross Lease where the tenant is responsible for their proportional share of the electrical cost in addition to the rent. 4. Plus Electric & Cleaning: A type of Modified Gross Lease where the tenant is responsible for their proportional share of the electrical and cleaning cost in addition to the rent. 4. Plus Utilities and Char: A type of Modified Gross Lease where the tenant is responsible for their proportional share of the utilities and cleaning cost in addition to the rent. 4. Industrial Gross: A type of Modified Gross lease where the tenant pays one or more of the expenses in addition to the rent. The landlord and tenant determine these prior to signing the lease agreement.
5. Tenant Electric: The landlord pays for all services and the tenant is responsible for their usage of lights and electrical outlets in the space they occupy.
6. Negotiable or Upon Request: Used when the leasing contact does not provide the rent or service type.
7. TBD: To be determined; used for buildings for which no rent or service type is known, commonly utilized when the buildings are not yet built.
SELECT TENANTS AT WAYNE PLAZA
- TENANT
- DESCRIPTION
- US LOCATIONS
- REACH
- China Garden
- Restaurant
- 1
- Local
- Domino’s
- Pizza
- 9,077
- International
- Jimmy John's
- Sub Sandwich
- 3,217
- International
- OneMain Financial
- Finance Company
- 2,294
- International
- Paradise Nails
- Salon/Barber/Spa
- 1
- Local
- Tropical Smoothie Cafe
- Fast-food
- 2,035
- National
| TENANT | DESCRIPTION | US LOCATIONS | REACH |
| China Garden | Restaurant | 1 | Local |
| Domino’s | Pizza | 9,077 | International |
| Jimmy John's | Sub Sandwich | 3,217 | International |
| OneMain Financial | Finance Company | 2,294 | International |
| Paradise Nails | Salon/Barber/Spa | 1 | Local |
| Tropical Smoothie Cafe | Fast-food | 2,035 | National |
PROPERTY FACTS
| Total Space Available | 2,500 sq ft | Frontage | |
| Centre Type | Neighbourhood Centre | Net Internal Area | 25,636 sq ft |
| Parking | 175 Spaces | Total Land Area | 2.75 ac |
| Centre Properties | 2 | Year Built | 1976 |
| Total Space Available | 2,500 sq ft |
| Centre Type | Neighbourhood Centre |
| Parking | 175 Spaces |
| Centre Properties | 2 |
| Frontage | |
| Net Internal Area | 25,636 sq ft |
| Total Land Area | 2.75 ac |
| Year Built | 1976 |
ABOUT THE PROPERTY
Very busy center in Wayne, MI. Great mix of national and local tenants. On the corner of Wayne Road and E. Michigan Avenue. Come join Tropical Smoothie, Jimmy Johns, SVS Vision, Wingstop, Domino's and more.
- Bus Route
- Restaurant
- Signage
- Signalised Intersection
- Tenant Controlled HVAC
- Air Conditioning
NEARBY MAJOR RETAILERS
Presented by
Wayne Plaza | 35101-36175 E Michigan Ave
Hmm, there seems to have been an error sending your message. Please try again.
Thanks! Your message was sent.



